Выполненные проекты
Электрика таунхауса 260 м.кв. в Жуковском, проект
Объект: таунхаус площадью 260 м.кв. в г.Жуковский Московской области
Цена (стоимость) проекта электрики (электропроводки): 22 230 руб. со скидкой 10%, проект слаботочных кабельных линий - бесплатно.
Проект электрики выполнен: 25.12.2020
Состав проекта электрики таунхауса в Жуковском:
1. Пояснительная записка. Общие данные по электроснабжению и освещению таунхауса в Жуковском.
2. Однолинейные схемы вводного распределительного устройства и электрических распределительных щитов таунхауса в Жуковском площадью 260 м.кв.
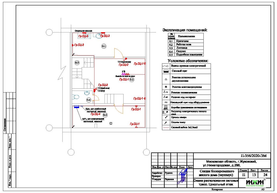
3. Чертежи электропроводки таунхауса в Жуковском.
4. Чертежи групповых осветительных сетей таунхауса в Жуковском.
5. Спецификация материалов и оборудования по электрике и электропроводке таунхауса в Жуковском.
Объем проекта электрики дома 260 м.кв.: 24 листа.
Проект электрики таунхауса 260 м.кв. в Жуковском - подробное описание.
Расчетные показатели по электроснабжению и освещению таунхауса в Жуковском.
o Расчетная электрическая мощность дома составила 19,19 кВт, с учетом коэффициента спроса 0,65, принятого согласно СП 256.1325800.2016;
o При расчете учтено силовое оборудование: кондиционеры, электрический теплый пол.
Распределительные электрические щиты таунхауса в Жуковском площадью 260 м.кв.
o Проектом предусмотрено четыре распределительных электрических щита, размещенных по одному на этаже;
o Автоматические выключатели, дифференциальные автоматы, рубильники и УЗО в щитах – Siemens, в количестве 50 шт. размещены во встраиваемых корпусах.
Силовая кабельная сеть (электропроводка) таунхауса в Жуковском.
o Электропроводка таунхауса предусмотрена с использованием кабелей ВВГ нг -LS с медными жилами в ПВХ-оболочке (не поддерживает горение);
o Общая протяженность линий электроснабжения и освещения – 1 490 метров;
o Электропроводка предусмотрена скрытым способом, в гофрированной ПВХ-трубе;
o Запроектировано 178 точек подключения розеток и выключателей освещения в таунхаусе;
o Предусмотрены слаботочные линии телевидения, общая протяженность - 450 метров.
Резервное электропитание не предусмотрено.























