Выполненные проекты
Проект электрики деревянного дома с баней в СНТ "Березка"
Объект: загородный дом с гаражом и баней, общей площадью 207 м.кв., расположенный в СНТ "Березка", Красногорского района
Цена (стоимость) проекта электрики: 17 699 руб. со скидкой 10% (проект слаботочки и резервного электроснабжения – бесплатно).
Проект электрики выполнен: 05.02.2021
Состав проекта электрики дома с баней и гаражом в СНТ "Березка":
1. Пояснительная записка. Общие данные по электроснабжению и освещению всех трех строений.
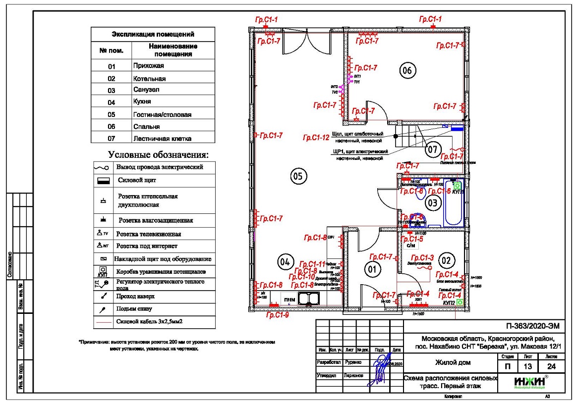
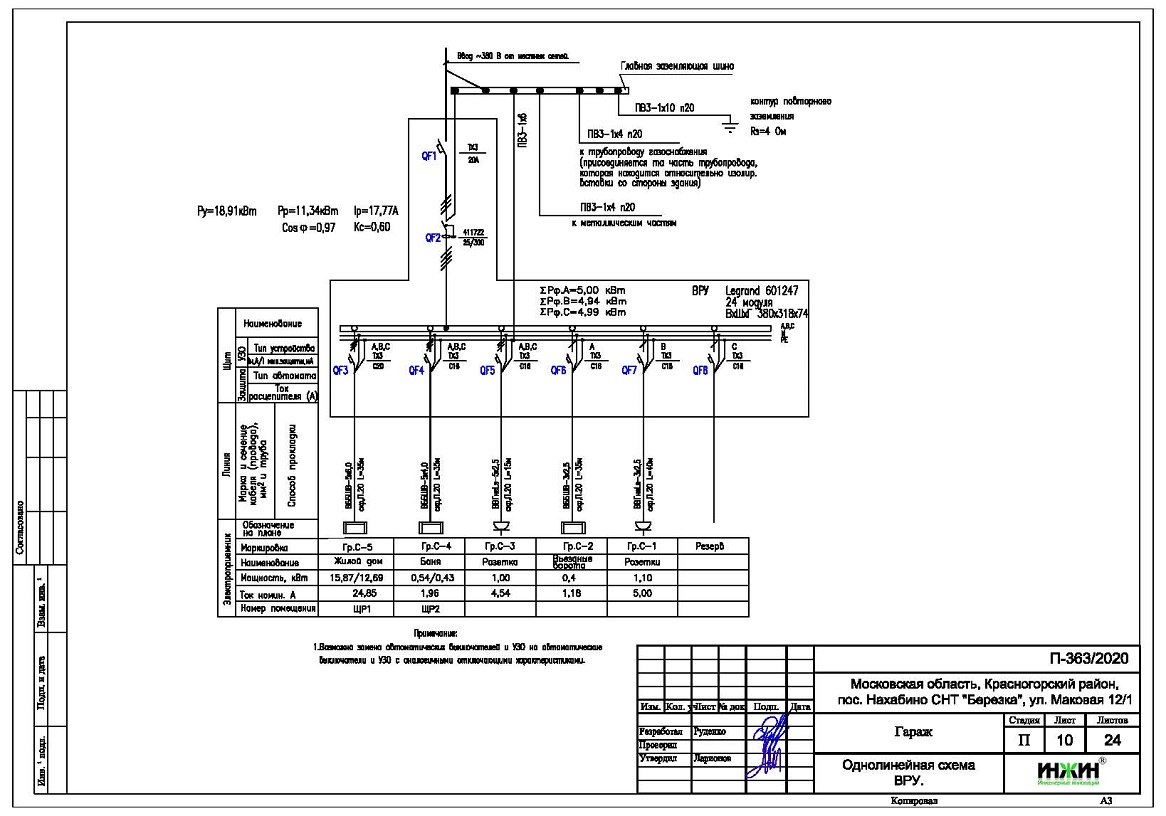
2. Однолинейные схемы вводного распределительного устройства и распределительных щитов дома, гаража и бани.
3. Чертежи электропроводки цокольного, первого и второго этажей дома, а также гаража и бани.
4. Чертежи групповых осветительных сетей дома, бани и гаража.
5. Чертежи линий слаботочных кабельных сетей (сигнализации и телевидения) гаража. бани и дома.
6. Спецификация материалов и оборудования по электрике и электропроводке дома с гаражом и баней в СНТ "Березка".
Объем проекта электрики деревянного дома 207 м.кв.: 24 листа.
Описание проекта электрики частного дома с баней и гаражом в СНТ "Березка".
Расчетные показатели по электроснабжению и освещению частного дома с баней и гаражом.
o Расчетная электрическая мощность дома, гаража и бани составила 11,34 кВт, с учетом коэффициента спроса 0,6, принятого согласно СП 256.1325800.2016;
o При расчете учтено силовое оборудование: оборудование котельной, духовой шкаф, скважинный насос.
Распределительные электрические щиты.
o Проектом предусмотрено 3 распределительных щита, размещенных в каждом из строений и оснащенных 32-мя автоматами;
o Автоматические выключатели, дифференциальные автоматы и УЗО в щитах – Legrand, размещены в пристроенных корпусах Legrand.
Силовая кабельная сеть (электропроводка).
o Электропроводка всех строений предусмотрена с использованием кабелей ВВГ нг -LS с медными жилами в ПВХ-оболочке (не поддерживает горение);
o Общая протяженность линий электроснабжения и освещения – 820 метров;
o Электропроводка предусмотрена скрытым способом, в защитной гофрированной ПВХ-трубе (усиленной конструкции);
o Запроектировано 182 точки подключения розеток и выключателей освещения в доме, гараже и бане;
o Для системы телевидения предусмотрены кабельные трассы с использованием кабеля Cavel SAT 703, в количестве 250 метров.
Предусмотрено резервное электроснабжение дома, источник - инвертор мощностью 2,5 кВт (однофазный).
Заземление.
Предусмотрен контур заземления на базе комплекта Ezetek EZ 8.
Для этого дома из бруса (с баней и гаражом) 207 м.кв. выполнен проект отопления, водоснабжения и канализации.






















