Выполненные проекты
Проект электрики дома 144 м.кв. из бревна
Объект: деревянный дом (бревно) общей площадью 144 м.кв. в с. Новоникольское Талдомского района Московской области
Цена (стоимость) проекта электрики (электропроводки): 12 312 руб. со скидкой 10%, проект слаботочных кабельных линий - бесплатно.
Проект электрики выполнен: 10.03.2021
Состав проекта электрики дома в с.Новоникольское:
1. Пояснительная записка. Общие данные по электроснабжению и освещению частного дома в с.Новоникольское.
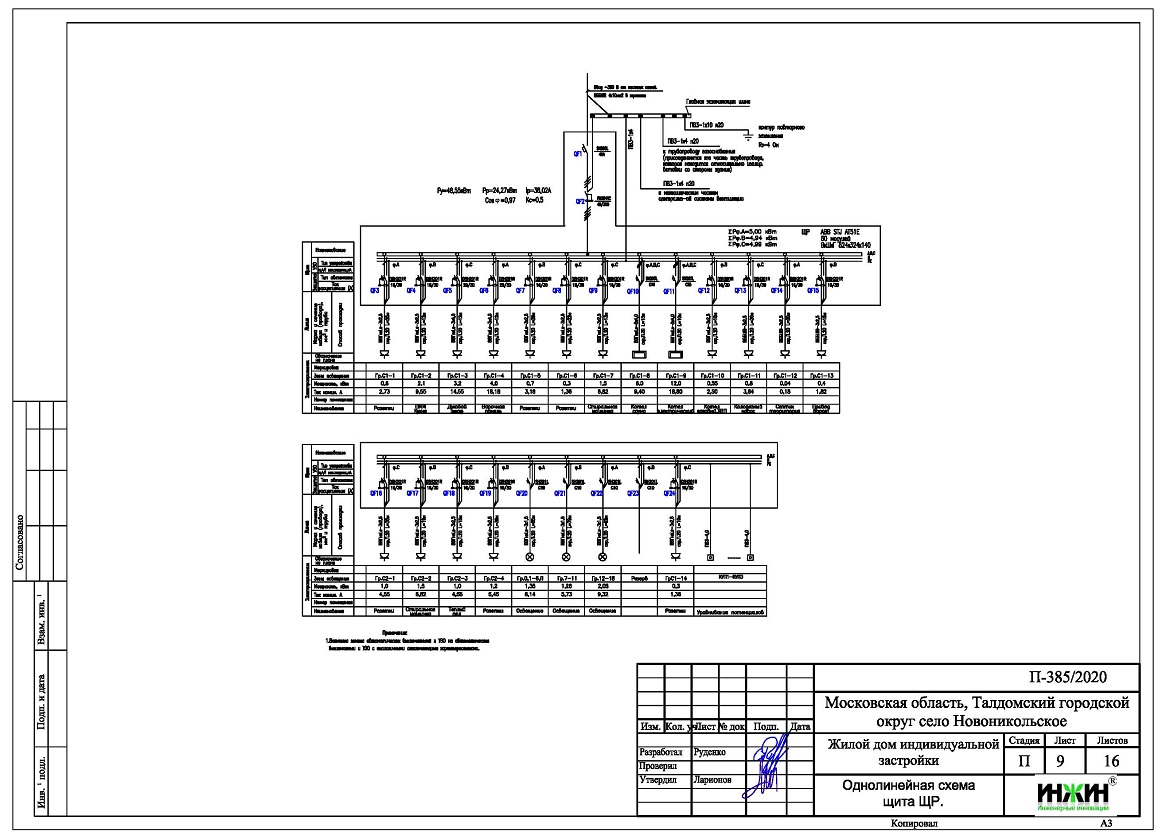
2. Однолинейные схемы вводного распределительного устройства и электрического распределительного щита дома 144 м.кв.
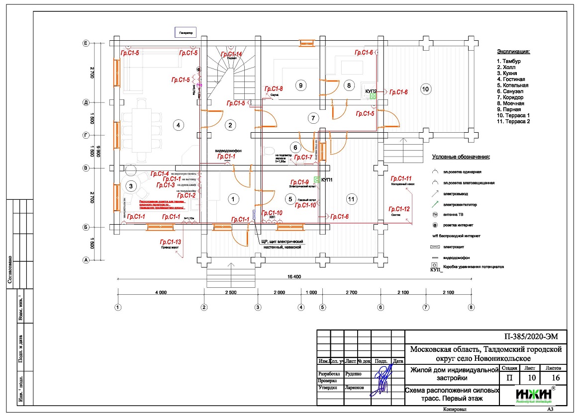
3. Чертежи электропроводки дома в с.Новоникольское.
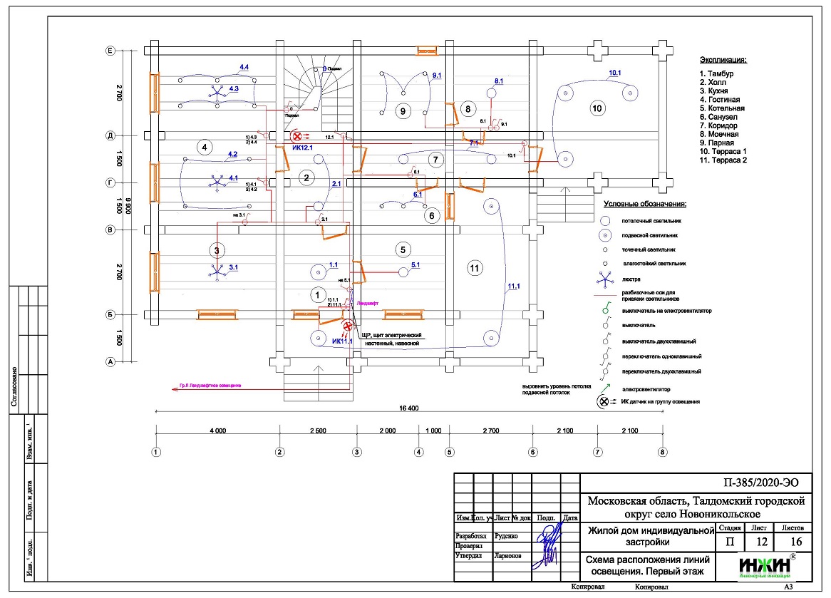
4. Чертежи групповых осветительных сетей дома в с.Новоникольское.
5. Спецификация материалов и оборудования по электрике и электропроводке дома в с.Новоникольское.
Объем проекта электрики дома 144 м.кв.: 16 листов.
Проект электрики дома площадью 144 м.кв. в с.Новоникольское- подробное описание.
Расчетные показатели по электроснабжению и освещению дома в с.Новоникольское.
o Расчетная электрическая мощность дома составила 24,27 кВт, с учетом коэффициента спроса 0,5, принятого согласно СП 256.1325800.2016;
o При расчете учтено силовое оборудование: септик, газовый котел, электрический котел (резервный), колодезный насос, электрическая варочная панель.
Распределительные электрические щиты дома площадью 144 м.кв.
o Проектом предусмотрен распределительный электрический щит, размещенный в техническом помещении;
o Автоматические выключатели, дифференциальные автоматы, рубильники и УЗО в щите – ABB, в количестве 24 шт. размещены в пристраиваемом корпусе.
Силовая кабельная сеть (электропроводка) дома в с.Новоникольское.
o Электропроводка дома предусмотрена с использованием кабелей ВВГ нг -LS с медными жилами в ПВХ-оболочке (не поддерживает горение);
o Общая протяженность линий электроснабжения и освещения – 560 метров, вводная кабельная линия - бронированный кабель 40 метров;
o Электропроводка предусмотрена скрытым способом, в металлорукаве в виниловой оболочке;
o Запроектировано 77 точек подключения розеток и выключателей освещения в доме;
o Предусмотрены слаботочные линии телевидения, общая протяженность - 200 метров.
Предусмотрена система резервного электропитания с использованием инвертора с АКБ (по выбору Заказчика).
Запроектировано применения технологии удобства - дистанционного открывания въездных ворот, калитки и включения освещения входной группы при помощи одного радиобрелка.
Заказать проект электрики деревянного дома дистанционно.
Для этого дома в с.Новоникольское выполнен проект отопления и водоснабжения.



















