Выполненные проекты
Проект отопления дома 184 м.кв. в Королёве
Объект: двухэтажный загородный дом из газобетонных блоков, площадью 185 м.кв., расположенный в г.Королёв (мкр Первомайский) Московской области
Вариант отопления: «Комфортный»
Цена проекта отопления и водоснабжения: 28 968 руб. со скидкой 10%, проект котельной - бесплатно.
Проект котельной, отопления, водоснабжения и канализации выполнен: 04.3.2021
Состав проекта котельной, отопления и водоснабжения дома в г.Королёв (мкр Первомайский):
1. Пояснительная записка проекта, общие данные по системам отопления и водоснабжения дома 185 м.кв. в Московской области.
2. Тепломеханическая схема котельной с размещением оборудования в отдельном помещении дома из газоблоков.
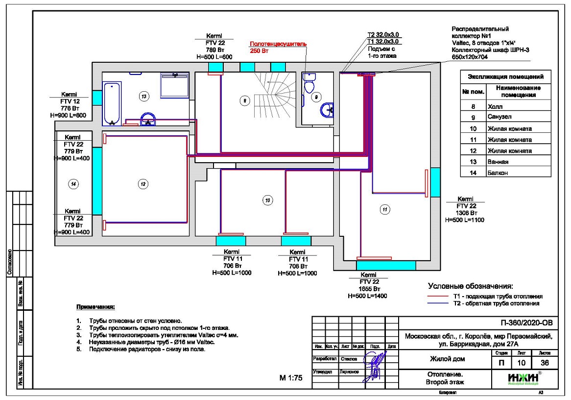
3. Комплект поэтажных чертежей радиаторного отопления дома в г.Королёв (мкр Первомайский).
4. Комплект чертежей теплого пола на площади 66 м.кв.
5. Комплект чертежей водоснабжения частного дома из газоблоков.
6. Типовые схемы системы отопления и водоснабжения дома 185 м.кв.
7. Теплотехнический расчет отопления дома из газобетонных блоков.
8. Спецификация материалов и оборудования по котельной, отоплению и водоснабжению дома в г.Королёв (мкр Первомайский).
Объем проекта отопления и водоснабжения дома: 36 листов.
Описание проекта отопления, котельной и водоснабжения частного дома 185 м.кв. в г.Королёв (мкр Первомайский).
Котельная частного дома в г.Королёв (мкр Первомайский) (проект котельной бесплатно).
o Размещена в отдельном помещении дома 185 м.кв.;
o Теплогенератор - напольный газовый котел Protherm, мощностью 26 кВт (в наличии);
o Контуры теплоснабжения котельной – радиаторное отопление дома, теплый пол и горячее водоснабжение, для которого предусмотрен накопительный бойлер Protherm, объемом 200 литров (подключение к коллектору котельной);
o Расширительные баки отопления и бойлера Flamco, объемом 25 и 18 литров соответственно;
o Циркуляционные насосы отопления и бойлера Grundfos, использованы энергоэффективные насосы UPM3 Hybrid (в составе насосных групп Meibes), аналог насосов серии Alpha;
o Дымоудаление естественное, дымоход из нержавеющей стали ROSINOX, диаметр 130 мм;
o Распределительный коллектор - настенный Meibes, с насосными группами;
o Автоматика котельной – встроена в котел.
Отопление дома в г.Королёв (мкр Первомайский) (проект отопления дома).
o Выполнен теплотехнический расчет отопления дома из газобетонных блоков (утеплитель кровли - минеральная вата Rockwool, 150мм) с учетом теплопотерь через ограждающие конструкции при наружной температуре -28°С для Московской области (по СП 131.13330.2012), расчетный расход тепла на отопление дома составил 16,6 кВт, удельные теплопотери 93,9 Вт/м.кв.;
o Подобраны приборы для отопления дома: стальные панельные радиаторы KERMI с нижним подключением;
o Схема радиаторного отопления дома двухтрубная, коллекторно-лучевая, с принудительной циркуляцией теплоносителя и температурным графиком 80/60°С;
o Трубы отопления из металлопластика Valtec;
o Теплоизоляция трубопроводов отопления Энергофлекс, толщиной 9мм;
o Теплоноситель в системе радиаторного отопления дома – подготовленная вода, предусмотрены средства защиты от образования накипи в системе отопления.
Водяной теплый пол дома в г.Королёв (мкр Первомайский) (проект теплого пола).
o Водяной теплый пол в доме предусмотрен на площади 60 м.кв., коллектор теплого пола Valtec на 12 отводов;
o Предусмотрен отдельный контур котельной для теплоснабжения водяного теплого пола дома (насосная группа котельной);
o Трубопроводы теплого пола – сшитый полиэтилен Valtec;
o Регулирование температуры теплого пола - общее, контуром котельной.
Внутренний водопровод дома в г.Королёв (мкр Первомайский) (проект водоснабжения).
o Схема внутреннего водоснабжения дома – коллекторно-лучевая с рециркуляцией горячей воды через водяные полотенцесушители, выполнен расчет 22-х точек водоснабжения и полотенцесушителей;
o Трубопроводы системы водоснабжения – из металлопластика Valtec;
o Теплоизоляция трубопроводов Энергофлекс Супер, толщиной 9мм;
o Летний водопровод проектом не предусмотрен.



















