Выполненные проекты
Проект отопления дома в Новоникольском
Объект: двухэтажный дом из бревна общей площадью 144 м.кв. в с.Новоникольское Талдомского района Московской области.
Вариант отопления: «Комфортный»
Цена проекта отопления и водоснабжения: 17 712 руб. со скидкой 10%, проект котельной - бесплатно.
Проект котельной, отопления, водоснабжения и канализации выполнен: 11.03.2021
Состав проекта котельной, отопления и водоснабжения дома в Новоникольском:
1. Пояснительная записка проекта, общие данные по системам отопления и водоснабжения дома 144 м.кв. в Московской области.
2. Тепломеханическая схема котельной с размещением оборудования в отдельном помещении дома из дерева.
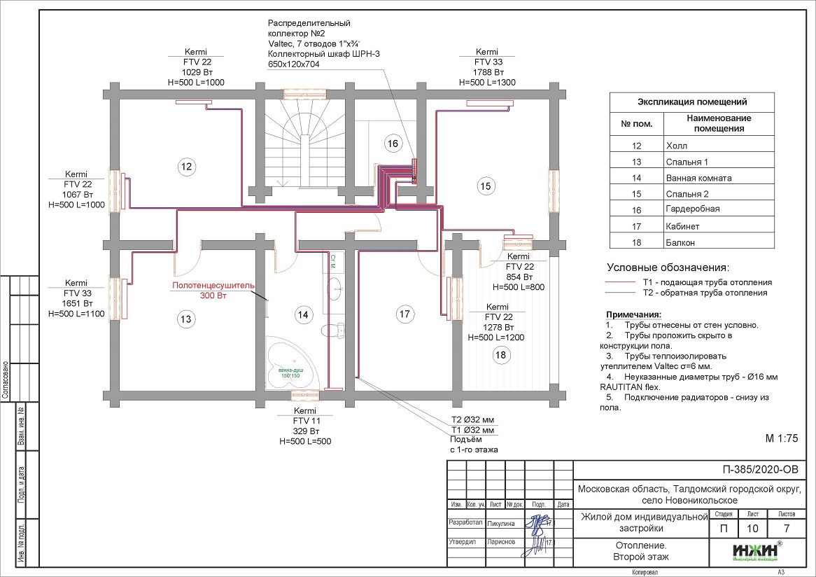
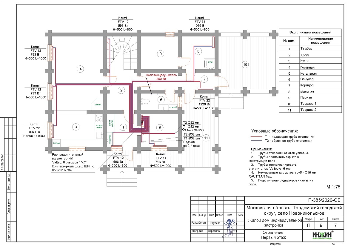
3. Комплект поэтажных чертежей радиаторного отопления дома в с.Новоникольское.
4. Комплект чертежей теплого пола на площади 40 м.кв.
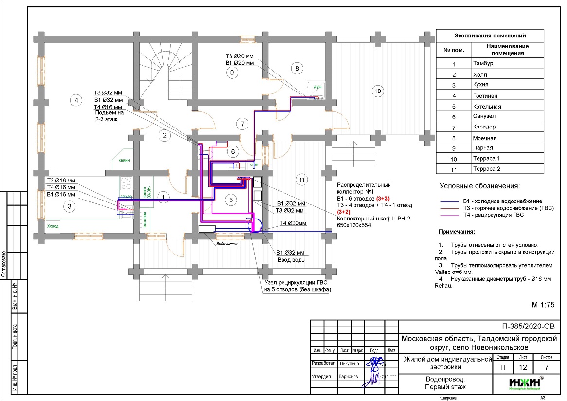
5. Комплект чертежей водоснабжения частного дома из бревна в с.Новоникольское.
6. Типовые схемы системы отопления и водоснабжения дома 144 м.кв.
7. Теплотехнический расчет отопления дома из бревна.
8. Спецификация материалов и оборудования по котельной, отоплению и водоснабжению дома в Московской области.
Объем проекта отопления и водоснабжения дома в с.Новоникольское: 35 листов.
Описание проекта отопления, котельной и водоснабжения частного дома 144 м.кв. в с.Новоникольское.
Котельная частного дома в с.Новоникольское(проект котельной бесплатно).
o Размещена в отдельном помещении дома 144 м.кв.;
o Теплогенераторы: основной - настенный газовый котел Vaillant, мощностью 24 кВт, резервный - настенный электрический котел Vaillant eloBLOCK мощностью 12 кВт;
o Контуры теплоснабжения котельной – радиаторное отопление дома, теплый пол и горячее водоснабжение, для которого предусмотрен накопительный бойлер Vaillant uniSTOR, объемом 200 литров (подключение к коллектору);
o Расширительные баки отопления и бойлера Flamco, объемом 18 литров каждый;
o Дымоудаление принудительное, дымоход коаксиальный, комплект Vaillant для прохода через кровлю, диаметр 60/100 мм;
o Распределительный коллектор - модуль Meibes Kombimix с функцией гидравлической стрелки и насосными группами;
o Автоматика котельной – контроллер отопления ZONT Climatic со встроенным GSM-модулем.
Отопление дома в с.Новоникольское (проект отопления дома).
o Выполнен теплотехнический расчет отопления дома из бревна (утеплитель кровли и пола - минеральная вата Rockwool, 250мм) с учетом теплопотерь через ограждающие конструкции при наружной температуре -28°С для Московской области (по СП 131.13330.2012), расчетный расход тепла на отопление дома составил 16,53 кВт, удельные теплопотери 110,5 Вт/м.кв.;
o Подобраны приборы для отопления дома: стальные панельные радиаторы KERMI с нижним подключением, в вентильном исполнении;
o Схема радиаторного отопления дома двухтрубная, коллекторно-лучевая, с принудительной циркуляцией теплоносителя и температурным графиком 80/60°С;
o Трубы отопления из сшитого полиэтилена Rehau RAUTITAN flex;
o Теплоизоляция трубопроводов отопления Энергофлекс, толщиной 9мм;
o Теплоноситель в системе радиаторного отопления дома – подготовленная вода, предусмотрены средства защиты от образования накипи.
Водяной теплый пол дома в с.Новоникольское (проект теплого пола).
o Водяной теплый пол в доме предусмотрен на площади 40 м.кв., 7 петель, коллектор теплого пола Valtec на 7 отводов;
o Предусмотрена насосная группа котельной для теплоснабжения водяного теплого пола дома;
o Трубопроводы теплого пола – сшитый полиэтилен Rehau RAUTHERM S;
o Регулирование температуры теплого пола - общее, контуром котельной.
Внутренний водопровод дома в с.Новоникольское (проект водоснабжения).
o Схема внутреннего водоснабжения дома – коллекторно-лучевая с рециркуляцией горячей воды через водяные полотенцесушители, выполнен расчет 19-и точек водоснабжения и полотенцесушителей;
o Трубопроводы системы водоснабжения – из сшитого полиэтилена Rehau;
o Теплоизоляция трубопроводов Энергофлекс Супер, толщиной 9мм;
o Для летнего водопровода предусмотрен незамерзающий кран Meibes SEPP-Eis.

Для этого дома в с.Новоникольское выполнен проект электрики.
По этому проекту выполнен монтаж отопления деревянного дома в с.Новоникольское.



















