Выполненные проекты
Электрика дома 269 м.кв. в КП «Лесной Пейзаж», проект
Объект: дом из кирпича общей площадью 269 м.кв. в КП «Лесной Пейзаж», Московской области
Цена (стоимость) проекта электрики (электропроводки): 22 999 руб. со скидкой 10%, проект слаботочных кабельных линий - бесплатно.
Проект электрики выполнен: 24.03.2021
Состав проекта электрики дома в КП «Лесной Пейзаж»:
1. Пояснительная записка. Общие данные по электроснабжению и освещению частного дома в КП «Лесной Пейзаж».
2. Однолинейные схемы вводного распределительного устройства и электрического распределительного щита дома 269 м.кв.
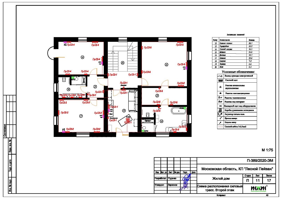
3. Чертежи электропроводки дома в КП «Лесной Пейзаж».
4. Чертежи групповых осветительных сетей дома в КП «Лесной Пейзаж».
5. Спецификация материалов и оборудования по электрике и электропроводке дома в КП «Лесной Пейзаж».
Объем проекта электрики дома 269 м.кв.: 17 листов.
Проект электрики дома площадью 269 м.кв. в КП «Лесной Пейзаж»- подробное описание.
Расчетные показатели по электроснабжению и освещению дома в КП «Лесной Пейзаж».
o Расчетная электрическая мощность дома составила 20,07 кВт, с учетом коэффициента спроса 0,55, принятого согласно СП 256.1325800.2016;
o При расчете учтено силовое оборудование: электроплита, газовый котел, дренажный насос.
Распределительные электрические щиты дома площадью 269 м.кв.
o Проектом предусмотрен распределительный электрический щит, размещенный в техническом помещении;
o Автоматические выключатели, дифференциальные автоматы, рубильники и УЗО в щите – ABB, в количестве 34 шт. размещены во встраиваемом корпусе.
Силовая кабельная сеть (электропроводка) дома в КП «Лесной Пейзаж».
o Электропроводка дома предусмотрена с использованием кабелей ВВГ нг -LS с медными жилами в ПВХ-оболочке (не поддерживает горение);
o Общая протяженность линий электроснабжения и освещения – 1300 метров, вводные кабельные линии - бронированные кабели (ВБбШв) 135 метров;
o Электропроводка предусмотрена скрытым способом, в гофрированной ПВХ-трубе и металлорукаве в виниловой оболочке;
o Запроектировано 253 точки подключения розеток и выключателей освещения в доме;
o Предусмотрены слаботочные линии локальной вычислительной сети и телевидения, общая протяженность - 550 метров.
Предусмотрено резервное электропитание - однофазный инвертор CyberPower мощностью 1,5 кВт (для оборудования котельной).
Для этого дома в КП «Лесной Пейзаж» выполнен проект отопления, водоснабжения и канализации.



















