Выполненные проекты
Проект отопления кирпичного дома 269 м.кв.
Объект: двухэтажный загородный дом из кирпича, площадью 269 м.кв., расположенный в КП «Лесной Пейзаж» Московской области.
Вариант отопления: «Комфортный»
Цена проекта отопления, канализации и водоснабжения: 42 363 руб. со скидкой 10%, проект котельной - бесплатно.
Проект котельной, отопления, водоснабжения и канализации выполнен: 26.03.2021
Состав проекта котельной, отопления, канализации и водоснабжения дома в КП «Лесной Пейзаж»:
1. Пояснительная записка проекта, общие данные по системам отопления, канализации и водоснабжения дома 269 м.кв. в КП «Лесной Пейзаж».
2. Тепломеханическая схема котельной с размещением оборудования в отдельном помещении дома из кирпича.
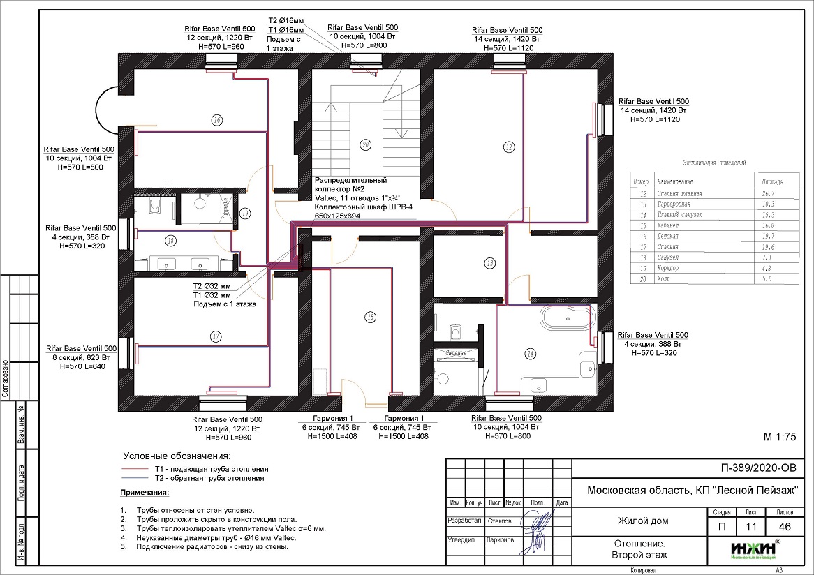
3. Комплект поэтажных чертежей радиаторного отопления дома в КП «Лесной Пейзаж».
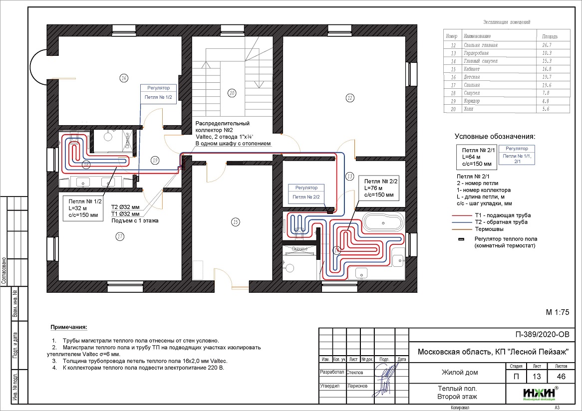
4. Комплект чертежей теплого пола на площади 84 м.кв.
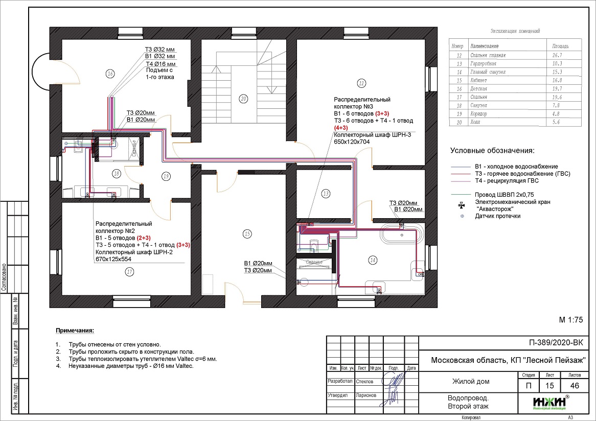
5. Комплект чертежей водоснабжения и канализации частного дома из кирпича в КП «Лесной Пейзаж».
6. Типовые схемы системы отопления канализации и водоснабжения дома 269 м.кв.
7. Теплотехнический расчет отопления дома из кирпича.
8. Спецификация материалов и оборудования по котельной, отоплению, канализации и водоснабжению дома в КП «Лесной Пейзаж».
Объем проекта отопления, канализации и водоснабжения дома в КП «Лесной Пейзаж»: 46 листов.
Описание проекта отопления, котельной, канализации и водоснабжения частного дома 269 м.кв. в КП «Лесной Пейзаж».
Котельная частного дома в КП «Лесной Пейзаж»(проект котельной бесплатно).
o Размещена в отдельном помещении дома 269 м.кв.;
o Теплогенератор - напольный газовый котел Protherm Медведь 40KLOM, мощностью 35 кВт (в наличии);
o Контуры теплоснабжения котельной – радиаторное отопление дома, теплый пол и горячее водоснабжение, для которого предусмотрен накопительный бойлер Protherm FE 200/6 BM, объемом 200 литров (подключение к котлу);
o Расширительные баки отопления и бойлера Flamco, объемом 35 и 18 литров соответственно;
o Дымоудаление естественное, дымоход выполнен на объекте;
o Распределительный коллектор Meibes, с насосно-смесительными группами;
o Автоматика котельной – встроена в котел с дополнительным GSM-модулем.
Отопление дома в КП «Лесной Пейзаж» (проект отопления дома).
o Выполнен теплотехнический расчет отопления дома из кирпича (утеплитель кровли - минеральная вата Rockwool, 150мм) с учетом теплопотерь через ограждающие конструкции при наружной температуре -28°С для Московской области (по СП 131.13330.2012), расчетный расход тепла на отопление дома составил 24,67 кВт, удельные теплопотери 85,9 Вт/м.кв.;
o Подобраны приборы для отопления дома: биметаллические секционные радиаторы Rifar Ventil с нижним подключением, в вентильном исполнении;
o Схема радиаторного отопления дома двухтрубная, коллекторно-лучевая, с принудительной циркуляцией теплоносителя и температурным графиком 80/60°С;
o Трубы отопления из сшитого полиэтилена Rehau;
o Теплоизоляция трубопроводов отопления Энергофлекс, толщиной 9мм;
o Теплоноситель в системе радиаторного отопления дома – подготовленная вода, предусмотрены средства защиты от образования накипи.
Водяной теплый пол дома в КП «Лесной Пейзаж» (проект теплого пола).
o Водяной теплый пол в доме предусмотрен на площади 84 м.кв., 15 петель, коллекторы теплого пола Valtec на 3 и 12 отводов;
o Предусмотрен насосно-смесительный узел для теплоснабжения водяного теплого пола в котельной;
o Трубопроводы теплого пола – сшитый полиэтилен Rehau;
o Регулирование температуры теплого пола - общее, термостатом на смесительном узле и локальное - по помещениям.
Внутренний водопровод дома в КП «Лесной Пейзаж» (проект водоснабжения).
o Схема внутреннего водоснабжения дома – коллекторно-лучевая с рециркуляцией горячей воды через водяные полотенцесушители, выполнен расчет 53-х точек водоснабжения и полотенцесушителей;
o Трубопроводы системы водоснабжения – из сшитого полиэтилена Rehau;
o Теплоизоляция трубопроводов Энергофлекс Супер, толщиной 9мм;
o Для летнего водопровода предусмотрено два незамерзающих крана Meibes SEPP-Eis.
Внутренняя канализация (проект канализации) дома в КП «Лесной Пейзаж».
o Безнапорная, отвод стоков от санитарно-технических приборов предусмотрен в септик;
o Произведен расчет 23-х точек бытовой канализации;
o Канализационные трубы Синикон, раструбные, из полипропилена.
Для этого дома в КП «Лесной Пейзаж» выполнен проект электрики.



















