Выполненные проекты
Проект электрики дома 199 м.кв. в Хабаровске
Объект: дом из кирпича общей площадью 199 м.кв. в г. Хабаровск
Цена (стоимость) проекта электрики (электропроводки): 23 820 руб. со скидкой 10%, проект слаботочных кабельных линий - бесплатно.
Проект электрики выполнен: 01.04.2021
Состав проекта электрики дома в Хабаровске:
1. Пояснительная записка. Общие данные по электроснабжению и освещению частного дома в Хабаровске.
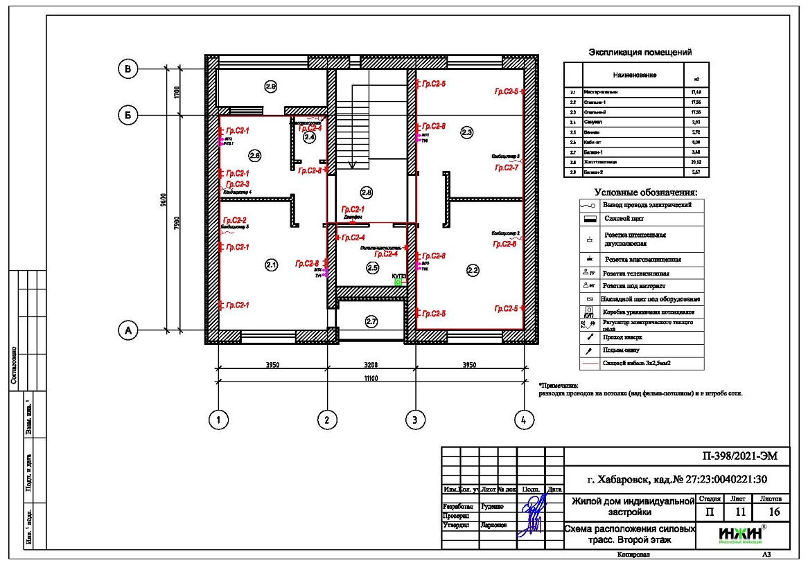
2. Однолинейные схемы вводного распределительного устройства и электрического распределительного щита дома 199 м.кв.
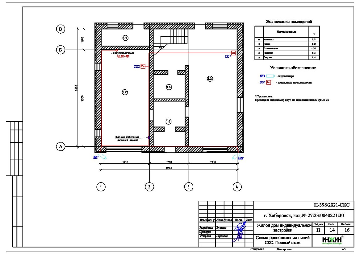
3. Чертежи электропроводки дома в Хабаровске.
4. Чертежи групповых осветительных сетей дома в Хабаровске.
5. Спецификация материалов и оборудования по электрике и электропроводке дома в Хабаровске.
Объем проекта электрики дома 199 м.кв.: 16 листов.
Проект электрики дома площадью 199 м.кв. в Хабаровске- подробное описание.
Расчетные показатели по электроснабжению и освещению дома в Хабаровске.
o Расчетная электрическая мощность дома составила 19,24 кВт, с учетом коэффициента спроса 0,55, принятого согласно СП 256.1325800.2016;
o При расчете учтено силовое оборудование: кондиционеры, газовый котел, скважинный насос, полотенцесушители, вентиляционная установка.
Распределительные электрические щиты дома площадью 199 м.кв.
o Проектом предусмотрен распределительный электрический щит, размещенный в техническом помещении;
o Автоматические выключатели, дифференциальные автоматы, рубильники и УЗО в щите – ABB, в количестве 41 шт. размещены во встраиваемом корпусе.
Силовая кабельная сеть (электропроводка) дома в Хабаровске.
o Электропроводка дома предусмотрена с использованием кабелей ВВГ нг -LS с медными жилами в ПВХ-оболочке (не поддерживает горение);
o Общая протяженность линий электроснабжения и освещения – 790 метров, вводные кабельные линии - бронированные кабели (ВБбШв) 100 метров;
o Электропроводка предусмотрена скрытым способом, в гофрированной ПВХ-трубе и металлорукаве в виниловой оболочке;
o Запроектировано 89 точек подключения розеток и выключателей освещения в доме;
o Предусмотрены слаботочные линии локальной вычислительной сети и телевидения, общая протяженность - 350 метров.
Предусмотрено резервное электропитание - однофазный инвертор CyberPower мощностью 7,5 кВт.



















