Выполненные проекты
Проект электрики дома в с.Воскресенское
Объект: дом из пеноблоков общей площадью 199 м.кв. в с.Воскресенское Ногинского района Московской области
Цена (стоимость) проекта электрики (электропроводки): 14 484 руб. со скидкой 10%, проект слаботочных кабельных линий - бесплатно.
Проект электрики выполнен: 09.04.2021
Состав проекта электрики дома в с.Воскресенское:
1. Пояснительная записка. Общие данные по электроснабжению и освещению частного дома в с.Воскресенское.
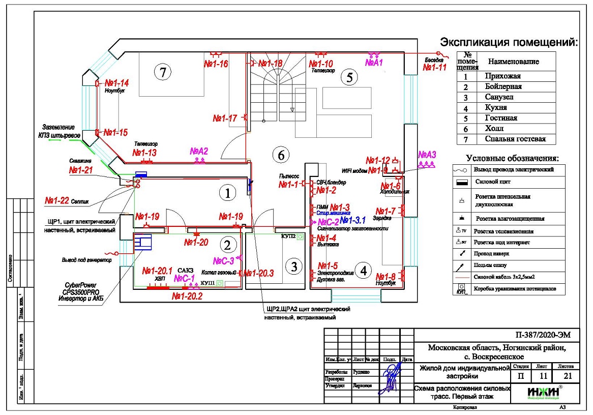
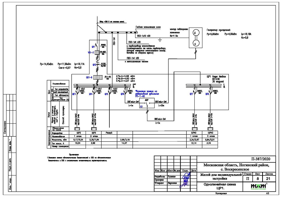
2. Однолинейные схемы вводного распределительного устройства и электрического распределительного щита дома 121 м.кв.
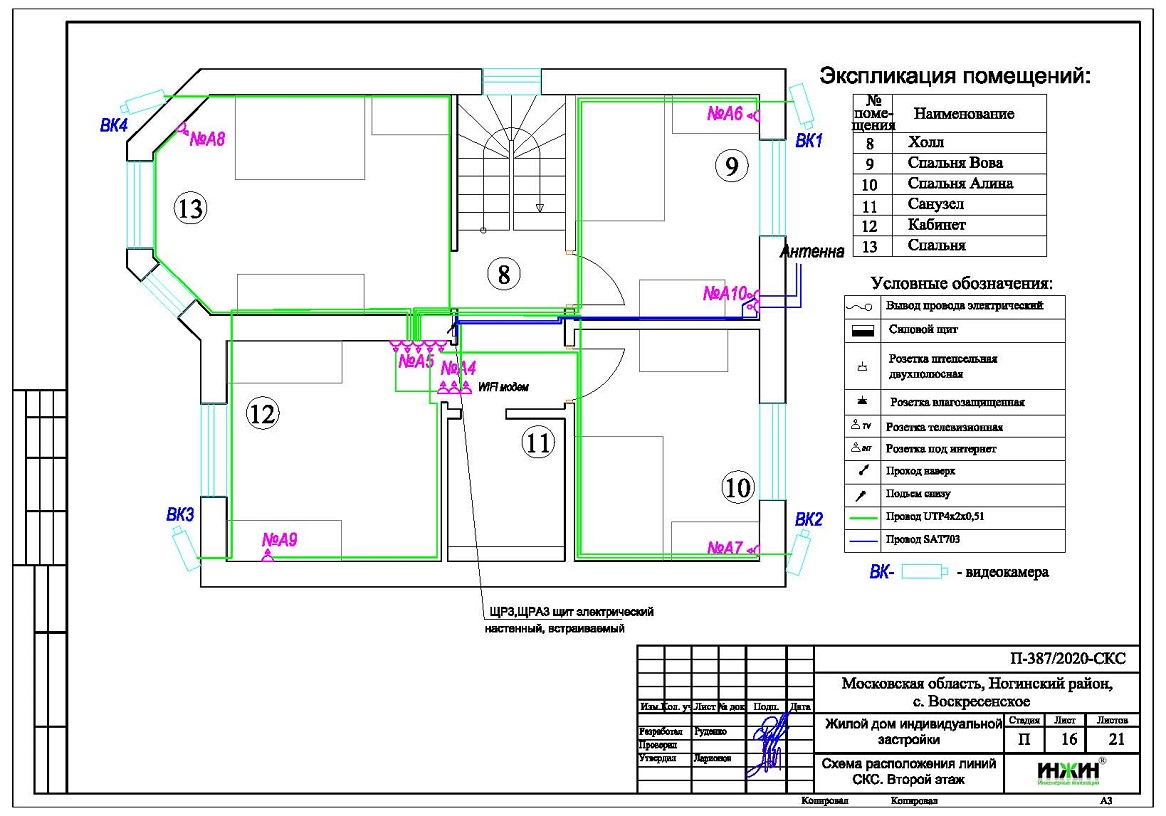
3. Чертежи электропроводки дома в с.Воскресенское.
4. Чертежи групповых осветительных сетей дома в с.Воскресенское.
5. Спецификация материалов и оборудования по электрике и электропроводке дома в с.Воскресенское.
Объем проекта электрики дома 121 м.кв.: 21 лист.
Проект электрики дома площадью 121 м.кв. в с.Воскресенское- подробное описание.
Расчетные показатели по электроснабжению и освещению дома в с.Воскресенское.
o Расчетная электрическая мощность дома составила 11,56 кВт, с учетом коэффициента спроса 0,8, принятого согласно СП 256.1325800.2016;
o При расчете учтено силовое оборудование: газовый котел, скважинный насос.
Распределительные электрические щиты дома площадью 121 м.кв.
o Проектом предусмотрены три распределительных электрических щита, размещенных на этажах и в техническом помещении;
o Автоматические выключатели, дифференциальные автоматы, рубильники и УЗО в щите – Legrand, в количестве 37 шт. размещены во встраиваемом корпусе.
Силовая кабельная сеть (электропроводка) дома в с.Воскресенское.
o Электропроводка дома предусмотрена с использованием кабелей ВВГ нг -LS с медными жилами в ПВХ-оболочке (не поддерживает горение);
o Общая протяженность линий электроснабжения и освещения – 770 метров, вводные кабельные линии - бронированные кабели (ВБбШв) 50 метров;
o Электропроводка предусмотрена скрытым способом, в гофрированной ПВХ-трубе и металлорукаве в виниловой оболочке;
o Запроектировано 102 точки подключения розеток и выключателей освещения в доме;
o Предусмотрены слаботочные линии локальной вычислительной сети и телевидения, общая протяженность - 190 метров.
Предусмотрено резервное электропитание - однофазный инвертор CyberPower мощностью 3,5 кВт.
Заказать проект электрики дома дистанционно.
Для этого дома в с.Воскресенское выполнен проект отопления, водоснабжения и канализации.






















