Выполненные проекты
Электрика дома 250 м.кв. в Химках, проект
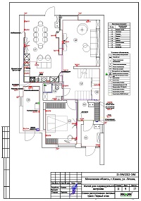
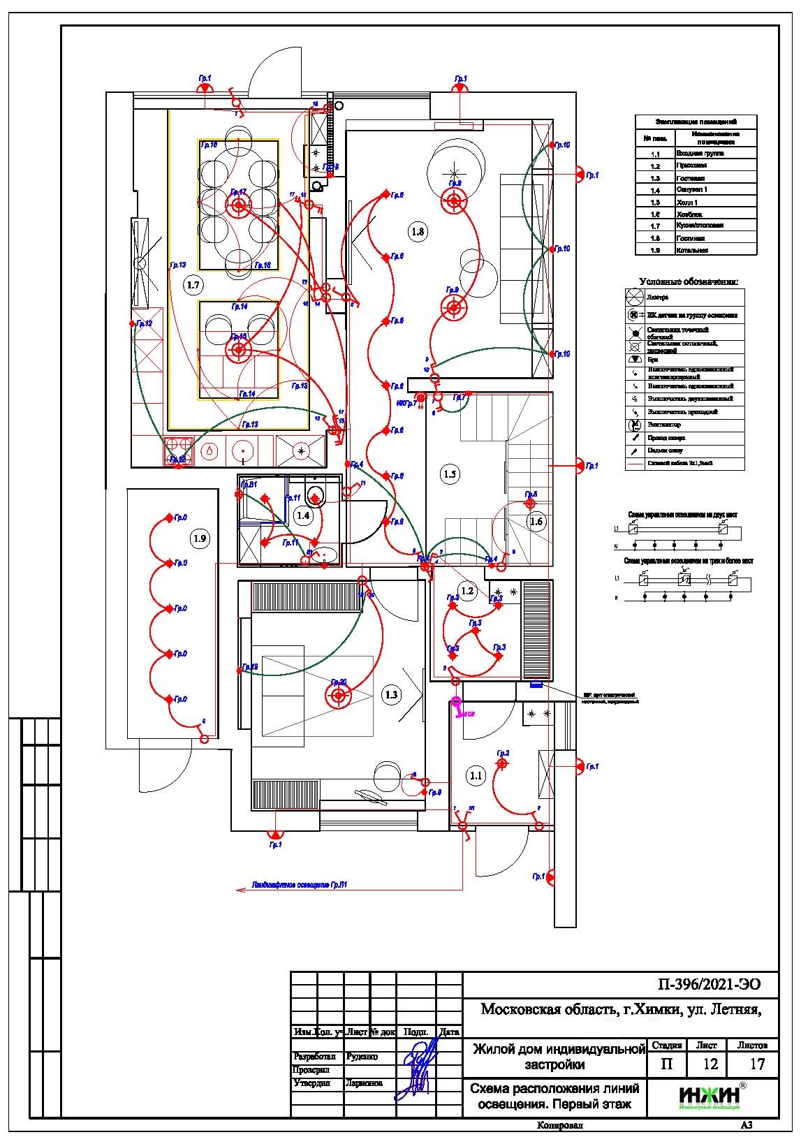
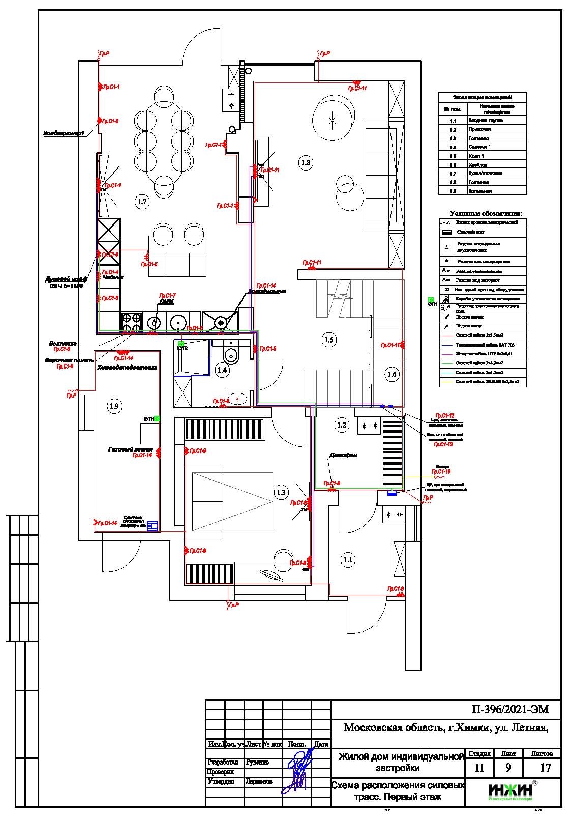
Объект: дом из кирпича общей площадью 250 м.кв. в г. Химки Московской области
Цена (стоимость) проекта электрики (электропроводки): 29 925 руб. со скидкой 10%, проект слаботочных кабельных линий - бесплатно.
Проект электрики выполнен: 29.04.2021
Состав проекта электрики дома в Химках:
1. Пояснительная записка. Общие данные по электроснабжению и освещению частного дома в Химках.
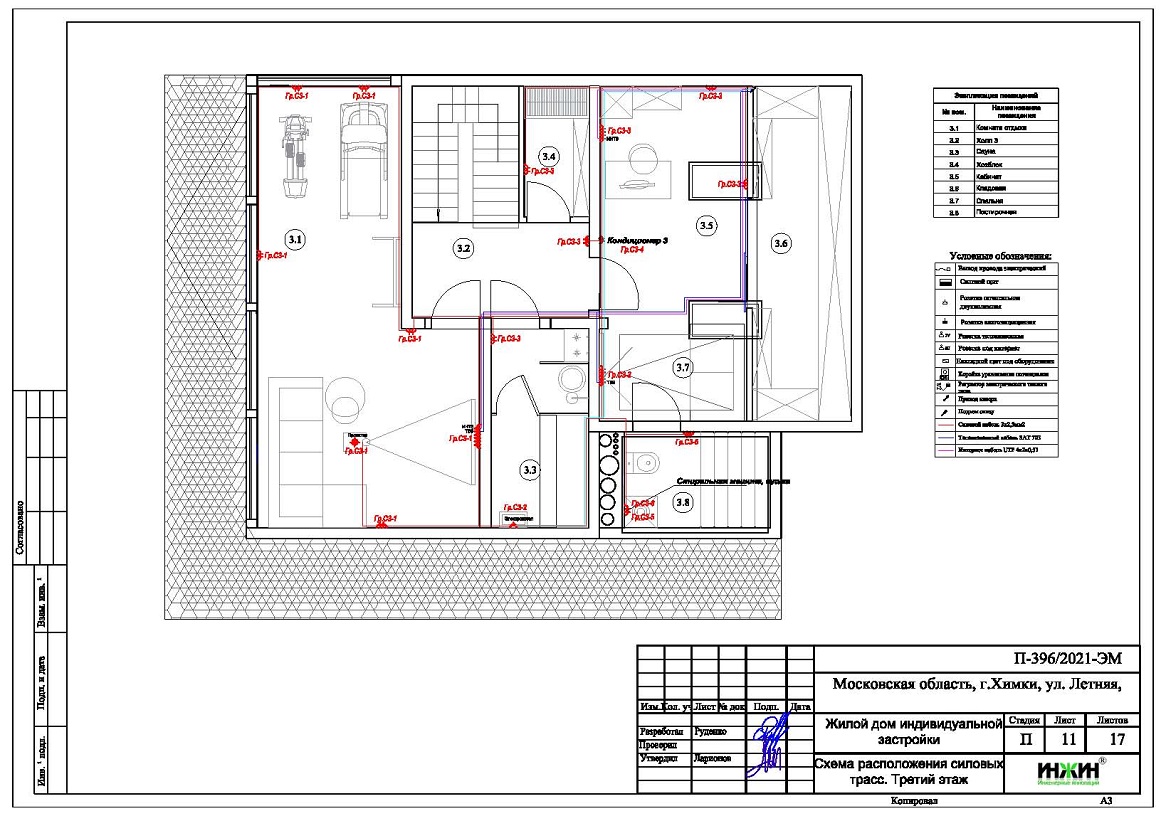
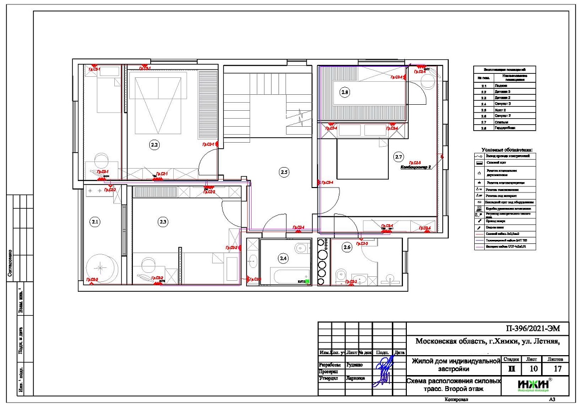
2. Однолинейные схемы вводного распределительного устройства и электрического распределительного щита дома 250 м.кв.
3. Чертежи электропроводки дома в Химках.
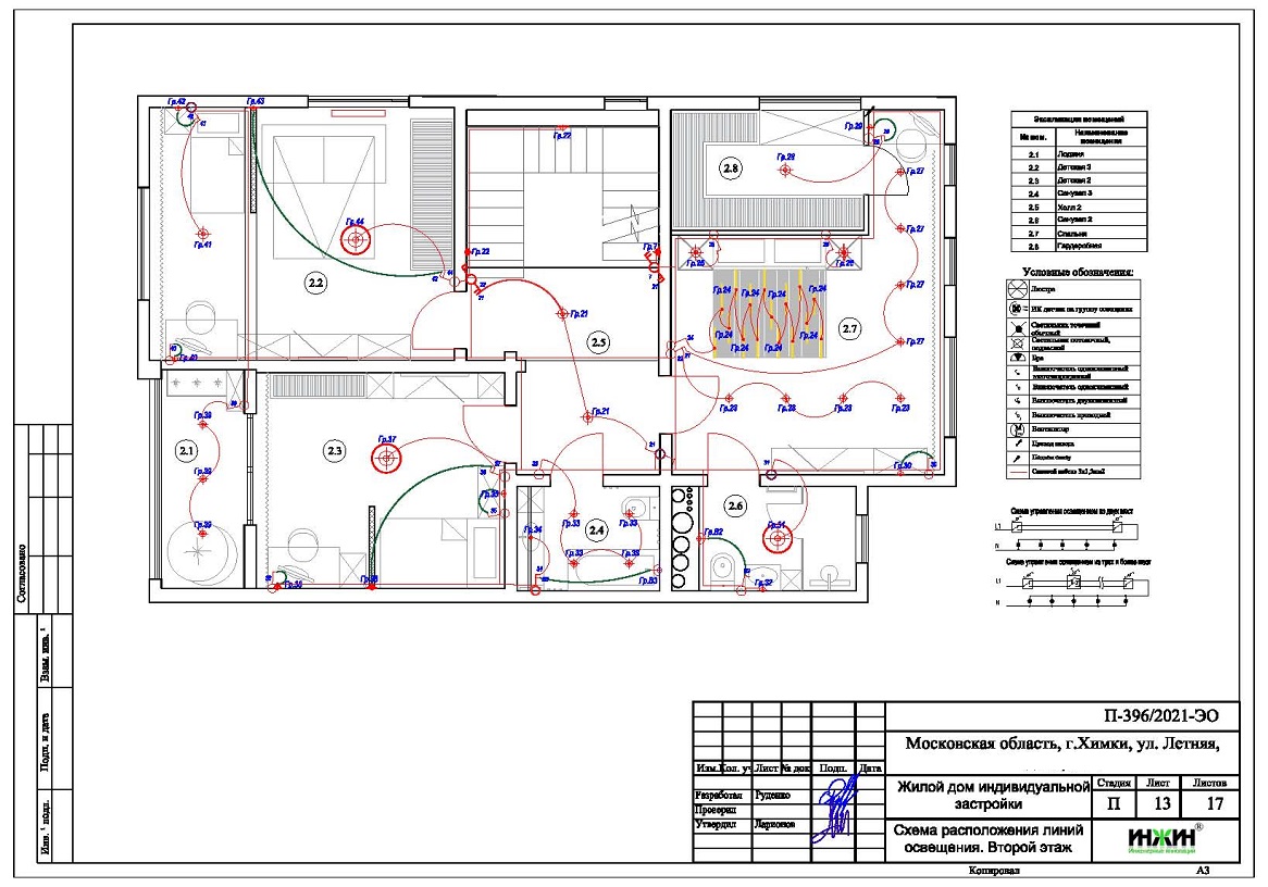
4. Чертежи групповых осветительных сетей дома в Химках.
5. Спецификация материалов и оборудования по электрике и электропроводке дома в Химках.
Объем проекта электрики дома 250 м.кв.: 17 листов.
Проект электрики дома площадью 250 м.кв. в Химках- подробное описание.
Расчетные показатели по электроснабжению и освещению дома в Химках.
o Расчетная электрическая мощность дома составила 20,16 кВт, с учетом коэффициента спроса 0,5, принятого согласно СП 256.1325800.2016;
o При расчете учтено силовое оборудование: кондиционеры, газовый котел, сауна.
Распределительные электрические щиты дома площадью 250 м.кв.
o Проектом предусмотрен распределительный электрический щит, размещенный под лестницей;
o Автоматические выключатели, дифференциальные автоматы, рубильники и УЗО в щите – ABB, в количестве 32 шт. размещены во встраиваемом корпусе.
Силовая кабельная сеть (электропроводка) дома в Химках.
o Электропроводка дома предусмотрена с использованием кабелей ВВГ нг -LS с медными жилами в ПВХ-оболочке (не поддерживает горение);
o Общая протяженность линий электроснабжения и освещения – 2930 метров, вводные кабельные линии - бронированные кабели (ВБбШв) 35 метров;
o Электропроводка предусмотрена скрытым способом, в гофрированной ПВХ-трубе и металлорукаве в виниловой оболочке;
o Запроектировано 225 точек подключения розеток и выключателей освещения в доме;
o Предусмотрены слаботочные линии локальной вычислительной сети и телевидения, общая протяженность - 1465 метров.
Предусмотрено резервное электропитание - однофазный инвертор CyberPower мощностью 5 кВт.



















