Выполненные проекты
Проект отопления дома 524 м.кв. в Сходне
Объект: четырехэтажный частный дом из керамических блоков, площадью 524 м.кв., расположенный в мкр Сходня (г.Химки) Московской области.
Вариант отопления: «Комфортный»
Цена проекта отопления, канализации и водоснабжения: 108 468 руб. со скидкой 10%, проект котельной - бесплатно.
Проект котельной, отопления, водоснабжения и канализации выполнен: 04.05.2021
Состав проекта котельной, отопления, канализации и водоснабжения дома в мкр Сходня (г.Химки):
1. Пояснительная записка проекта, общие данные по системам отопления, канализации и водоснабжения дома 524 м.кв. в Сходне (г.Химки).
2. Тепломеханическая схема котельной с размещением оборудования в отдельном помещении дома из керамических блоков.
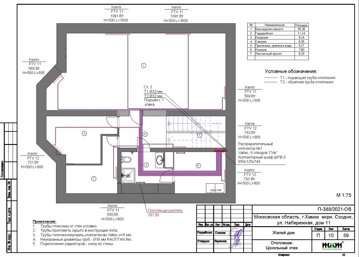
3. Комплект поэтажных чертежей радиаторного отопления дома в Сходне (г.Химки).
4. Комплект чертежей водоснабжения и канализации частного дома из керамических блоков в Сходне (г.Химки).
5. Типовые схемы системы отопления канализации и водоснабжения дома 524 м.кв.
6. Теплотехнический расчет отопления дома из керамических блоков.
7. Спецификация материалов и оборудования по котельной, отоплению, канализации и водоснабжению дома в Сходне (г.Химки).
Объем проекта отопления, канализации и водоснабжения дома в Сходне (г.Химки): 59 листов.
Описание проекта отопления, котельной, канализации и водоснабжения частного дома 524 м.кв. в Сходне (г.Химки).
Котельная частного дома в Сходне (г.Химки)(проект котельной бесплатно).
o Размещена в отдельном помещении первого этажа дома 524 м.кв.;
o Теплогенератор - настенный газовый котел Vaillant ecoTEС, мощностью 45 кВт;
o Контуры теплоснабжения котельной – радиаторное отопление дома (2 контура) и горячее водоснабжение, для которого предусмотрен накопительный бойлер Vaillant, объемом 300 литров (подключение к коллектору);
o Расширительные баки отопления и бойлера Flamco, объемом 50 и 25 литров соответственно;
o Дымоудаление принудительное, дымоход коаксиальный, через стену;
o Распределительный коллектор Meibes с насосными группами;
o Автоматика котельной – контроллер ZONT Climatic 1.3 со встроенным GSM-модулем.
Отопление дома в Сходне (г.Химки) (проект отопления дома).
o Выполнен теплотехнический расчет отопления дома из керамических блоков (утеплитель кровли - минеральная вата Rockwool, 150мм) с учетом теплопотерь через ограждающие конструкции при наружной температуре -28°С для Московской области (по СП 131.13330.2012), расчетный расход тепла на отопление дома составил 39,09 кВт, удельные теплопотери 74,5 Вт/м.кв.;
o Подобраны приборы для отопления дома: стальные панельные радиаторы KERMI с нижним подключением, в вентильном исполнении и встроенные в пол конвекторы Varmann;
o Схема радиаторного отопления дома двухтрубная, коллекторно-лучевая, с принудительной циркуляцией теплоносителя и температурным графиком 80/60°С;
o Трубы отопления из сшитого полиэтилена Rehau;
o Теплоизоляция трубопроводов отопления Энергофлекс, толщиной 9мм;
o Теплоноситель в системе радиаторного отопления дома – подготовленная вода, предусмотрены средства защиты от образования накипи.
Водяной теплый пол проектом не предусмотрен.
Внутренний водопровод дома в Сходне (г.Химки) (проект водоснабжения).
o Схема внутреннего водоснабжения дома – коллекторно-лучевая с рециркуляцией горячей воды через коллекторы, выполнен расчет 46-и точек водоснабжения;
o Трубопроводы системы водоснабжения – из сшитого полиэтилена Rehau;
o Теплоизоляция трубопроводов Энергофлекс Супер, толщиной 9мм;
o Для летнего водопровода предусмотрен незамерзающий кран Meibes SEPP-Eis.
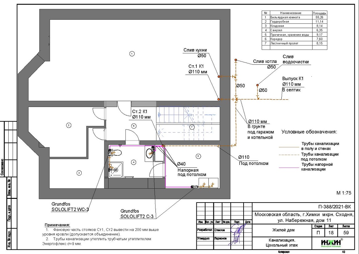
Внутренняя канализация (проект канализации) дома в Сходне (г.Химки).
o Комбинированная, безнапорная, с напорным участком в цокольном этаже, отвод стоков от санитарно-технических приборов предусмотрен в септик;
o Произведен расчет 25-ти точек бытовой канализации, предусмотрено три КНС Grundfos Sololift2 C-3 и Sololift2 WC-3;
o Канализационные трубы Синикон, раструбные, из полипропилена.
Для этого дома в Сходне выполнен проект электрики.






















