Выполненные проекты
Проект электрики дома в мкр Сходня
Объект: частный дом из керамических блоков, площадью 524 м.кв., расположенный в мкр Сходня (г.Химки) Московской области.
Цена (стоимость) проекта электрики (электропроводки): 62 723 руб. со скидкой 10%, проект слаботочных кабельных линий - бесплатно.
Проект электрики выполнен: 05.05.2021
Состав проекта электрики дома в мкр Сходня:
1. Пояснительная записка. Общие данные по электроснабжению и освещению частного дома в мкр Сходня.
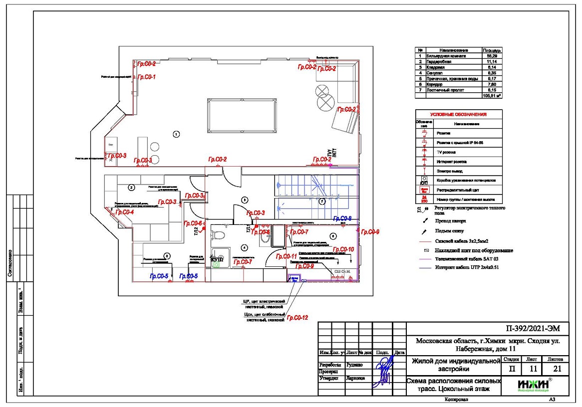
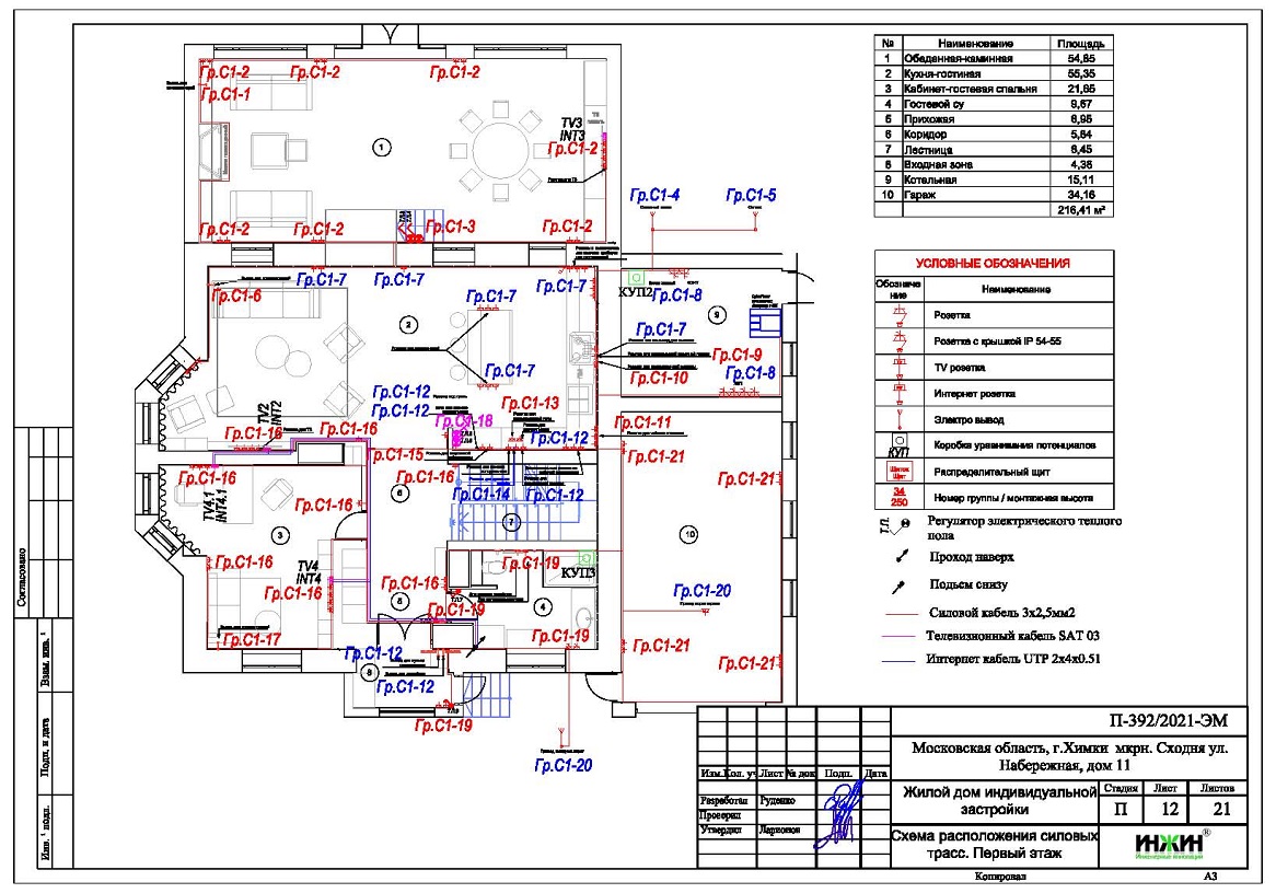
2. Однолинейные схемы вводного распределительного устройства и электрического распределительного щита дома 524 м.кв.
3. Чертежи электропроводки дома в мкр Сходня.
4. Чертежи групповых осветительных сетей дома в мкр Сходня.
5. Спецификация материалов и оборудования по электрике и электропроводке дома в мкр Сходня.
Объем проекта электрики дома 524 м.кв.: 21 лист.
Проект электрики дома площадью 524 м.кв. в мкр Сходня- подробное описание.
Расчетные показатели по электроснабжению и освещению дома в мкр Сходня.
o Расчетная электрическая мощность дома составила 29,56 кВт, с учетом коэффициента спроса 0,45, принятого согласно СП 256.1325800.2016;
o При расчете учтено силовое оборудование: кондиционеры, газовый котел, электрический теплый пол и полотенцесушители, скважинный насос.
Распределительные электрические щиты дома площадью 524 м.кв.
o Проектом предусмотрен распределительный электрический щит, размещенный помещении цокольного этажа;
o Автоматические выключатели, дифференциальные автоматы, рубильники и УЗО в щите – ABB, в количестве 71 шт. размещены во встраиваемом корпусе.
Силовая кабельная сеть (электропроводка) дома в мкр Сходня.
o Электропроводка дома предусмотрена с использованием кабелей ВВГ нг -LS с медными жилами в ПВХ-оболочке (не поддерживает горение);
o Общая протяженность линий электроснабжения и освещения – 2280 метров, вводные кабельные линии - бронированные кабели (ВБбШв) 70 метров;
o Электропроводка предусмотрена скрытым способом, в гофрированной ПВХ-трубе и металлорукаве в виниловой оболочке;
o Запроектировано 330 точек подключения розеток и выключателей освещения в доме;
o Предусмотрены слаботочные линии локальной вычислительной сети и телевидения, общая протяженность - 1110 метров.
Предусмотрено резервное электропитание - однофазный инвертор CyberPower мощностью 7,5 кВт.
Для этого дома в Сходне выполнен проект котельной, отопления, водоснабжения и канализации.






















