Выполненные проекты
Проект электрики дома 200 м.кв. в КП "Кстининское Озеро"
Объект: дом из бруса общей площадью 200 м.кв. в КП "Кстининское Озеро" Московской области
Цена (стоимость) проекта электрики (электропроводки): 23 390 руб. со скидкой 10%, проект слаботочных кабельных линий - бесплатно.
Проект электрики выполнен: 20.05.2021
Состав проекта электрики дома в КП "Кстининское Озеро":
1. Пояснительная записка. Общие данные по электроснабжению и освещению частного дома в КП "Кстининское Озеро".
2. Однолинейные схемы вводного распределительного устройства и электрического распределительного щита дома 200 м.кв.
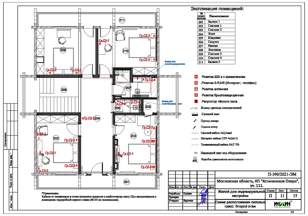
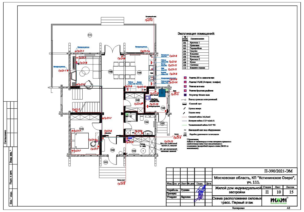
3. Чертежи электропроводки дома в КП "Кстининское Озеро".
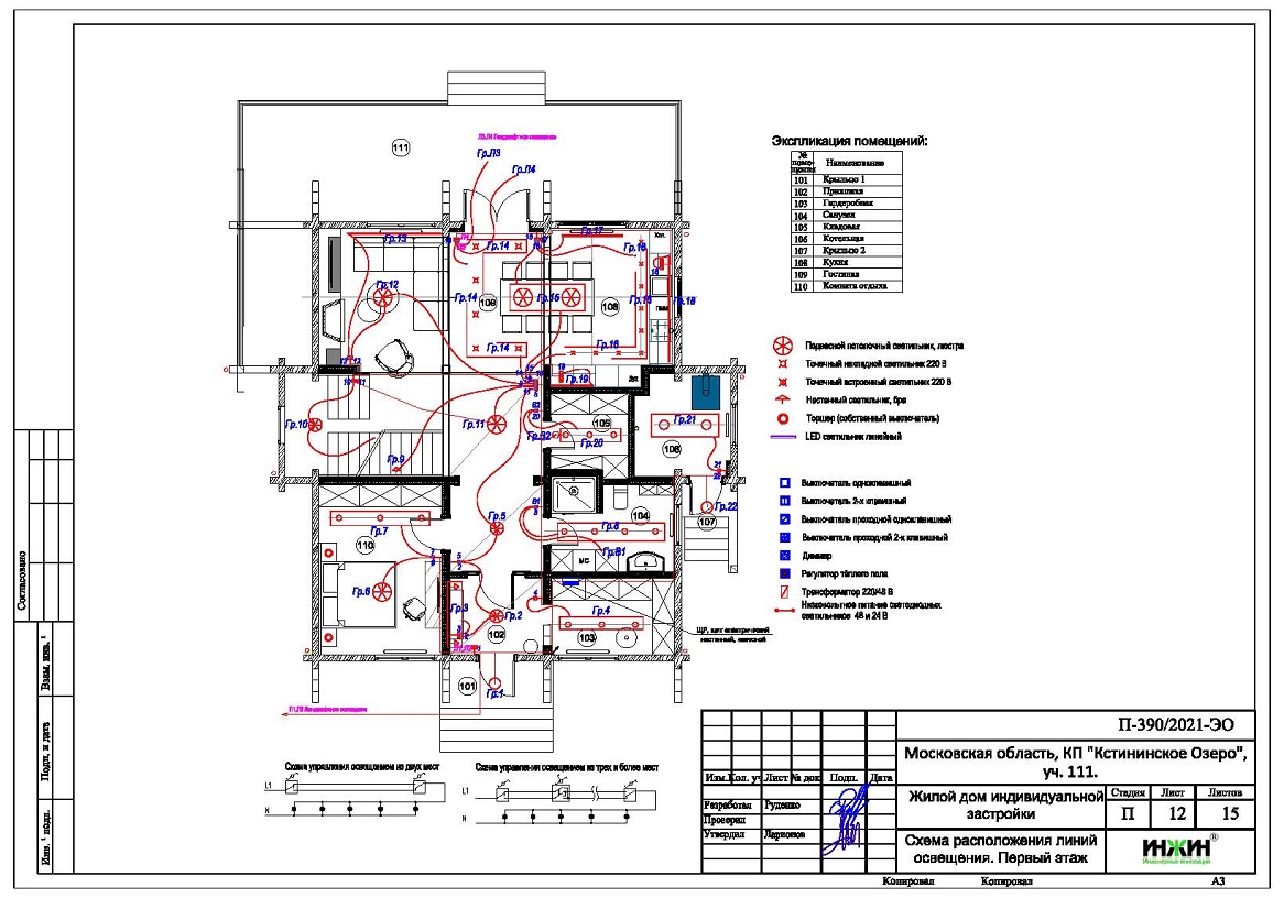
4. Чертежи групповых осветительных сетей дома в КП "Кстининское Озеро".
5. Спецификация материалов и оборудования по электрике и электропроводке дома в КП "Кстининское Озеро".
Объем проекта электрики дома 200 м.кв.: 15 листов.
Проект электрики дома площадью 200 м.кв. в КП "Кстининское Озеро"- подробное описание.
Расчетные показатели по электроснабжению и освещению дома в КП "Кстининское Озеро".
o Расчетная электрическая мощность дома составила 15,48 кВт, с учетом коэффициента спроса 0,6, принятого согласно СП 256.1325800.2016;
o При расчете учтено силовое оборудование: полотенцесушители, газовый котел, колодезный насос.
Распределительные электрические щиты дома площадью 200 м.кв.
o Проектом предусмотрен распределительный электрический щит, размещенный в гардеробной;
o Автоматические выключатели, дифференциальные автоматы, рубильники и УЗО в щите – ABB, в количестве 23 шт. размещены в пристраиваемом корпусе.
Силовая кабельная сеть (электропроводка) дома в КП "Кстининское Озеро".
o Электропроводка дома предусмотрена с использованием кабелей ВВГ нг -LS с медными жилами в ПВХ-оболочке (не поддерживает горение);
o Общая протяженность линий электроснабжения и освещения – 1660 метров, вводные кабельные линии - бронированные кабели (ВБбШв) 140 метров;
o Электропроводка предусмотрена скрытым способом, в металлорукаве в виниловой оболочке;
o Запроектировано 129 точек подключения розеток и выключателей освещения в доме;
o Предусмотрены слаботочные линии локальной вычислительной сети и телевидения, общая протяженность - 655 метров.
Предусмотрено резервное электропитание - однофазный инвертор CyberPower мощностью 7 кВт.



















