Выполненные проекты
Проект электрики дома в КП "Кратово"
Объект: загородный частный дом из газобетонных блоков, площадью 184 м.кв., расположенный в КП "Кратово" Московской области
Цена (стоимость) проекта электрики (электропроводки): 22 025 руб. со скидкой 10%, проект слаботочных кабельных линий - бесплатно.
Проект электрики выполнен: 03.06.2021
Состав проекта электрики дома в КП "Кратово":
1. Пояснительная записка. Общие данные по электроснабжению и освещению частного дома в КП "Кратово".
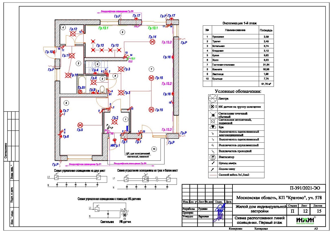
2. Однолинейные схемы вводного распределительного устройства и электрического распределительного щита дома 184 м.кв.
3. Чертежи электропроводки дома в КП "Кратово".
4. Чертежи групповых осветительных сетей дома в КП "Кратово".
5. Спецификация материалов и оборудования по электрике и электропроводке дома в КП "Кратово".
Объем проекта электрики дома 184 м.кв.: 15 листов.
Проект электрики дома площадью 184 м.кв. в КП "Кратово"- подробное описание.
Расчетные показатели по электроснабжению и освещению дома в КП "Кратово".
o Расчетная электрическая мощность дома составила 15,00 кВт, с учетом коэффициента спроса 0,6, принятого согласно СП 256.1325800.2016;
o При расчете учтено силовое оборудование: газовые котлы, скважинный насос, кондиционеры, электрические полотенцесушители.
Распределительные электрические щиты дома площадью 184 м.кв.
o Проектом предусмотрен распределительный электрический щит, размещенный в гардеробной;
o Автоматические выключатели, дифференциальные автоматы, рубильники и УЗО в щите – ABB, в количестве 35 шт. размещены в пристраиваемом корпусе.
Силовая кабельная сеть (электропроводка) дома в КП "Кратово".
o Электропроводка дома предусмотрена с использованием кабелей ВВГ нг -LS с медными жилами в ПВХ-оболочке (не поддерживает горение);
o Общая протяженность линий электроснабжения и освещения – 960 метров, вводные кабельные линии - бронированные кабели (ВБбШв) 140 метров;
o Электропроводка предусмотрена скрытым способом, в металлорукаве в виниловой оболочке;
o Запроектировано 125 точек подключения розеток и выключателей освещения в доме;
o Предусмотрены слаботочные линии локальной вычислительной сети и телевидения, общая протяженность - 450 метров.
Предусмотрено резервное электропитание - трехфазный генератор мощностью 15 кВт (по выбору Заказчика).
Заказать проект электрики дома дистанционно.
Для этого загородного дома в КП "Кратово" выполнен проект отопления, водоснабжения и канализации.



















