Выполненные проекты
Электрика деревянного дома (брус) в мкр. Семхоз
Объект: дом из бруса общей площадью 172 м.кв. в мкр Семхоз, Сергиев Посад Московской области
Цена (стоимость) проекта электрики (электропроводки): 20 588 руб. со скидкой 10%, проект слаботочных кабельных линий - бесплатно.
Проект электрики выполнен: 24.06.2021
Состав проекта электрики дома в мкр Семхоз (Сергиев Посад):
1. Пояснительная записка. Общие данные по электроснабжению и освещению частного дома в мкр Семхоз (Сергиев Посад).
2. Однолинейные схемы вводного распределительного устройства и электрического распределительного щита дома 172 м.кв.
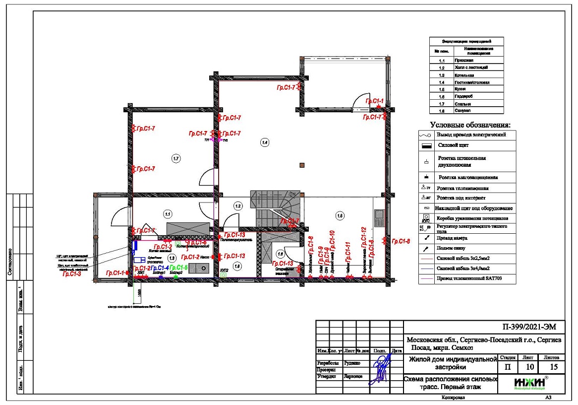
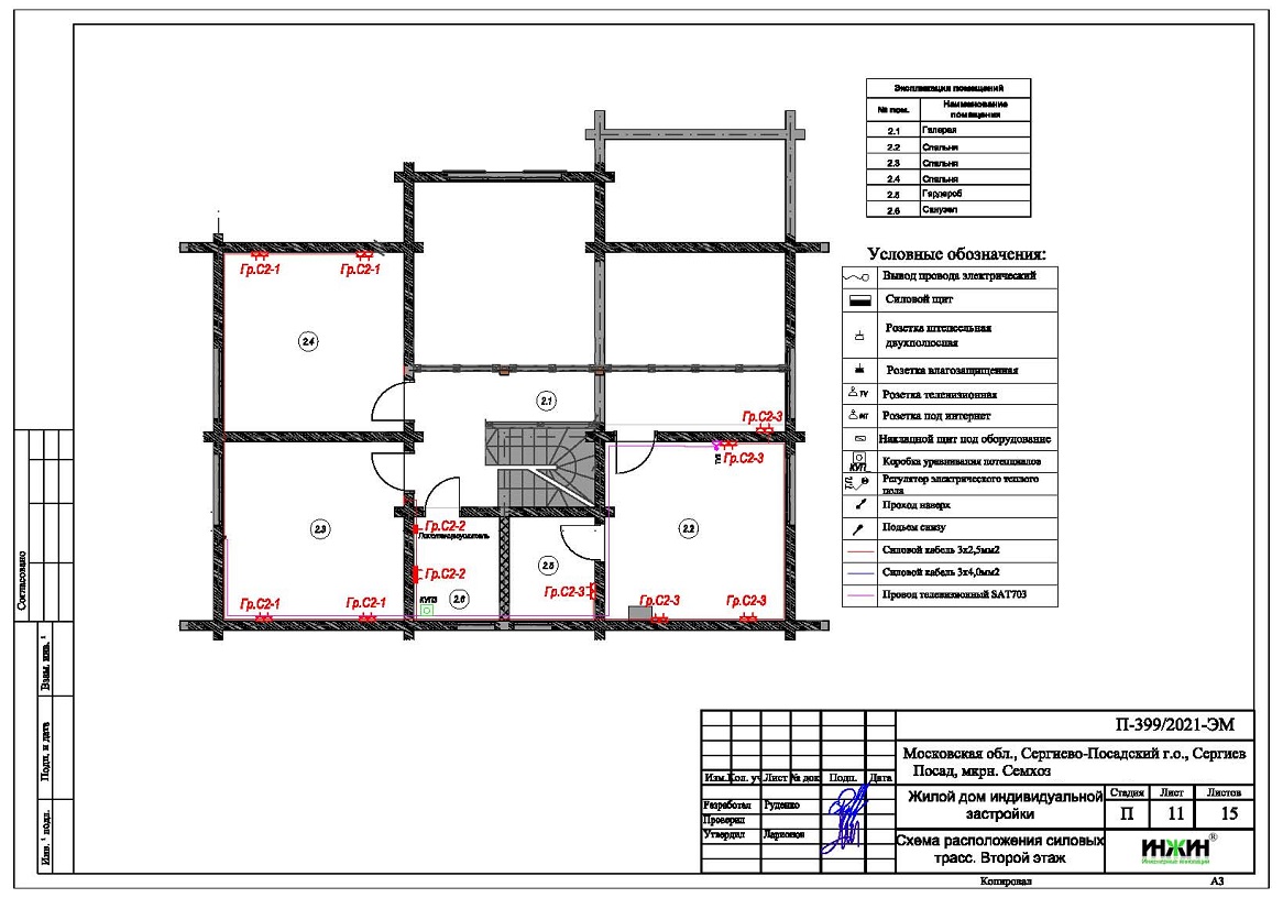
3. Чертежи электропроводки дома в мкр Семхоз (Сергиев Посад).
4. Чертежи групповых осветительных сетей дома в мкр Семхоз (Сергиев Посад).
5. Спецификация материалов и оборудования по электрике и электропроводке дома в мкр Семхоз (Сергиев Посад).
Объем проекта электрики дома 172 м.кв.: 15 листов.
Проект электрики дома площадью 200 м.кв. в Сергиевом Посаде- подробное описание.
Расчетные показатели по электроснабжению и освещению дома в Сергиевом Посаде.
o Расчетная электрическая мощность дома составила 19,04 кВт, с учетом коэффициента спроса 0,55, принятого согласно СП 256.1325800.2016;
o При расчете учтено силовое оборудование: водонагреватели, электрический котел, скважинный насос.
Распределительные электрические щиты дома площадью 172 м.кв.
o Проектом предусмотрен распределительный электрический щит, размещенный в гардеробной;
o Автоматические выключатели, дифференциальные автоматы, рубильники и УЗО в щите – ABB, в количестве 21 шт. размещены в пристраиваемом корпусе.
Силовая кабельная сеть (электропроводка) дома в Сергиевом Посаде.
o Электропроводка дома предусмотрена с использованием кабелей ВВГ нг -LS с медными жилами в ПВХ-оболочке (не поддерживает горение);
o Общая протяженность линий электроснабжения и освещения – 595 метров;
o Электропроводка предусмотрена скрытым способом, в металлорукаве в виниловой оболочке;
o Запроектировано 99 точек подключения розеток и выключателей освещения в доме;
o Предусмотрены слаботочные линии локальной вычислительной сети и телевидения, общая протяженность - 140 метров.
Предусмотрено резервное электропитание - однофазный инвертор CyberPower мощностью 1 кВт.




















