Выполненные проекты
Проект отопления дома 172 м.кв. в Сергиевом Посаде
Объект: двухэтажный дом из бруса общей площадью 172 м.кв. в мкр Семхоз, Сергиев Посад Московской области.
Вариант отопления: «Комфортный»
Цена проекта отопления, канализации и водоснабжения: 35 604 руб. со скидкой 10%, проект котельной - бесплатно.
Проект котельной, отопления, водоснабжения и канализации выполнен: 24.06.2021
Состав проекта котельной, отопления, канализации и водоснабжения дома в Сергиевом Посаде:
1. Пояснительная записка проекта, общие данные по системам отопления, канализации и водоснабжения дома 172 м.кв. в Московской области.
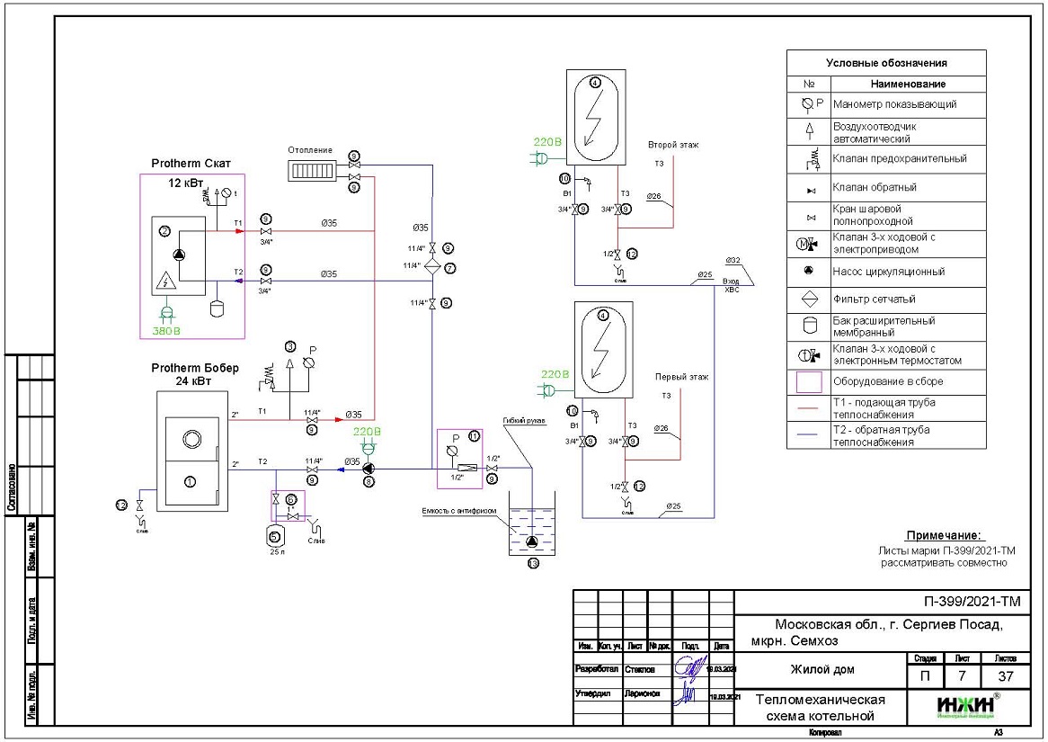
2. Тепломеханическая схема котельной с размещением оборудования в отдельном помещении дома из дерева.
3. Комплект поэтажных чертежей радиаторного отопления дома в мкр Семхоз.
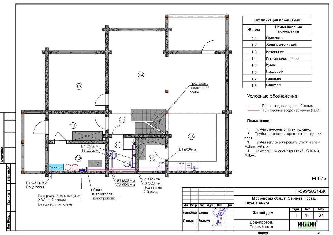
4. Комплект чертежей водоснабжения и канализации частного дома из бруса в мкр Семхоз (Сергиев Посад).
5. Типовые схемы системы отопления канализации и водоснабжения дома 172 м.кв.
6. Теплотехнический расчет отопления дома из бруса.
7. Спецификация материалов и оборудования по котельной, отоплению, канализации и водоснабжению дома в мкр Семхоз (Сергиев Посад).
Объем проекта отопления, канализации и водоснабжения дома в мкр Семхоз: 37 листов.
Описание проекта отопления, котельной, канализации и водоснабжения частного дома 172 м.кв. в Сергиевом Посаде.
Котельная частного дома в мкр Семхоз (Сергиев Посад)(проект котельной бесплатно).
o Размещена в отдельном помещении дома 172 м.кв.;
o Теплогенераторы: основной - напольный твердотопливный котел Protherm Бобер, мощностью 24 кВт, резервный - настенный электрический котел Proherm Скат мощностью 12 кВт;
o Контуры теплоснабжения котельной – радиаторное отопление дома. Для горячего водоснабжения предусмотрено два накопительных электрических бойлера Drazice, объемом 100 литров каждый;
o Расширительный бак отопления Flamco, объемом 25 литров;
o Дымоудаление естественное, дымоход из нержавеющей стали, утепленный, наружного исполнения, диаметр 150 мм;
o Распределительный коллектор не предусмотрен;
o Автоматика котельной – встроена в котлы отопления.
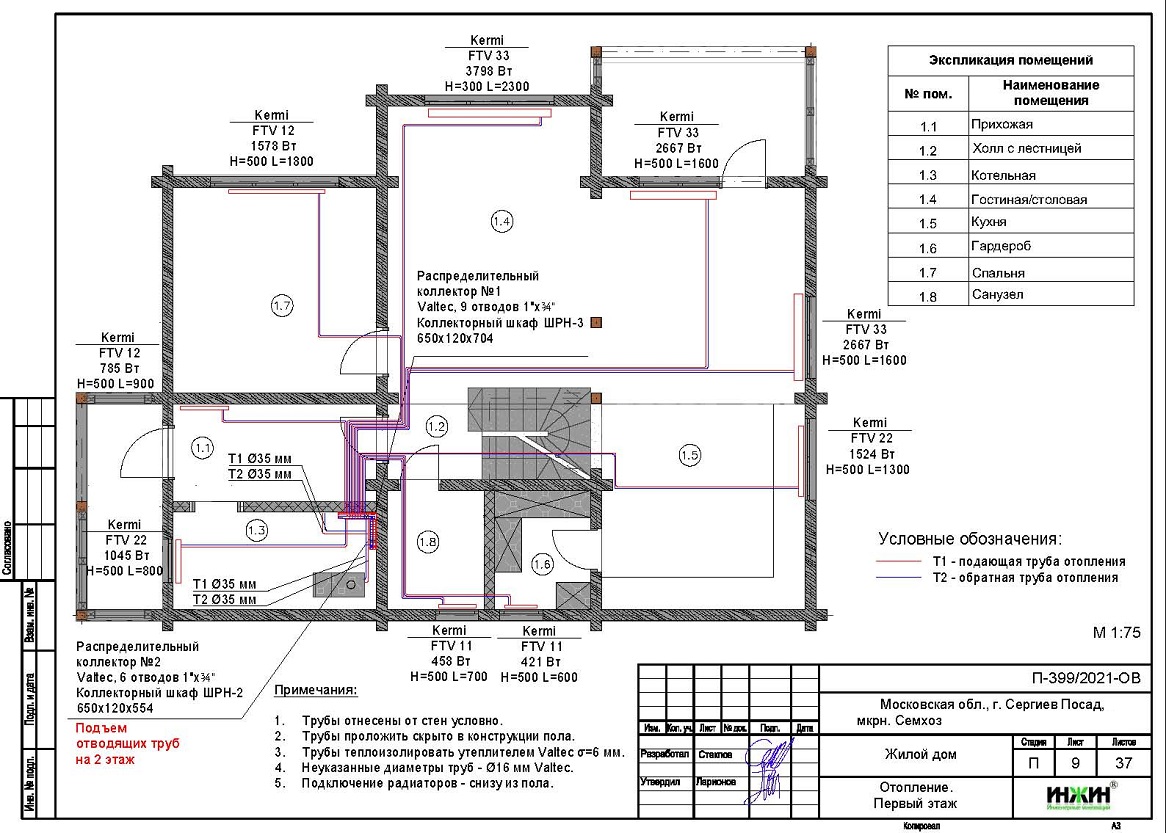
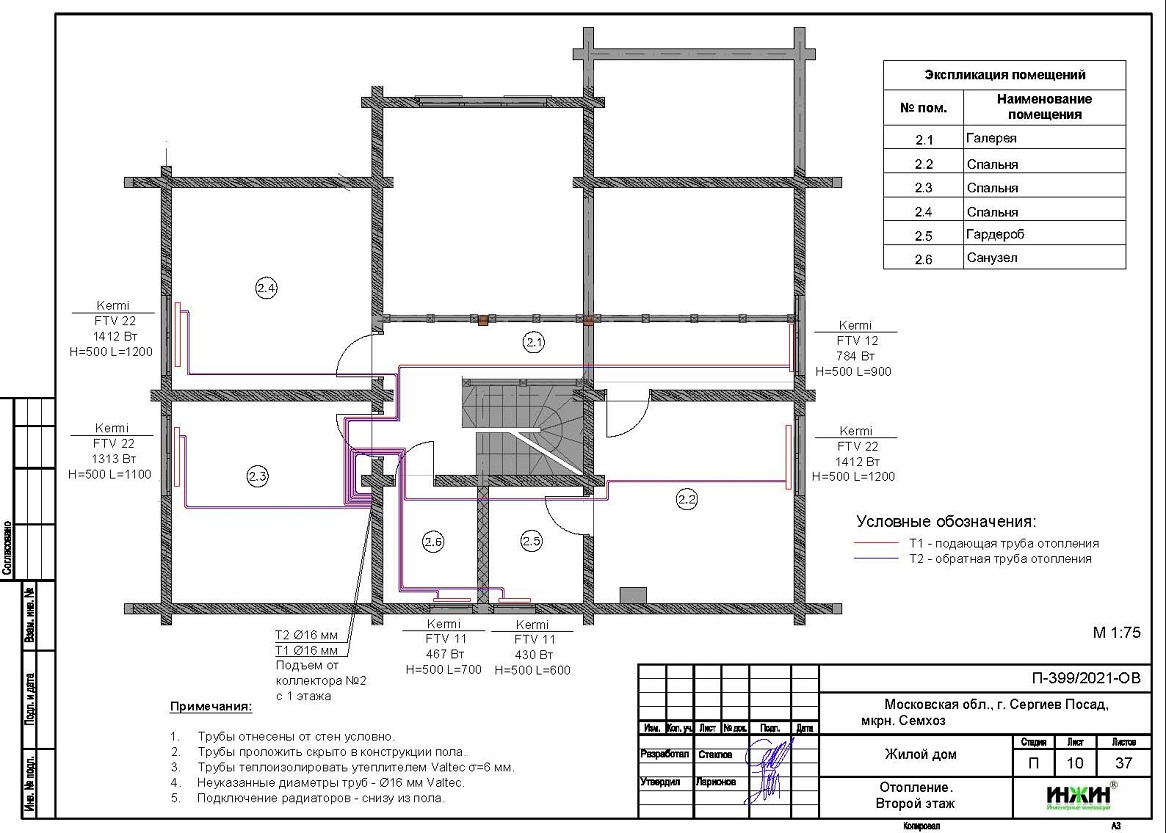
Отопление дома в мкр Семхоз (Сергиев Посад) (проект отопления дома).
o Выполнен теплотехнический расчет отопления дома из бруса (утеплитель кровли и пола базальтовая вата Rockwool 250мм) с учетом теплопотерь через ограждающие конструкции при наружной температуре -28°С для Московской области (по СП 131.13330.2012), расчетный расход тепла на отопление дома составил 20,4 кВт, удельные теплопотери 130,6 Вт/м.кв.;
o Подобраны приборы для отопления дома: стальные панельные радиаторы Kermi с нижним подключением, в вентильном исполнении;
o Схема радиаторного отопления дома двухтрубная, коллекторно-лучевая, с принудительной циркуляцией теплоносителя и температурным графиком 80/60°С;
o Трубы отопления из металлопластика Valtec;
o Теплоизоляция трубопроводов отопления Энергофлекс, толщиной 9мм;
o Теплоноситель в системе радиаторного отопления дома – антифриз для систем отопления Warme Eco Pro 30 (180 литров).
Водяной теплый пол проектом не предусмотрен.
Внутренний водопровод дома в мкр Семхоз (Сергиев Посад) (проект водоснабжения).
o Схема внутреннего водоснабжения дома – тройниковая с распределительным узлом в котельной, без рециркуляции горячей воды, выполнен расчет 18-и точек водоснабжения и полотенцесушителей;
o Теплоизоляция трубопроводов Энергофлекс Супер, толщиной 9мм.
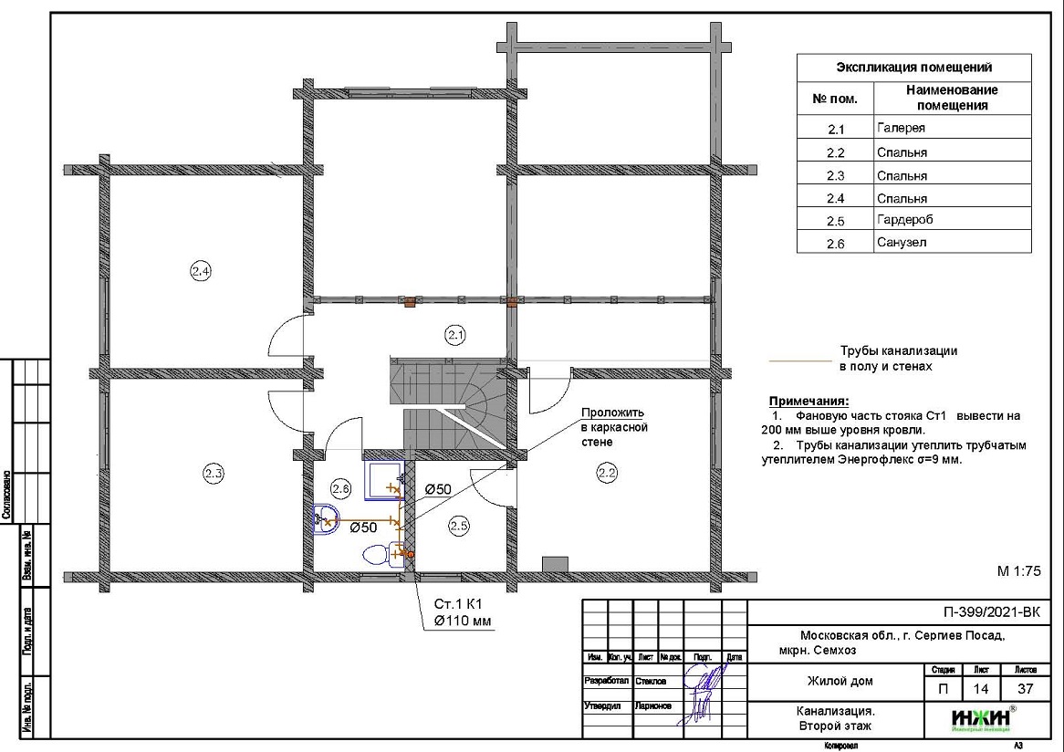
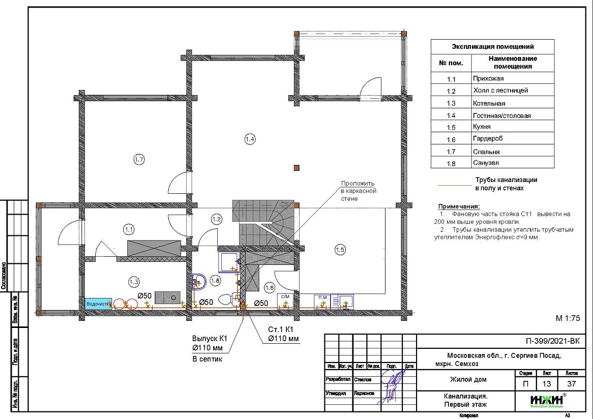
Внутренняя канализация (проект канализации) дома в мкр Семхоз (Сергиев Посад).
o Безнапорная, отвод стоков от санитарно-технических приборов предусмотрен в септик;
o Произведен расчет 13-ти точек бытовой канализации;
o Канализационные трубы Синикон, раструбные, из полипропилена.
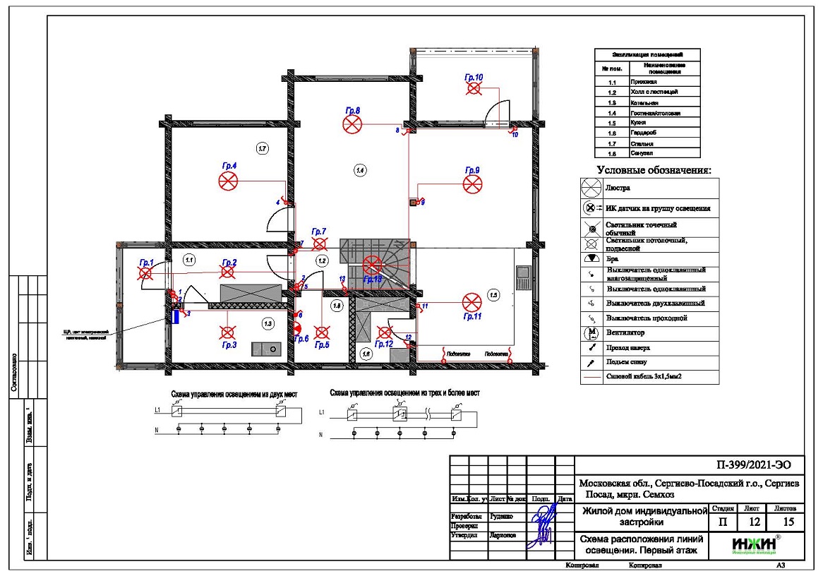
Для этого дома в мкр Семхоз (Сергиев Посад) выполнен проект электрики.






















