Выполненные проекты
Проект электрики дома из газобетона, площадью 201 м.кв.
Объект: частный дом из газобетонных блоков, площадью 201 м.кв., расположенный в мкр. Степаньковская Слобода (г.о. Пушкино) Московской области
Цена (стоимость) проекта электрики (электропроводки): 24 060 руб. со скидкой 10%, проект слаботочных кабельных линий - бесплатно.
Проект электрики выполнен: 05.07.2021
Состав проекта электрики дома в Пушкино:
1. Пояснительная записка. Общие данные по электроснабжению и освещению частного дома в Пушкино (мкр.Степаньковская Слобода).
2. Однолинейные схемы вводного распределительного устройства и электрического распределительного щита дома 201 м.кв.
3. Чертежи электропроводки дома в Пушкино (мкр.Степаньковская Слобода).
4. Чертежи групповых осветительных сетей дома в Пушкино.
5. Спецификация материалов и оборудования по электрике и электропроводке дома в мкр.Степаньковская Слобода.
Объем проекта электрики дома 201 м.кв.: 17 листов.
Проект электрики дома площадью 201 м.кв. в Пушкино (мкр.Степаньковская Слобода)- подробное описание.
Расчетные показатели по электроснабжению и освещению дома в мкр.Степаньковская Слобода.
o Расчетная электрическая мощность дома составила 23,01 кВт, с учетом коэффициента спроса 0,55, принятого согласно СП 256.1325800.2016;
o При расчете учтено силовое оборудование: газовый и электрический котлы, скважинный насос, обогрев водостоков.
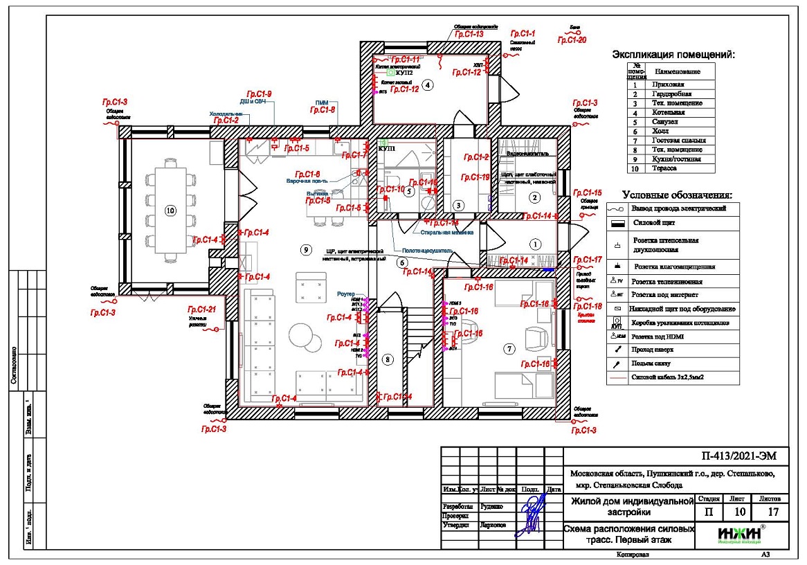
Распределительные электрические щиты дома площадью 201 м.кв.
o Проектом предусмотрен распределительный электрический щит, размещенный в гардеробной;
o Автоматические выключатели, дифференциальные автоматы, рубильники и УЗО в щите – Legrand, в количестве 36 шт. размещены во встраиваемом корпусе СТЕФ ЭЛЕКТРО.
Силовая кабельная сеть (электропроводка) дома в Пушкино.
o Электропроводка дома предусмотрена с использованием кабелей ВВГ нг -LS с медными жилами в ПВХ-оболочке (не поддерживает горение);
o Общая протяженность линий электроснабжения и освещения – 1530 метров, вводные кабельные линии - бронированный кабель (ВБбШв) 225 метров;
o Электропроводка предусмотрена скрытым способом, в гофротрубе (ПВХ);
o Запроектировано 165 точек подключения розеток и выключателей освещения в доме;
o Предусмотрены слаботочные линии локальной вычислительной сети и телевидения, общая протяженность - 855 метров.
Предусмотрено резервное электропитание - однофазный генератор мощностью 3 кВт (по выбору Заказчика).



















