Выполненные проекты
Электрика дома в мкр Пушкинский лес, проект
Объект: загородный дом из пустотелого кирпича, площадью 282 м.кв., расположенный в микрорайоне "Пушкинский лес" (Софрино), Пушкинского района Московской области.
Цена (стоимость) проекта электрики (электропроводки): 23 211 руб. со скидкой 10%, проект слаботочных кабельных линий - бесплатно.
Проект электрики выполнен: 14.07.2021
Состав проекта электрики дома в мкр Пушкинский лес:
1. Пояснительная записка. Общие данные по электроснабжению и освещению частного дома в мкр Пушкинский лес.
2. Однолинейные схемы вводного распределительного устройства и электрического распределительного щита дома 282 м.кв.
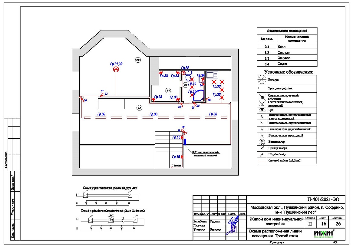
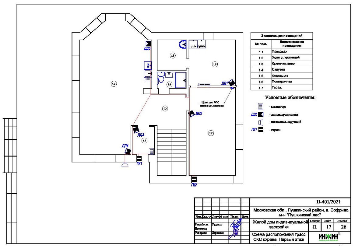
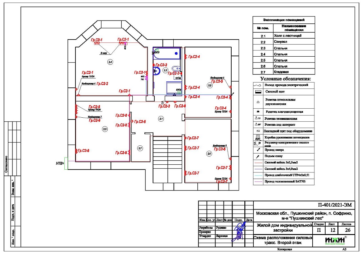
3. Чертежи электропроводки дома в мкр Пушкинский лес.
4. Чертежи групповых осветительных сетей дома в мкр Пушкинский лес.
5. Спецификация материалов и оборудования по электрике и электропроводке дома в мкр Пушкинский лес.
Объем проекта электрики дома 282 м.кв.: 26 листов.
Проект электрики дома площадью 282 м.кв. в мкр Пушкинский лес- подробное описание.
Расчетные показатели по электроснабжению и освещению дома в мкр Пушкинский лес.
o Расчетная электрическая мощность дома составила 23,52 кВт, с учетом коэффициента спроса 0,55, принятого согласно СП 256.1325800.2016;
o При расчете учтено силовое оборудование: кондиционеры, газовый котел, электрический теплый пол, сауна, дренажный насос.
Распределительные электрические щиты дома площадью 282 м.кв.
o Проектом предусмотрено два распределительных электрических щита, размещенный в помещении гаража и мансардного этажа;
o Автоматические выключатели, дифференциальные автоматы, рубильники и УЗО в щите – ABB, в количестве 61 шт. размещены во встраиваемых корпусах.
Силовая кабельная сеть (электропроводка) дома в мкр Пушкинский лес.
o Электропроводка дома предусмотрена с использованием кабелей ВВГ нг -LS с медными жилами в ПВХ-оболочке (не поддерживает горение);
o Общая протяженность линий электроснабжения и освещения – 1366 метров, вводные кабельные линии - бронированные кабели (ВБбШв) 65 метров;
o Электропроводка предусмотрена скрытым способом, в гофрированной ПВХ-трубе и металлорукаве в виниловой оболочке;
o Запроектировано 150 точек подключения розеток и выключателей освещения в доме;
o Предусмотрены слаботочные линии локальной вычислительной сети, видеонаблюдения, охранно-пожарной сигнализации и телевидения, общая протяженность - 350 метров.
Предусмотрено резервное электропитание - однофазный инвертор CyberPower мощностью 5 кВт.
Для этого дома в мкр Пушкинский лес выполнен проект котельной, отопления, водоснабжения и канализации.






















