Выполненные проекты
Электрика дома в КП «Усадьба Жодочи», проект
Объект: дом из газобетонных блоков, площадью 325 м.кв., расположенный в КП «Усадьба Жодочи -2», Наро-Фоминского района Московской области
Цена (стоимость) проекта электрики (электропроводки): 38 903 руб. со скидкой 10%, проект слаботочных кабельных линий - бесплатно.
Проект электрики выполнен: 16.08.2021
Состав проекта электрики дома в КП «Усадьба Жодочи -2»:
1. Пояснительная записка. Общие данные по электроснабжению и освещению частного дома в КП «Усадьба Жодочи -2».
2. Однолинейные схемы вводного распределительного устройства и электрического распределительного щита дома 325 м.кв.
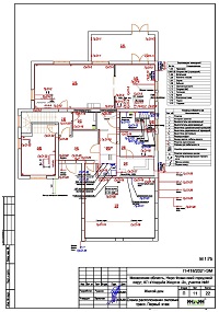
3. Чертежи электропроводки дома в КП «Усадьба Жодочи -2».
4. Чертежи групповых осветительных сетей дома в КП «Усадьба Жодочи -2».
5. Спецификация материалов и оборудования по электрике и электропроводке дома в КП «Усадьба Жодочи -2».
Объем проекта электрики дома 325 м.кв.: 22 листа.
Проект электрики дома площадью 325 м.кв. в КП «Усадьба Жодочи -2»- подробное описание.
Расчетные показатели по электроснабжению и освещению дома в КП «Усадьба Жодочи -2».
o Расчетная электрическая мощность дома составила 40,00 кВт, с учетом коэффициента спроса 0,45, принятого согласно СП 256.1325800.2016;
o При расчете учтено силовое оборудование: кондиционеры, газовый котел, электрический котел, сауна, дренажный насос, увлажнитель, вентустановка.
Распределительные электрические щиты дома площадью 325 м.кв.
o Проектом предусмотрено два распределительных электрических щита, размещенный помещении гаража и мансардного этажа;
o Автоматические выключатели, дифференциальные автоматы, рубильники и УЗО в щите – ABB, в количестве 68 шт. размещены во встраиваемых корпусах.
Силовая кабельная сеть (электропроводка) дома в КП «Усадьба Жодочи -2».
o Электропроводка дома предусмотрена с использованием кабелей ВВГ нг -LS с медными жилами в ПВХ-оболочке (не поддерживает горение);
o Общая протяженность линий электроснабжения и освещения – 1930 метров, вводные кабельные линии - бронированные кабели (ВБбШв) 85 метров;
o Электропроводка предусмотрена скрытым способом, в гофрированной ПВХ-трубе и металлорукаве в виниловой оболочке;
o Запроектировано 330 точек подключения розеток и выключателей освещения в доме;
o Предусмотрены слаботочные линии локальной вычислительной сети, видеонаблюдения, охранно-пожарной сигнализации и телевидения, общая протяженность - 2585 метров.
Предусмотрено резервное электропитание - однофазный инвертор ШТИЛЬ мощностью 5,4 кВт.
Для этого дома в КП «Усадьба Жодочи -2» выполнен проект котельной, отопления, водоснабжения и канализации.



















