Выполненные проекты
Проект электрики таунхауса площадью 146 м.кв.
Объект: таунхаус площадью 146 м.кв. в КП "Сосновый Бор", г. Королёв Московской области
Стоимость проекта электрики: 16 500 руб.
Проект электрики (электроснабжения и освещения) выполнен: 19.04.2013
Состав проекта электрики:
Пояснительная записка. Общие данные по электрике таунхауса.
Однолинейные схемы вводного распределительного устройства и поэтажных распределительных щитов.
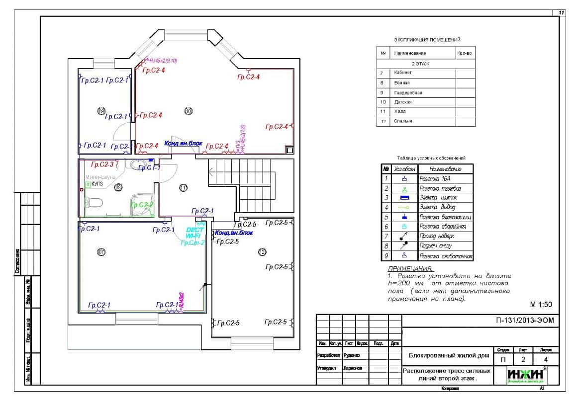
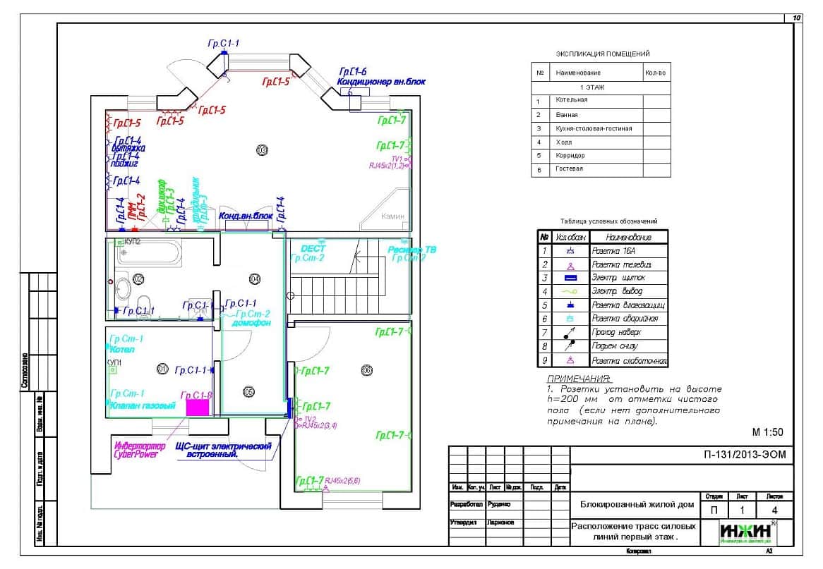
Поэтажные планы силовых электрических сетей.
Планы групповых осветительных сетей 1 и 2 этажей таунхауса.
Схема системы уравнивания потенциалов.
Спецификация материалов и оборудования по электрике таунхауса.
Объем проекта электрики: 16 листов.
Описание проекта электроснабжения и освещения (электрики), выполненного в соответствии с заданием Заказчика.
Электрические распределительные щиты.
o Проектом предусмотрен один щит, оснащенный 32-мя автоматами;
o Автоматические выключатели, дифференциальные автоматы и УЗО в щитах - Hager;
o В щите предусмотрена установка устройств управления световыми сценариями, жалюзи и электрокарнизами GIRA;
o Корпус щита - Hager, встраиваемый.
Электропроводка (кабельная сеть).
o Проектом предусмотрено использование кабелей ВВГ нг -LS (Конкорд) с медными жилами в ПВХ-оболочке;
o Общая протяженность линий электроснабжения и освещения – 2 520 метров;
o Прокладка силовых линий предусмотрена скрытым способом, в пластиковой гофротрубе;
o Для системы управления предусмотрены кабельные трассы с использованием кабеля KNX/EIB, Y(St)Y 2x2x0,8 Belden.
Проектом предусмотрены элементы системы интеллектуального управления зданием KNX/EIB GIRA.
Для этого таунхауса разработан проект отопления, водоснабжения и канализации.



















