Выполненные проекты
Проект отопления таунхауса площадью 146 м.кв.
Объект: таунхаус площадью 146 м.кв. в КП "Сосновый Бор" г. Королёв
Вариант отопления: «Комфортный»
Цена проекта отопления: 26 540 руб. (проект котельной бесплатно).
Проект отопления, водоснабжения и канализации выполнен: 19.04.2013
Состав проекта отопления, водоснабжения и канализации таунхауса:
1. Пояснительная записка. Общие данные по отоплению, водоснабжению и канализации таунхауса.
2. Тепломеханическая схема котельной с размещением оборудования.
3. Комплект чертежей радиаторного отопления.
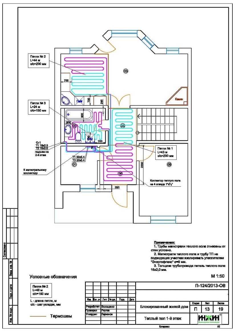
4. Комплект чертежей водяного теплого пола.
5. Комплект чертежей внутреннего водопровода и канализации.
6. Теплотехнический расчет отопления.
7. Спецификация оборудования по системам отопления, водоснабжения и канализации таунхауса.
Объем проекта отопления, водоснабжения и канализации таунхауса: 37 листов
Описание проекта котельной, отопления, водоснабжения и канализации таунхауса.
Котельная (проект котельной бесплатно).
o Котел – настенный газовый Thermona Therm 28СХ мощностью 28 кВт (в наличии);
o Контуры котельной – отопление дома, горячее водоснабжение и теплый пол, предусмотрен коллектор Meibes с насосными группами;
o Приготовление горячей воды обеспечивается при помощи бойлера Reflex, объемом 150 литров;
o Расширительные баки отопления и водоснабжения Reflex (Германия);
o Насосы отопления, водоснабжения и теплого пола Grundfos;
o Трубы дымоходные – пластиковые, реализованы на объекте;
o Автоматика котельной – Vaillant calorMATIC 630/3, программируемый пульт дистанционного управления с датчиком комнатной температуры Vaillant VR 90/3.
Система отопления (проект отопления по цене 75 руб. за м.кв.)
o Отопление запроектировано на базе секционных биметаллических радиаторов Rifar;
o Схема радиаторного отопления двухтрубная, коллекторная, с принудительной циркуляцией теплоносителя;
o Предусмотрена возможность реализации регулировки температуры воздуха в отдельных помещениях с помощью сервоприводов в коллекторных шкафах;
o Запроектирована скрытая прокладка трубопроводов отопления в выравнивающей стяжке пола;
o Температурный график отопления 80/60° С;
o Трубопроводы отопления – сшитый полиэтилен Rehau.
Водяной теплый пол (проект теплого пола).
o Теплый пол предусмотрен на площади 44 м.кв.;
o Трубопроводы теплого пола – сшитый полиэтилен Rehau;
o Температурный график теплого пола 40/35ºС.
Внутренний водопровод.
o Схема внутреннего водоснабжения – тройниковая;
o Трубопроводы системы водоснабжения – армированный полипропилен Valtec;
o В системе горячего водоснабжения предусмотрена рециркуляция горячей воды.
Внутренняя канализация.
o Предусмотрен безнапорный отвод стоков от санитарно-технических приборов;
o Трубопроводы канализации – полипропилен Синикон.
Для этого таунхауса разработан проект электрики.



















