Выполненные проекты
Проект электрики дома площадью 431 м.кв.
Объект: загородный дом из керамических блоков, площадью 431 м.кв., расположенный в дер. Клоково Московской области
Цена (стоимость) проекта электрики (электропроводки): 51 591 руб. со скидкой 10%, проект слаботочных кабельных линий - бесплатно.
Проект электрики выполнен: 02.09.2021
Состав проекта электрики дома в дер. Клоково:
1. Пояснительная записка. Общие данные по электроснабжению и освещению частного дома в дер. Клоково.
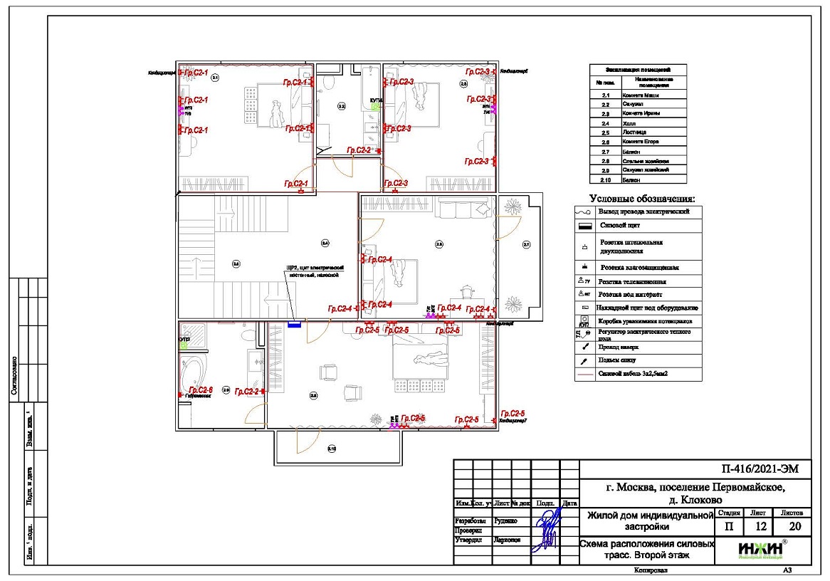
2. Однолинейные схемы вводного распределительного устройства и электрического распределительного щита дома 431 м.кв.
3. Чертежи электропроводки дома в дер. Клоково.
4. Чертежи групповых осветительных сетей дома в дер. Клоково.
5. Спецификация материалов и оборудования по электрике и электропроводке дома в дер. Клоково.
Объем проекта электрики дома 431 м.кв.: 20 листов.
Проект электрики дома площадью 431 м.кв. в дер. Клоково- подробное описание.
Расчетные показатели по электроснабжению и освещению дома в дер. Клоково.
o Расчетная электрическая мощность дома составила 18,17 кВт, с учетом коэффициента спроса 0,6, принятого согласно СП 256.1325800.2016;
o При расчете учтено силовое оборудование: кондиционеры, газовый котел, вентиляционная установка бассейна, сауна, скважинный насос.
Распределительные электрические щиты дома площадью 431 м.кв.
o Проектом предусмотрено два распределительных электрических щита, размещенный техническом помещении 1 этажа и в коридоре 2-го этажа;
o Автоматические выключатели, дифференциальные автоматы, рубильники и УЗО в щите – ABB, в количестве 47 шт. размещены в пристраиваемых корпусах.
Силовая кабельная сеть (электропроводка) дома в дер. Клоково.
o Электропроводка дома предусмотрена с использованием кабелей ВВГ нг -LS с медными жилами в ПВХ-оболочке (не поддерживает горение);
o Общая протяженность линий электроснабжения и освещения – 1760 метров, вводные кабельные линии - бронированные кабели (ВБбШв) 275 метров;
o Электропроводка предусмотрена скрытым способом, в гофрированной ПВХ-трубе и металлорукаве в виниловой оболочке;
o Запроектировано 180 точек подключения розеток и выключателей освещения в доме;
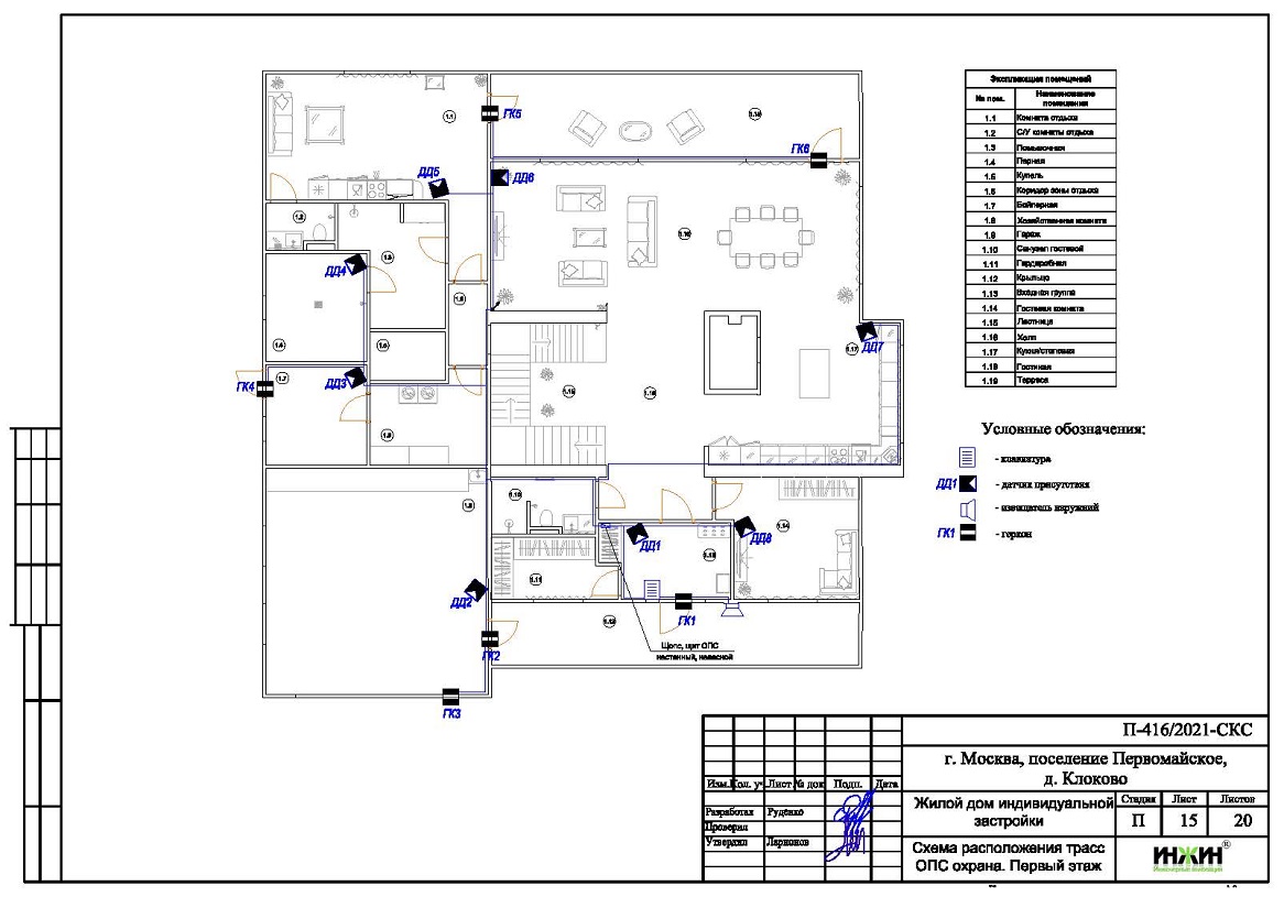
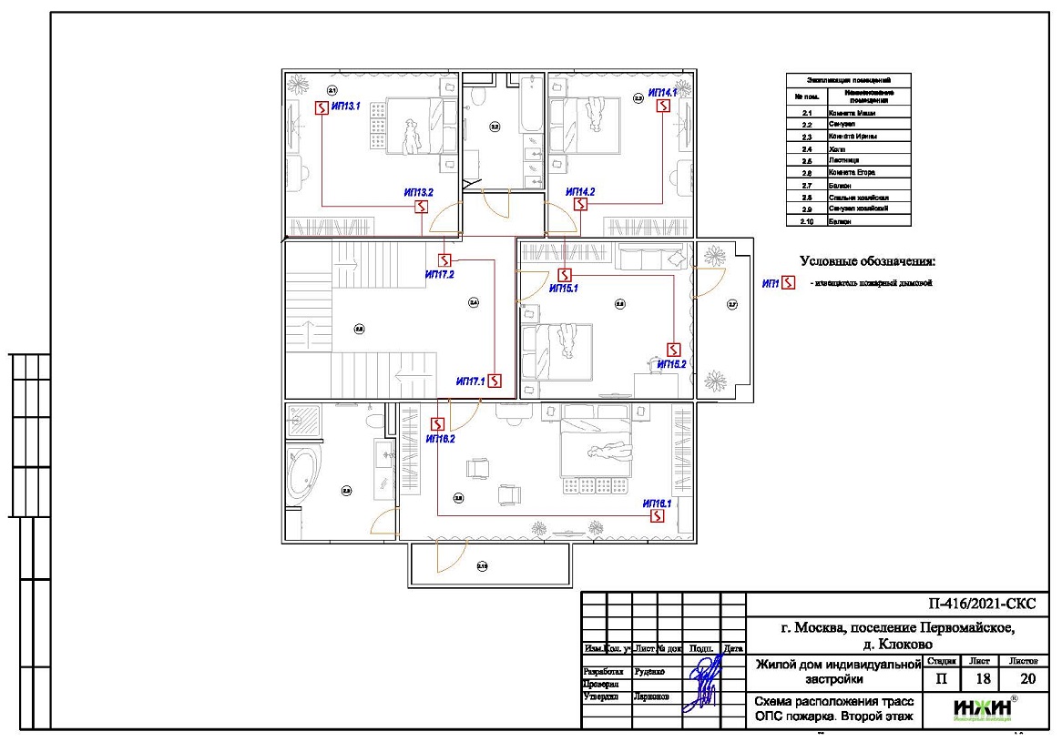
o Предусмотрены слаботочные линии локальной вычислительной сети, видеонаблюдения, охранно-пожарной сигнализации и телевидения, общая протяженность - 1875 метров.
Предусмотрено резервное электропитание - трехфазный газовый генератор (по выбору Заказчика).






















