Выполненные проекты
Отопление дома 200 м.кв. в Таганроге
Объект: трехэтажный частный дом из керамических блоков, площадью 200 м.кв., расположенный в г.Таганрог Ростовской области
Вариант отопления: «Комфортный+»
Цена проекта отопления и водоснабжения: 41 940 руб. со скидкой 10%, проект котельной - бесплатно.
Проект котельной, отопления и водоснабжения выполнен: 10.09.2021
Состав проекта котельной, отопления и водоснабжения дома в Таганроге:
1. Пояснительная записка проекта, общие данные по системам отопления и водоснабжения дома 200 м.кв. в Ростовской области.
2. Тепломеханическая схема котельной с размещением оборудования в отдельном помещении дома из керамических блоков.
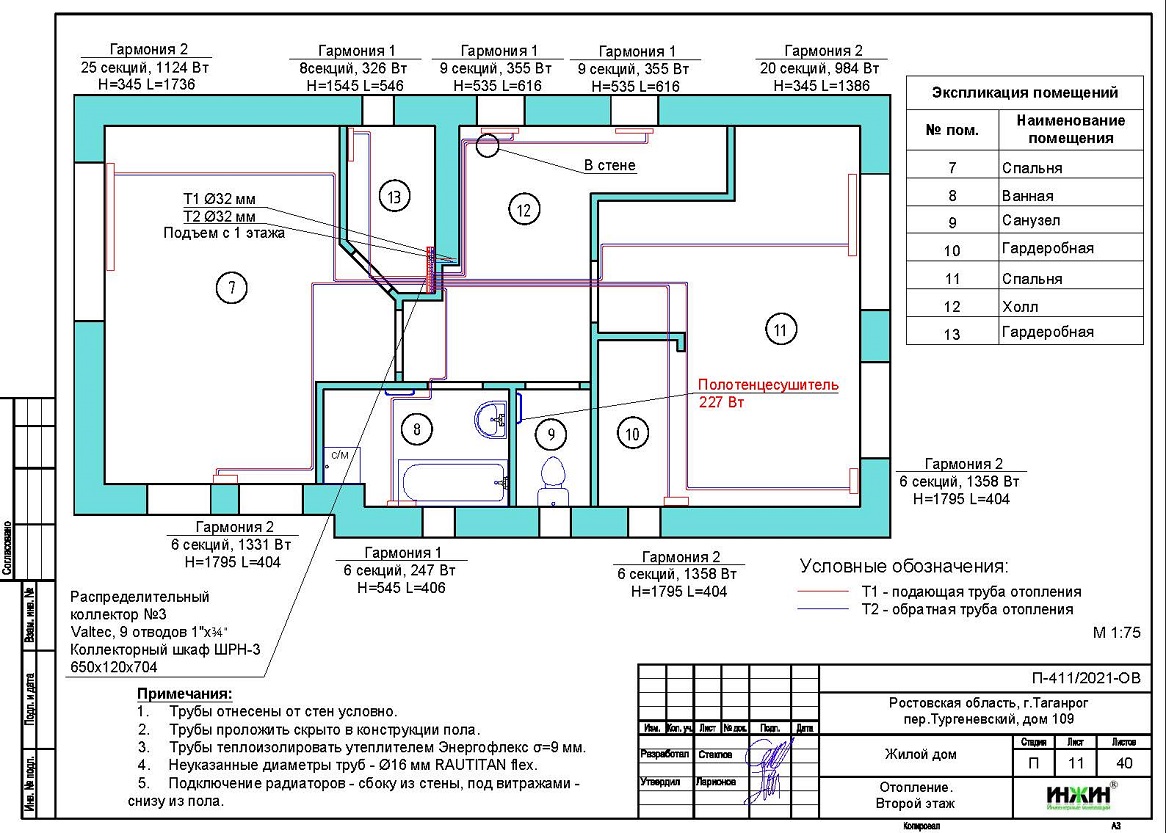
3. Комплект поэтажных чертежей радиаторного отопления дома в Таганроге.
4. Комплект чертежей теплого пола на площади 170 м.кв.
5. Комплект чертежей водоснабжения частного дома из керамических блоков Paromax.
6. Типовые схемы системы отопления и водоснабжения дома 200 м.кв.
7. Теплотехнический расчет отопления дома из керамических блоков Paromax.
8. Спецификация материалов и оборудования по котельной, отоплению и водоснабжению дома в Таганроге.
Объем проекта отопления, канализации и водоснабжения дома: 40 листов.
Описание проекта отопления, котельной и водоснабжения частного дома 200 м.кв. в Таганроге.
Котельная частного дома в Таганроге(проект котельной бесплатно).
o Размещена в отдельном помещении дома 200 м.кв. (цокольный этаж);
o Теплогенераторы - два настенных газовых конденсационных котла Vaillant ecoTEC plus, мощностью 24 кВт каждый;
o Контуры теплоснабжения котельной – радиаторное отопление дома, теплый пол и горячее водоснабжение, для которого предусмотрен накопительный бойлер Vaillant, объемом 200 литров (подключение к коллектору котельной);
o Расширительные баки отопления и бойлера Flamco, объемом 25 и 18 литров, соответственно;
o Циркуляционные насосы отопления и бойлера Grundfos, использованы энергоэффективные насосы UPM3 Hybrid (в составе насосных групп Meibes), аналог насосов серии Alpha;
o Дымоудаление принудительное, дымоход коаксиальный, комплект Vaillant для прохода через кровлю, диаметр 80/125 мм;
o Распределительный коллектор - настенный Meibes, с насосными группами и гидравлическим разделителем;
o Автоматика котельной – контроллер отопления ZONT-Climatic 1.2 со встроенным GSM-модулем.
Отопление дома в Таганроге (проект отопления дома).
o Выполнен теплотехнический расчет отопления дома из керамических блоков Paromax (утеплитель кровли - минеральная вата Rockwool, 300мм) с учетом теплопотерь через ограждающие конструкции при наружной температуре -22°С для Таганрога (по СП 131.13330.2012), расчетный расход тепла на отопление дома составил 20,6 кВт, удельные теплопотери 102,8 Вт/м.кв.;
o Подобраны приборы для отопления дома: дизайн-радиаторы Гармония (КЗТО) с нижним подключением;
o Схема радиаторного отопления дома двухтрубная, коллекторно-лучевая, с принудительной циркуляцией теплоносителя и температурным графиком 80/60°С;
o Трубы отопления из сшитого полиэтилена Rehau;
o Теплоизоляция трубопроводов отопления Энергофлекс, толщиной 9мм;
o Теплоноситель в системе отоплениядома – подготовленная вода.
Водяной теплый пол дома в Таганроге (проект теплого пола).
o Водяной теплый пол в доме предусмотрен на площади 170 м.кв., 23 контура;
o Предусмотрена насосная группа в котельной;
o Трубопроводы теплого пола – сшитый полиэтилен Rehau;
o Регулирование температуры теплого пола - общее, автоматикой котельной, а также зональное - по помещениям (электронные комнатные термостаты и сервоприводы Rehau).
Внутренний водопровод дома в Таганроге (проект водоснабжения).
o Схема внутреннего водоснабжения дома – тупиковая тройниковая с рециркуляцией горячей воды через водяные полотенцесушители, выполнен расчет 26-и точек водоснабжения и полотенцесушителей;
o Трубопроводы системы водоснабжения – из сшитого полиэтилена Rehau;
o Теплоизоляция трубопроводов Энергофлекс Супер, толщиной 9мм;
o Летний водопровод проектом не предусмотрен.























