Выполненные проекты
Проект электрики дома в Таганроге
Объект: частный дом из керамических блоков Paromax, площадью 200 м.кв., расположенный в г.Таганрог Ростовской области
Цена (стоимость) проекта электрики (электропроводки): 23 940 руб. со скидкой 10%, проект слаботочных кабельных линий - бесплатно.
Проект электрики выполнен: 13.09.2021
Состав проекта электрики дома в Таганроге:
1. Пояснительная записка. Общие данные по электроснабжению и освещению частного дома в Таганроге.
2. Однолинейные схемы вводного распределительного устройства и электрического распределительного щита дома 200 м.кв.
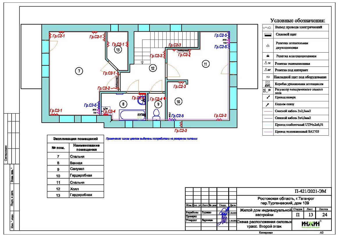
3. Чертежи электропроводки дома в Таганроге.
4. Чертежи групповых осветительных сетей дома в Таганроге.
5. Спецификация материалов и оборудования по электрике и электропроводке дома в Таганроге.
Объем проекта электрики дома 200 м.кв.: 24 листа.
Проект электрики дома площадью 200 м.кв. в Таганроге- подробное описание.
Расчетные показатели по электроснабжению и освещению дома в Таганроге.
o Расчетная электрическая мощность дома составила 13,84 кВт, с учетом коэффициента спроса 0,8, принятого согласно СП 256.1325800.2016;
o При расчете учтено силовое оборудование: кондиционеры, газовые котлы, приводы ворот.
Распределительные электрические щиты дома площадью 200 м.кв.
o Проектом предусмотрен распределительный электрический щит, размещенный техническом помещении цокольного этажа;
o Автоматические выключатели, дифференциальные автоматы, рубильники и УЗО в щите – Schneider Electric, в количестве 36 шт. размещены в пристраиваемом корпусе.
Силовая кабельная сеть (электропроводка) дома в Таганроге.
o Электропроводка дома предусмотрена с использованием кабелей ВВГ нг -LS с медными жилами в ПВХ-оболочке (не поддерживает горение);
o Общая протяженность линий электроснабжения и освещения – 1 450 метров, вводные кабельные линии - бронированные кабели (ВБбШв) 20 метров;
o Электропроводка предусмотрена скрытым способом, в гофрированной ПВХ-трубе и металлорукаве в виниловой оболочке;
o Запроектировано 193 точки подключения розеток и выключателей освещения в доме;
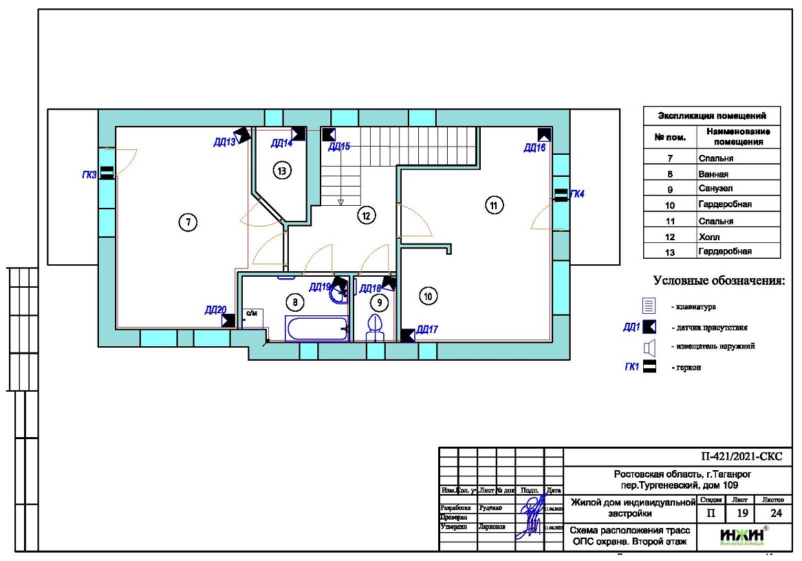
o Предусмотрены слаботочные линии локальной вычислительной сети, охранно-пожарной сигнализации и телевидения, общая протяженность - 1 115 метров.
Предусмотрено резервное электропитание - однофазный инвертор CyberPower мощностью 5 кВт.























