Выполненные проекты
Отопление дома 170 м.кв. в ДНТ "Берег-2", проект
Объект: двухэтажный загородный дом из из бруса, площадью 170 м.кв., расположенный в ДНТ "Берег-2" Серпуховского района Московской области
Цена проекта отопления и теплого пола: 16 830 руб. со скидкой 10%, проект котельной - бесплатно.
Проект котельной и отопления выполнен: 24.09.2021
Состав проекта котельной и отопления дома в ДНТ "Берег-2":
1. Пояснительная записка проекта, общие данные по системе отопления дома 170 м.кв. в ДНТ "Берег-2".
2. Тепломеханическая схема котельной с размещением оборудования в отдельном помещении дома из бруса.
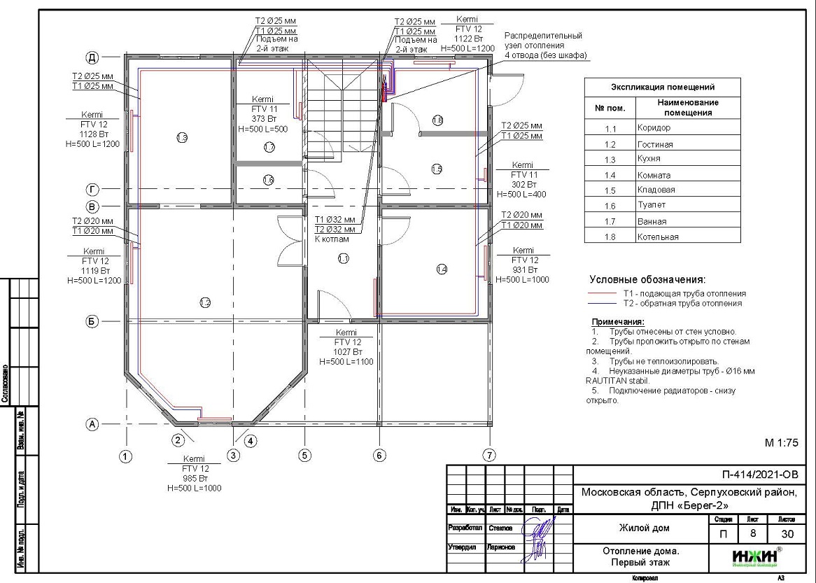
3. Комплект поэтажных чертежей радиаторного отопления дома в ДНТ "Берег-2".
4. Типовые схемы системы отопления дома 170 м.кв.
5. Теплотехнический расчет отопления дома из бруса.
6. Спецификация материалов и оборудования по котельной и отоплению дома в ДНТ "Берег-2".
Объем проекта отопления и водоснабжения дома: 30 листов.
Описание проекта отопления и котельной частного дома 170 м.кв. в ДНТ "Берег-2".
Котельная частного дома в ДНТ "Берег-2" (проект котельной бесплатно).
o Размещена в отдельном помещении дома 170 м.кв.;
o Теплогенераторы - настенный электрический котел Proherm Скат мощностью 12 кВт (резервный), настенный газовый котел Proherm Пантера мощностью 25 кВт (основной);
o Контуры теплоснабжения котельной – радиаторное отопление дома и горячее водоснабжение, для которого предусмотрен накопительный бойлер Drazice, объемом 160 литров (подключение к газовому котлу);
o Расширительные баки отопления и бойлера Flamco, объемом 18 и 12 литров;
o Циркуляционный насос отопления и бойлера встроен в газовый котел;
o Распределительный коллектор в котельной не предусмотрен;
o Автоматика котельной – встроена в котел с дополнительным GSM-модулем My Heat Smart.
Отопление дома в ДНТ "Берег-2" (проект отопления дома).
o Выполнен теплотехнический расчет отопления дома из бруса (утеплитель стен, пола и кровли - минвата, 100 и 200мм, соответственно) с учетом теплопотерь через ограждающие конструкции при наружной температуре -28°С для Московской области (по СП 131.13330.2012), расчетный расход тепла на отопление дома составил 12,94 кВт, удельные теплопотери 75,6 Вт/м.кв.;
o Подобраны приборы для отопления дома: биметаллические секционные радиаторы Rifar SUPReMO с нижним подключением;
o Схема радиаторного отопления дома двухтрубная, с принудительной циркуляцией теплоносителя и температурным графиком 75/55°С;
o Трубы отопления из сшитого полиэтилена Rehau Stabil;
o Теплоизоляция трубопроводов отопления не предусмотрена;
o Теплоноситель в системе радиаторного отопления дома – подготовленная вода, предусмотрены средства защиты от образования накипи в системе отопления.
Водяной теплый пол в доме не предусмотрен.


















