Выполненные проекты
Электрика дома в дер. Давыдово, проект
Объект: дом из полистиролбетона, площадью 318 м.кв., расположенный в дер. Давыдово Зарайского района Московской области
Цена (стоимость) проекта электрики (электропроводки): 38 065 руб. со скидкой 10%, проект слаботочных кабельных линий - бесплатно.
Проект электрики выполнен: 12.10.2021
Состав проекта электрики дома в дер. Давыдово:
1. Пояснительная записка. Общие данные по электроснабжению и освещению частного дома в дер. Давыдово.
2. Однолинейные схемы вводного распределительного устройства и электрического распределительного щита дома 318 м.кв.
3. Чертежи электропроводки дома в дер. Давыдово.
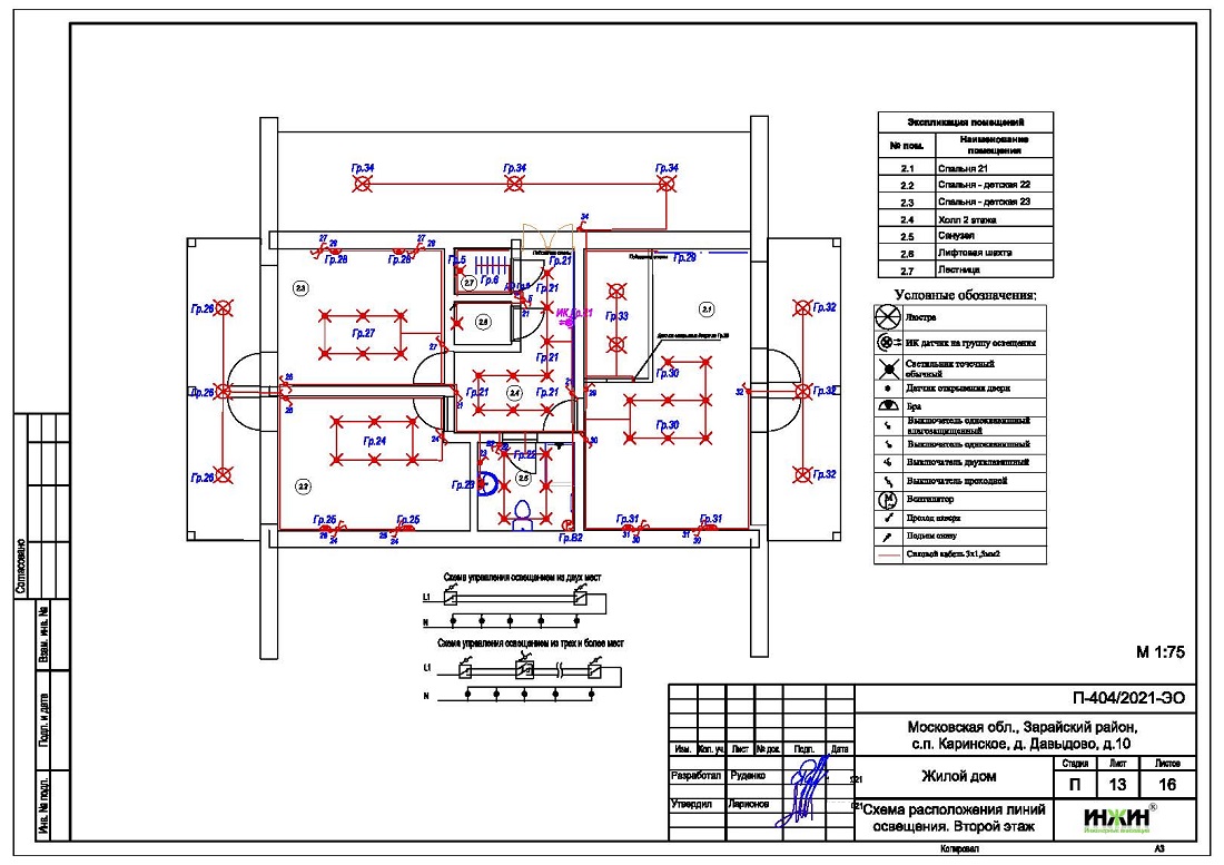
4. Чертежи групповых осветительных сетей дома в дер. Давыдово.
5. Спецификация материалов и оборудования по электрике и электропроводке дома в дер. Давыдово.
Объем проекта электрики дома 318 м.кв.: 16 листов.
Проект электрики дома площадью 318 м.кв. в дер. Давыдово- подробное описание.
Расчетные показатели по электроснабжению и освещению дома в дер. Давыдово.
o Расчетная электрическая мощность дома составила 28,11 кВт, с учетом коэффициента спроса 0,48, принятого согласно СП 256.1325800.2016;
o При расчете учтено силовое оборудование: кондиционеры, газовый и электрический котлы, сауна, вентиляционные установки, газгольдер.
Распределительные электрические щиты дома площадью 318 м.кв.
o Проектом предусмотрен распределительный электрический щит, размещенный в прихожей;
o Автоматические выключатели, дифференциальные автоматы, рубильники и УЗО в щите – ABB, в количестве 42 шт. размещены во встраиваемом корпусе.
Силовая кабельная сеть (электропроводка) дома в дер. Давыдово.
o Электропроводка дома предусмотрена с использованием кабелей ВВГ нг -LS с медными жилами в ПВХ-оболочке (не поддерживает горение);
o Общая протяженность линий электроснабжения и освещения – 1557 метров, вводные кабельные линии - бронированные кабели (ВБбШв) 28 метров;
o Электропроводка предусмотрена скрытым способом, в гофрированной ПВХ-трубе и металлорукаве в виниловой оболочке;
o Запроектировано 176 точек подключения розеток и выключателей освещения в доме;
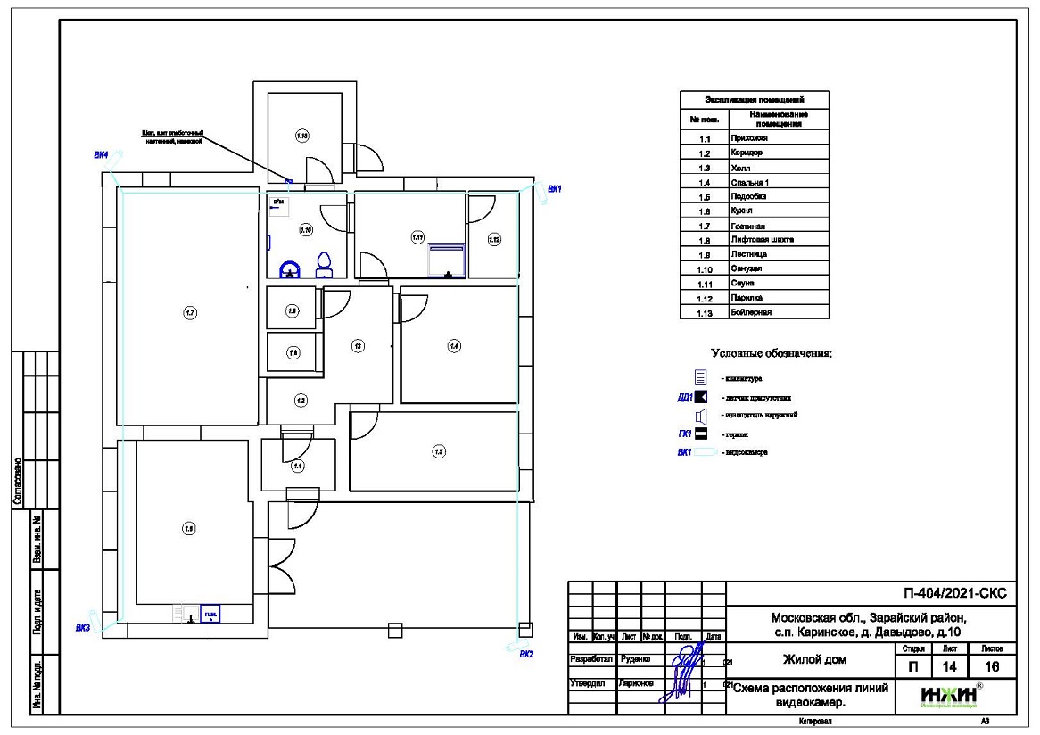
o Предусмотрены слаботочные линии локальной вычислительной сети и телевидения, общая протяженность - 350 метров.
Предусмотрено резервное электропитание - однофазный инвертор CyberPower мощностью 5 кВт.

Заказать проект электрики дома дистанционно.
Для этого загородного дома в дер. Давыдово выполнен проект отопления, канализации и водоснабжения.
По этому проекту выполнен монтаж электрики дома в дер. Давыдово.



















