Выполненные проекты
Проект электрики дома площадью 380 м.кв. в Дедовске
Объект: частный дом из кирпича, площадью 380 м.кв., расположенный в КП "Серебряная Роща", г. Дедовск Московской области
Цена (стоимость) проекта электрики (электропроводки): 46 486 руб. со скидкой 10%, проект слаботочных кабельных линий - бесплатно.
Проект электрики выполнен: 03.11.2021
Состав проекта электрики дома в КП "Серебряная Роща":
1. Пояснительная записка. Общие данные по электроснабжению и освещению частного дома в КП "Серебряная Роща".
2. Однолинейные схемы вводного распределительного устройства и электрического распределительного щита дома 380 м.кв.
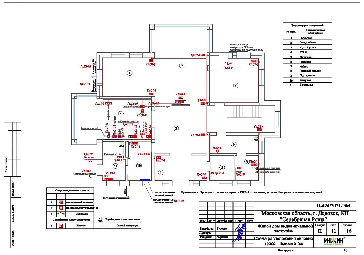
3. Чертежи электропроводки дома в КП "Серебряная Роща".
4. Чертежи групповых осветительных сетей дома в КП "Серебряная Роща".
5. Спецификация материалов и оборудования по электрике и электропроводке дома в КП "Серебряная Роща".
Объем проекта электрики дома 380 м.кв.: 16 листов.
Проект электрики дома площадью 380 м.кв. в КП "Серебряная Роща"- подробное описание.
Расчетные показатели по электроснабжению и освещению дома в КП "Серебряная Роща".
o Расчетная электрическая мощность дома составила 23,32 кВт, с учетом коэффициента спроса 0,55, принятого согласно СП 256.1325800.2016;
o При расчете учтено силовое оборудование: кондиционеры, газовый котел, электроплита, водоочистка, скважинный насос.
Распределительные электрические щиты дома площадью 380 м.кв.
o Проектом предусмотрено два распределительных электрических щита, размещенные в кладовой 1 этажа и в гардеробной 2-го этажа;
o Автоматические выключатели, дифференциальные автоматы, рубильники и УЗО в щите – ABB, в количестве 40 шт. размещены в пристраиваемых корпусах.
Силовая кабельная сеть (электропроводка) дома в КП "Серебряная Роща".
o Электропроводка дома предусмотрена с использованием кабелей ВВГ нг -LS с медными жилами в ПВХ-оболочке (не поддерживает горение);
o Общая протяженность линий электроснабжения и освещения – 1150 метров, вводные кабельные линии - бронированные кабели (ВБбШв) 50 метров;
o Электропроводка предусмотрена скрытым способом, в гофрированной ПВХ-трубе;
o Запроектировано 183 точки подключения розеток и выключателей освещения в доме;
o Предусмотрены слаботочные линии локальной вычислительной сети протяженностью 150 метров.
Предусмотрено стабилизированное электропитание - трехфазный стабилизатор напряжения СДТ-25/3 (РусЭлт).



















