Выполненные проекты
Проект отопления дома 306 м.кв. в Раменском районе
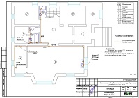
Объект: частный дом из пеноблоков, площадью 306 м.кв., расположенный в ДП Кратово Раменского района Московской области.
Вариант отопления: «Комфортный»
Цена проекта отопления, канализации и водоснабжения: 72 702 руб. со скидкой 10%, проект котельной - бесплатно.
Проект котельной, отопления, водоснабжения и канализации выполнен: 12.11.2021
Состав проекта котельной, отопления, канализации и водоснабжения дома в ДП Кратово:
1. Пояснительная записка проекта, общие данные по системам отопления, канализации и водоснабжения дома 306 м.кв. в ДП Кратово.
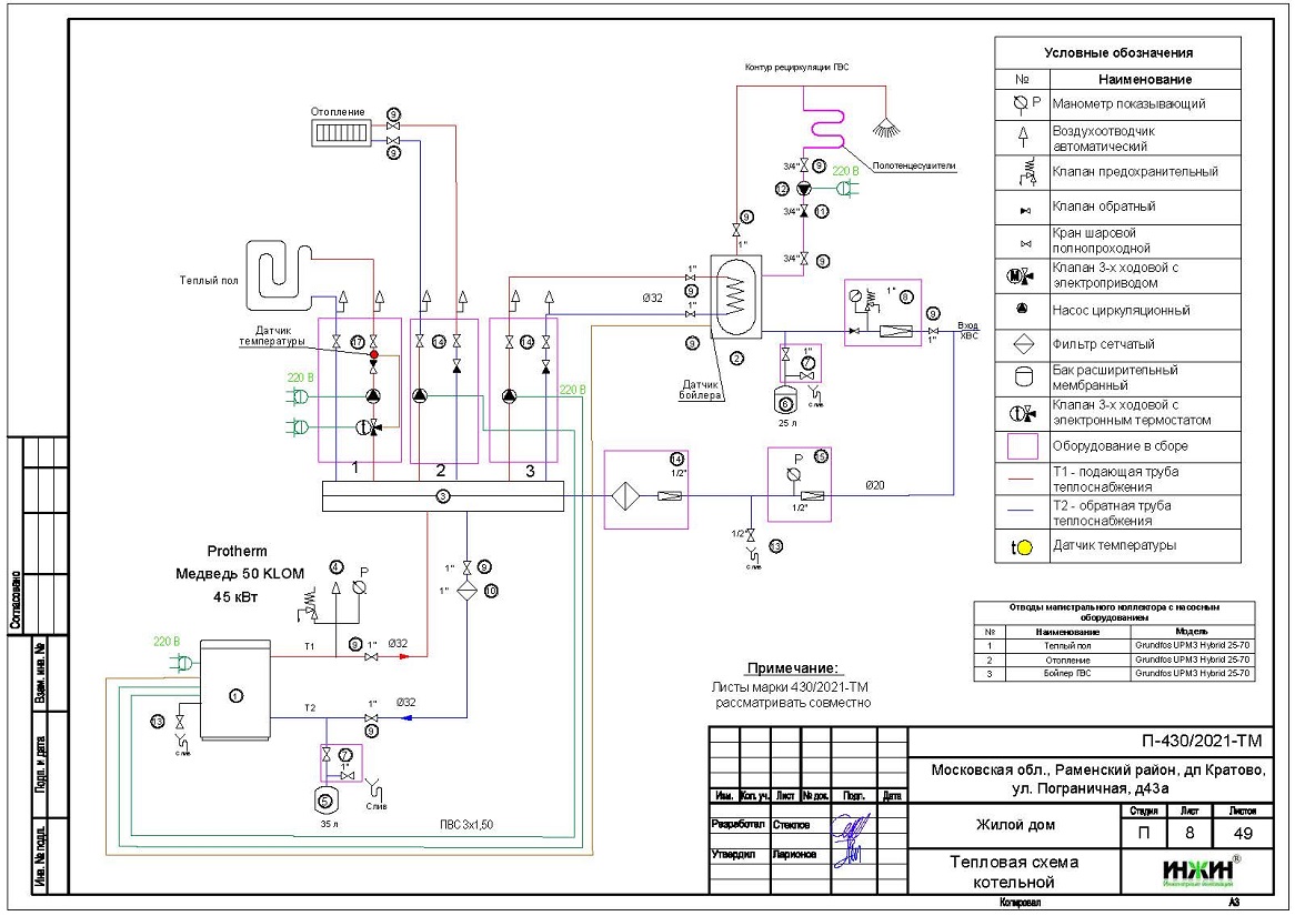
2. Тепломеханическая схема котельной с размещением оборудования в отдельном помещении дома из пеноблоков.
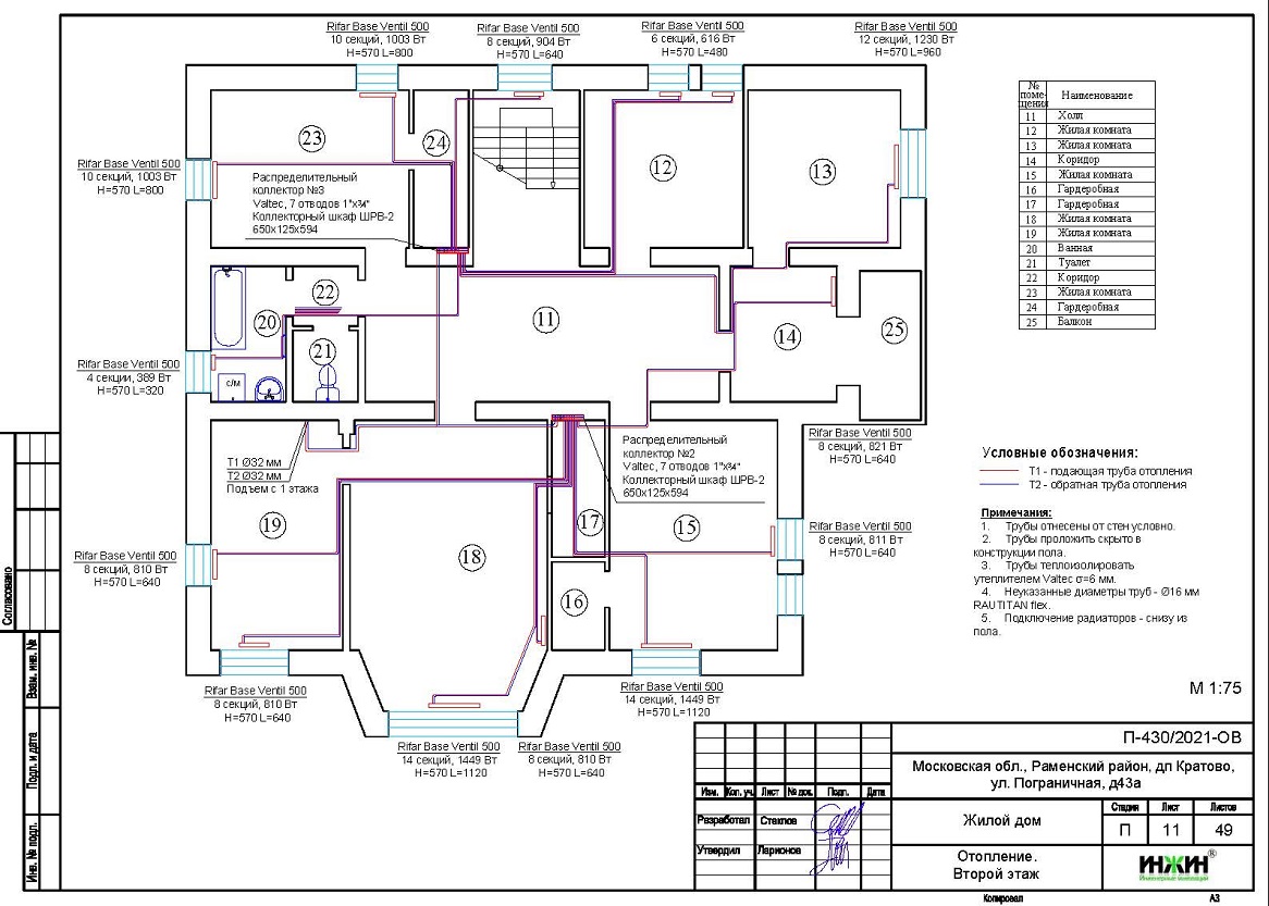
3. Комплект поэтажных чертежей радиаторного отопления дома в ДП Кратово.
4. Комплект чертежей теплого пола на площади 130 м.кв.
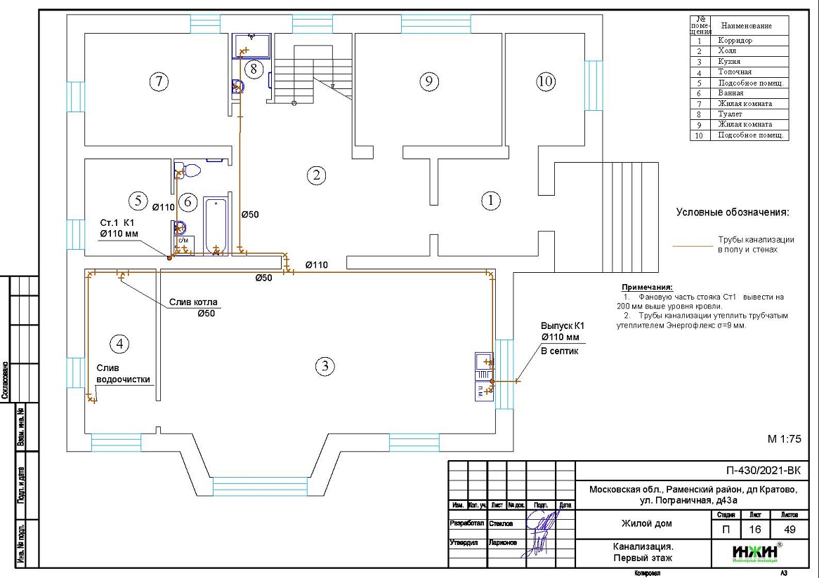
5. Комплект чертежей водоснабжения и канализации частного дома из пеноблоков в ДП Кратово.
6. Типовые схемы системы отопления канализации и водоснабжения дома 306 м.кв.
7. Теплотехнический расчет отопления дома из пеноблоков.
8. Спецификация материалов и оборудования по котельной, отоплению, канализации и водоснабжению дома в ДП Кратово.
Объем проекта отопления, канализации и водоснабжения дома в ДП Кратово: 49 листов.
Описание проекта отопления, котельной, канализации и водоснабжения частного дома 306 м.кв. в ДП Кратово.
Котельная частного дома в ДП Кратово(проект котельной бесплатно).
o Размещена в отдельном помещении дома 306 м.кв.;
o Теплогенератор - напольный газовый котел Protherm Медведь 40KLOM, мощностью 45 кВт;
o Контуры теплоснабжения котельной – радиаторное отопление дома, теплый пол и горячее водоснабжение, для которого предусмотрен накопительный бойлер Protherm FE 200/6 BM, объемом 300 литров (подключение к коллектору);
o Расширительные баки отопления и бойлера Flamco, объемом 35 и 25 литров, соответственно;
o Дымоудаление естественное, дымоход выполнен на объекте;
o Распределительный коллектор Meibes, с насосно-смесительными группами;
o Автоматика котельной – встроена в котел.
Отопление дома в ДП Кратово (проект отопления дома).
o Выполнен теплотехнический расчет отопления дома из пеноблоков (утеплитель кровли - стекловата, 150мм) с учетом теплопотерь через ограждающие конструкции при наружной температуре -28°С для Московской области (по СП 131.13330.2012), расчетный расход тепла на отопление дома составил 24,89 кВт, удельные теплопотери 81,5 Вт/м.кв.;
o Подобраны приборы для отопления дома: биметаллические секционные радиаторы RifarBase Ventilс нижним подключением, в вентильном исполнении;
o Схема радиаторного отопления дома двухтрубная, коллекторно-лучевая, с принудительной циркуляцией теплоносителя и температурным графиком 80/60°С;
o Трубы отопления из сшитого полиэтилена Rehau;
o Теплоизоляция трубопроводов отопления Valtec, толщиной 6мм;
o Теплоноситель в системе радиаторного отопления дома – подготовленная вода, предусмотрены средства защиты от образования накипи.
Водяной теплый пол дома в ДП Кратово (проект теплого пола).
o Водяной теплый пол в доме предусмотрен на площади 130 м.кв., 16 петель, коллекторы теплого пола Valtec на 7 и 9 отводов;
o Предусмотрен насосно-смесительный узел для теплоснабжения водяного теплого пола в котельной;
o Трубопроводы теплого пола – сшитый полиэтилен Rehau;
o Регулирование температуры теплого пола - общее, термостатом на смесительном узле котельной.
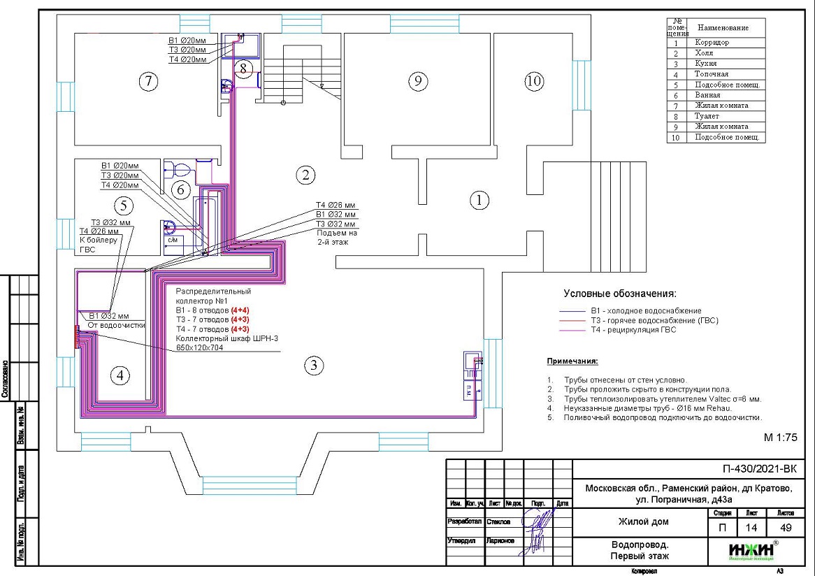
Внутренний водопровод дома в ДП Кратово (проект водоснабжения).
o Схема внутреннего водоснабжения дома – коллекторно-лучевая с рециркуляцией горячей воды через проходные водорозетки, выполнен расчет 25-и точек водоснабжения и полотенцесушителей;
o Трубопроводы системы водоснабжения – из сшитого полиэтилена Rehau;
o Теплоизоляция трубопроводов Valtec, толщиной 6мм;
o Для летнего водопровода предусмотрен незамерзающий кран Meibes SEPP-Eis.
Внутренняя канализация (проект канализации) дома в ДП Кратово.
o Безнапорная, отвод стоков от санитарно-технических приборов предусмотрен в септик;
o Произведен расчет 14-и точек бытовой канализации;
o Канализационные трубы Синикон, раструбные, из полипропилена.
Заказать в нашей компании проект отопления, водоснабжения и канализации частного дома дистанционно со скидкой.
Для этого дома в ДП Кратововыполнен проект электрики (электроснабжения и освещения).






















