Выполненные проекты
Проект электрики дома площадью 150 м.кв.
Объект: двухэтажный дом из полистиролбетона, площадью 150 м.кв., расположенный в дер. Рождествено Щелковского района Московской области
Цена (стоимость) проекта электрики (электропроводки): 17 955 руб. со скидкой 10%, проект слаботочных кабельных линий - бесплатно.
Проект электрики выполнен: 29.06.2022
Состав проекта электрики дома в дер. Рождествено:
1. Пояснительная записка. Общие данные по электроснабжению и освещению частного дома в дер. Рождествено.
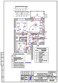
2. Однолинейные схемы вводного распределительного устройства и электрического распределительного щита дома 150 м.кв.
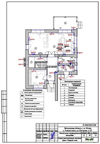
3. Чертежи электропроводки дома в дер. Рождествено.
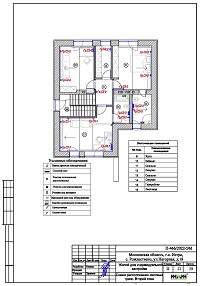
4. Чертежи групповых осветительных сетей дома в дер. Рождествено.
5. Спецификация материалов и оборудования по электрике и электропроводке дома в дер. Рождествено.
Объем проекта электрики дома 150 м.кв.: 15 листов.
Проект электрики дома площадью 150 м.кв. в дер. Рождествено- подробное описание.
Расчетные показатели по электроснабжению и освещению дома в дер. Рождествено.
o Расчетная электрическая мощность дома составила 10,11 кВт, с учетом коэффициента спроса 0,5, принятого согласно СП 256.1325800.2016;
o При расчете учтено силовое оборудование: кондиционеры, газовый котел, водоочистка, скважинный насос.
Распределительные электрические щиты дома площадью 150 м.кв.
o Проектом предусмотрен распределительный электрический щит, размещенный в прихожей;
o Автоматические выключатели, дифференциальные автоматы, рубильники и УЗО в щите – Schneider Electric, в количестве 21 шт. размещены в пристраиваемом корпусе.
Силовая кабельная сеть (электропроводка) дома в дер. Рождествено.
o Электропроводка дома предусмотрена с использованием кабелей NYM с медными жилами в ПВХ-оболочке (не поддерживает горение);
o Общая протяженность линий электроснабжения и освещения – 970 метров, вводные кабельные линии - бронированные кабели (ВБбШв) 20 метров;
o Электропроводка предусмотрена скрытым способом, в гофрированной ПВХ-трубе;
o Запроектировано 147 точек подключения розеток и выключателей освещения в доме;
o Предусмотрены слаботочные линии локальной вычислительной сети протяженностью 90 метров.



















