Выполненные проекты
Проект отопления дома 547 м.кв. в Звенигороде
Объект: частный дом (с гаражом) из блоков Porotherm, общей площадью 547 м.кв., расположенный в г. Звенигород Московской области
Вариант отопления: «Комфортный»
Цена проекта отопления, канализации и водоснабжения: 120 429 руб. со скидкой 10%, проект котельной - бесплатно.
Проект котельной, отопления, водоснабжения и канализации выполнен: 18.07.2022
Состав проекта котельной, отопления, канализации и водоснабжения дома в Звенигороде:
1. Пояснительная записка проекта, общие данные по системам отопления, канализации и водоснабжения дома 547 м.кв. в г. Звенигород.
2. Тепломеханическая схема котельной с размещением оборудования в отдельном помещении дома из блоков Porotherm.
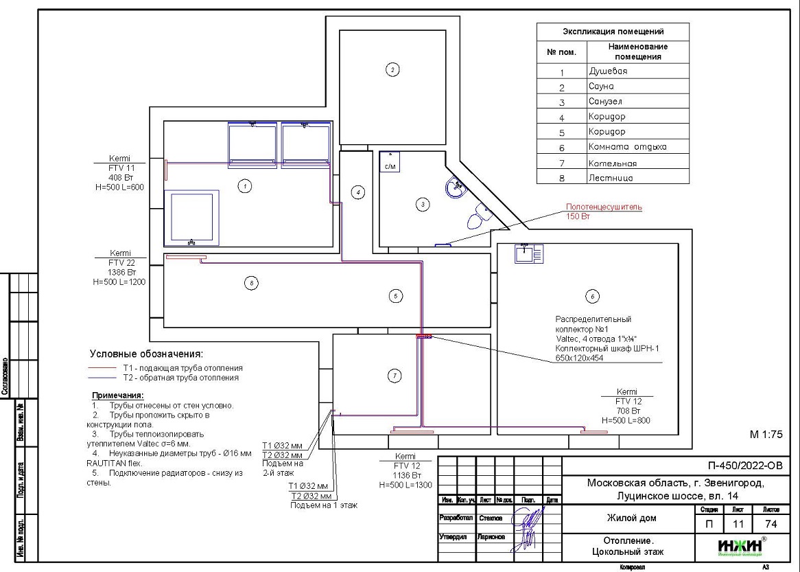
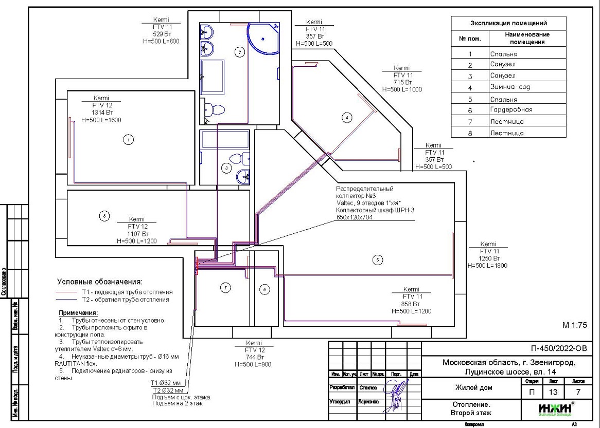
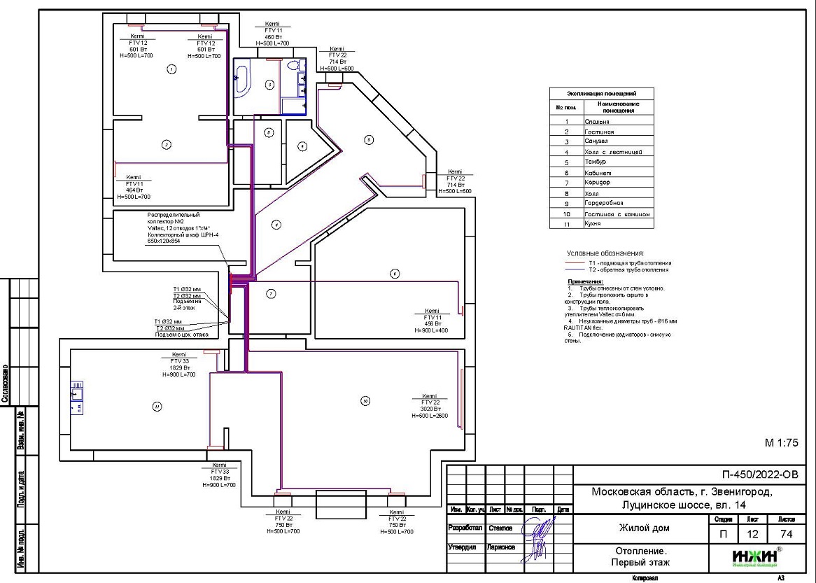
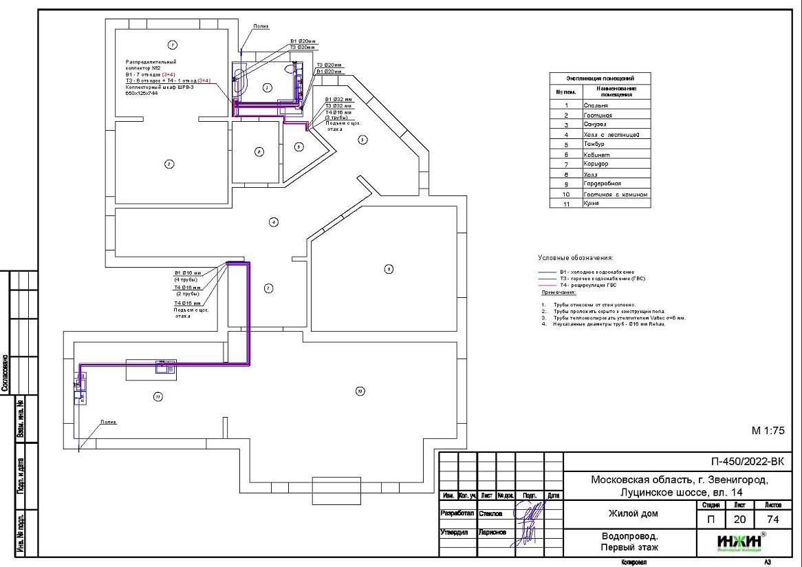
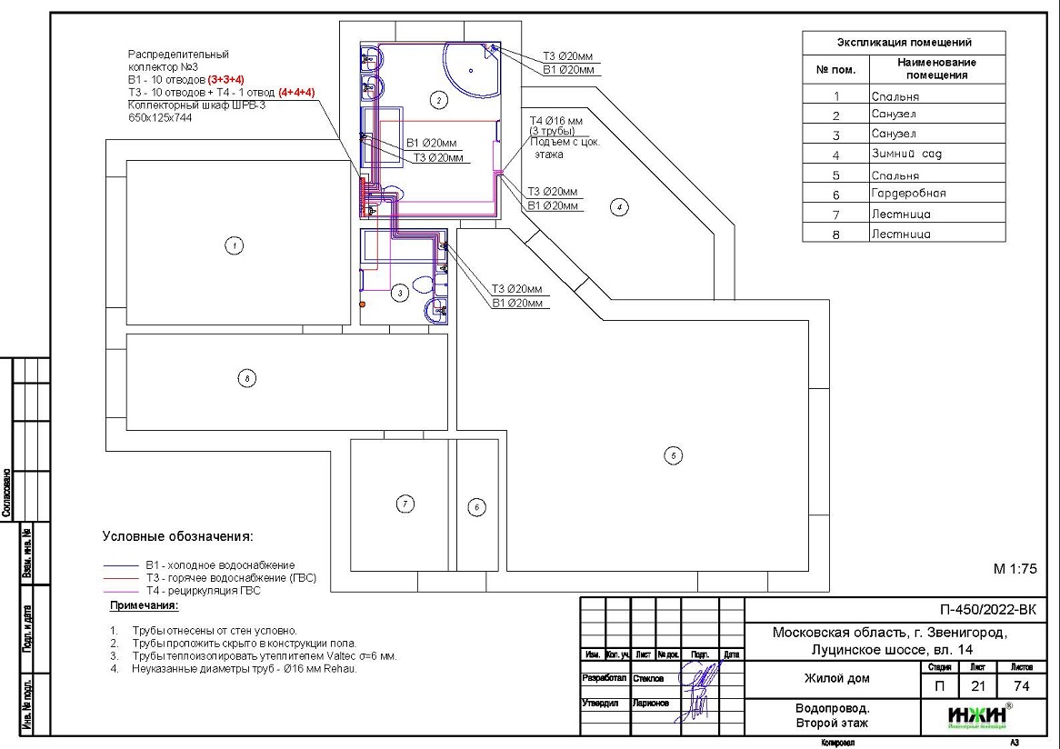
3. Комплект поэтажных чертежей радиаторного отопления дома в г. Звенигород.
4. Комплект чертежей теплого пола на площади 100 м.кв.
5. Комплект чертежей водоснабжения и канализации частного дома из блоков Porotherm в г. Звенигород.
6. Типовые схемы системы отопления канализации и водоснабжения дома 547 м.кв.
7. Теплотехнический расчет отопления дома из блоков Porotherm.
8. Спецификация материалов и оборудования по котельной, отоплению, канализации и водоснабжению дома в г. Звенигород.
Объем проекта отопления, канализации и водоснабжения дома в г. Звенигород: 74 листа.
Описание проекта отопления, котельной, канализации и водоснабжения частного дома 547 м.кв. в Звенигороде.
Котельная частного дома в г. Звенигород(проект котельной бесплатно).
o Размещена в отдельном помещении дома 547 м.кв.;
o Теплогенератор - напольный газовый котел Vaillant, мощностью 48,9 кВт;
o Контуры теплоснабжения котельной – радиаторное отопление дома (2 контура), теплый пол (2 контура), отопление гаража и горячее водоснабжение, для которого предусмотрен накопительный бойлер Vaillant, объемом 300 литров (подключение к коллектору);
o Расширительные баки отопления и бойлера Flamco, объемом 80 и 25 литров, соответственно;
o Дымоудаление естественное, дымоход выполнен на объекте;
o Распределительный коллектор Meibes, с насосно-смесительными группами;
o Автоматика котельной – контроллер ZONT Climatic 1.3 со встроенным GSM-модулем и дополнительным блоком расширения EX-77.
Отопление дома в г. Звенигород (проект отопления дома).
o Выполнен теплотехнический расчет отопления дома из блоков Porotherm (утеплитель кровли и стен базальтовая вата, 300мм и 100мм, соответственно) с учетом теплопотерь через ограждающие конструкции при наружной температуре -28°С для Московской области (по СП 131.13330.2012), расчетный расход тепла на отопление дома составил 41,4 кВт, удельные теплопотери 76,28 Вт/м.кв., на отопление гаража - 4,7 кВт, удельные теплопотери 133,3 Вт/м.кв.;
o Подобраны приборы для отопления дома и гаража: стальные панельные радиаторы Kermi с нижним подключением, в вентильном исполнении;
o Схема радиаторного отопления дома двухтрубная, коллекторно-лучевая, с принудительной циркуляцией теплоносителя и температурным графиком 80/60°С;
o Трубы отопления из сшитого полиэтилена Rehau;
o Теплоизоляция трубопроводов отопления Valtec, толщиной 6мм;
o Теплоноситель в системе радиаторного отопления дома – подготовленная вода, предусмотрены средства защиты от образования накипи.
Водяной теплый пол дома в г. Звенигород (проект теплого пола).
o Водяной теплый пол в доме предусмотрен на площади 100 м.кв., 21 петля, коллекторы теплого пола Valtec на 3,8 и 10 отводов;
o Предусмотрен насосно-смесительный узел для теплоснабжения водяного теплого пола в котельной;
o Трубопроводы теплого пола – сшитый полиэтилен Rehau RAUTHERM S, основание - плиты пенополистирольные с покрытием и фиксирующими бобышками EasyFix L (Формат);
o Регулирование температуры теплого пола - общее, контуром котельной.
Внутренний водопровод дома в г. Звенигород (проект водоснабжения).
o Схема внутреннего водоснабжения дома – коллекторно-лучевая с рециркуляцией горячей воды через полотенцесушители, выполнен расчет 58-и точек водоснабжения и полотенцесушителей;
o Трубопроводы системы водоснабжения – из сшитого полиэтилена Rehau;
o Теплоизоляция трубопроводов Valtec, толщиной 6мм.
Внутренняя канализация (проект канализации) дома в г. Звенигород.
o Безнапорная, отвод стоков от санитарно-технических приборов предусмотрен в септик;
o Произведен расчет 30-и точек бытовой канализации, в том числе 7 трапов с "сухим" затвором;
o Канализационные трубы Синикон, раструбные, из полипропилена, утепленные трубчатым утеплителем Энергофлекс Супер, 9мм.




























