Выполненные проекты
Электроснабжение дома площадью 220 м.кв., проект
Объект: двухэтажный дом из газобетона, площадью 220 м.кв., расположенный в КП "Васильевское" Щелковского района Московской области
Цена (стоимость) проекта электрики (электропроводки): 26 334 руб. со скидкой 10%, проект слаботочных кабельных линий - бесплатно.
Проект электрики выполнен: 17.11.2022
Состав проекта электрики дома в КП "Васильевское":
1. Пояснительная записка. Общие данные по электроснабжению и освещению частного дома в КП "Васильевское".
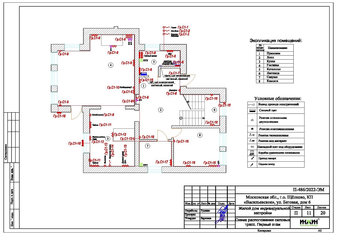
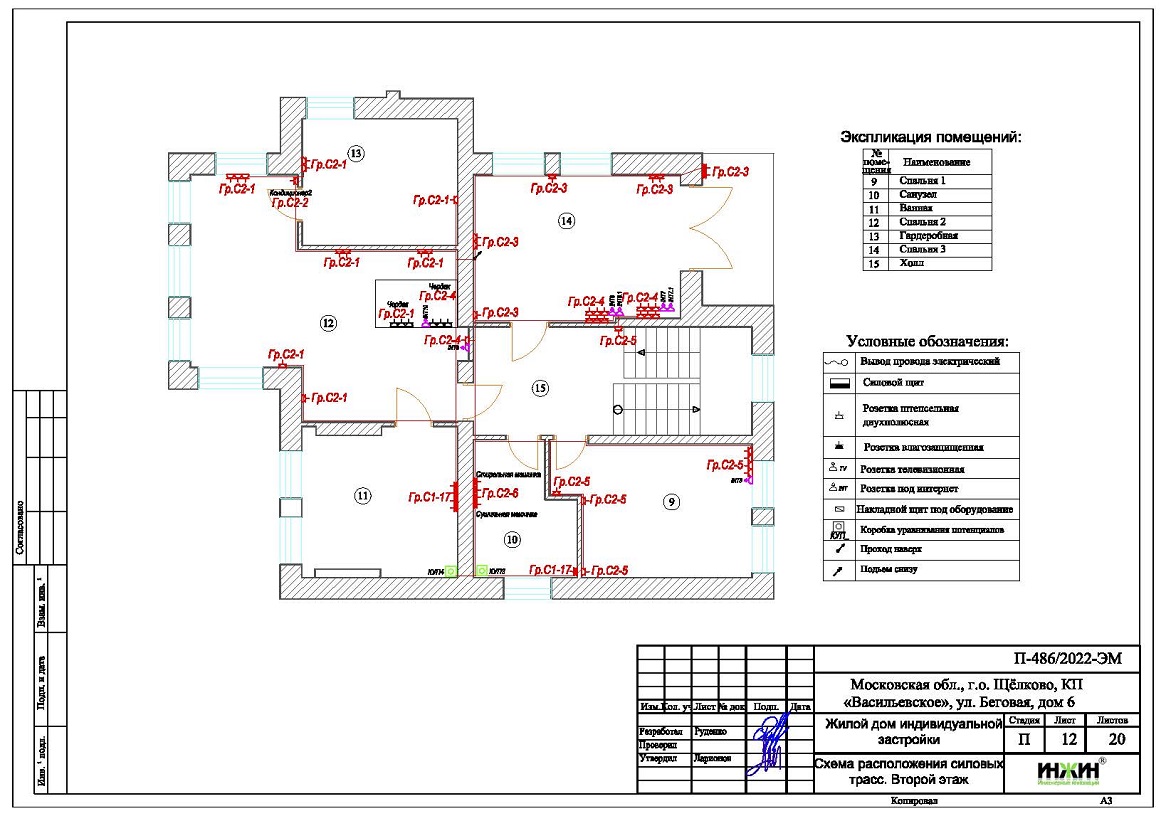
2. Однолинейные схемы вводного распределительного устройства и электрического распределительного щита дома 220 м.кв.
3. Чертежи электропроводки дома в КП "Васильевское".
4. Чертежи групповых осветительных сетей дома в КП "Васильевское".
5. Спецификация материалов и оборудования по электрике и электропроводке дома в КП "Васильевское".
Объем проекта электрики дома 220 м.кв.: 20 листов.
Проект электрики дома площадью 220 м.кв. в КП "Васильевское"- подробное описание.
Расчетные показатели по электроснабжению и освещению дома в КП "Васильевское".
o Расчетная электрическая мощность дома составила 15,42 кВт, с учетом коэффициента спроса 0,5, принятого согласно СП 256.1325800.2016;
o При расчете учтено силовое оборудование: кондиционеры, газовый котел, приводы карнизов, водоочистка.
Распределительные электрические щиты дома площадью 220 м.кв.
o Проектом предусмотрен распределительный электрический щит, размещенный в помещении котельной;
o Автоматические выключатели, дифференциальные автоматы, рубильники и УЗО в щите – ABB, в количестве 37 шт. размещены во встраиваемом корпусе.
Силовая кабельная сеть (электропроводка) дома в КП "Васильевское".
o Электропроводка дома предусмотрена с использованием кабелей ВВГнг с медными жилами в ПВХ-оболочке (не поддерживает горение);
o Общая протяженность линий электроснабжения и освещения – 1190 метров, вводные кабельные линии - бронированные кабели (ВБбШв) 125 метров;
o Электропроводка предусмотрена скрытым способом, в гофрированной ПВХ-трубе;
o Запроектировано 150 точек подключения розеток и выключателей освещения в доме;
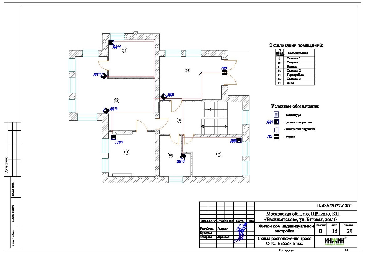
o Предусмотрены слаботочные линии локальной вычислительной сети протяженностью 950 метров.
Предусмотрена система резервного электропитания с использованием инвертора CyberPower CPS 7500 PRO с АКБ.






















