Выполненные проекты
Проект отопления дома 144 м.кв. в Тверской области
Объект: двухэтажный частный дом из пенобетона, площадью 144 м.кв., расположенный в д. Сакулино Калининского района Тверской области
Вариант отопления: «Комфортный»
Цена проекта отопления и водоснабжения: 25 632 руб. со скидкой 10%, проект котельной - бесплатно.
Проект котельной, отопления и водоснабжения выполнен: 28.11.2022
Состав проекта котельной, отопления и водоснабжения дома в д. Сакулино Тверской области:
1. Пояснительная записка проекта, общие данные по системам отопления и водоснабжения дома 144 м.кв. в д. Сакулино Тверской области.
2. Тепломеханическая схема котельной с размещением оборудования в отдельном помещении дома из пенобетона.
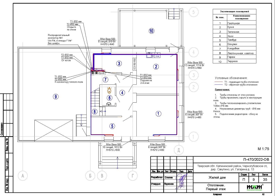
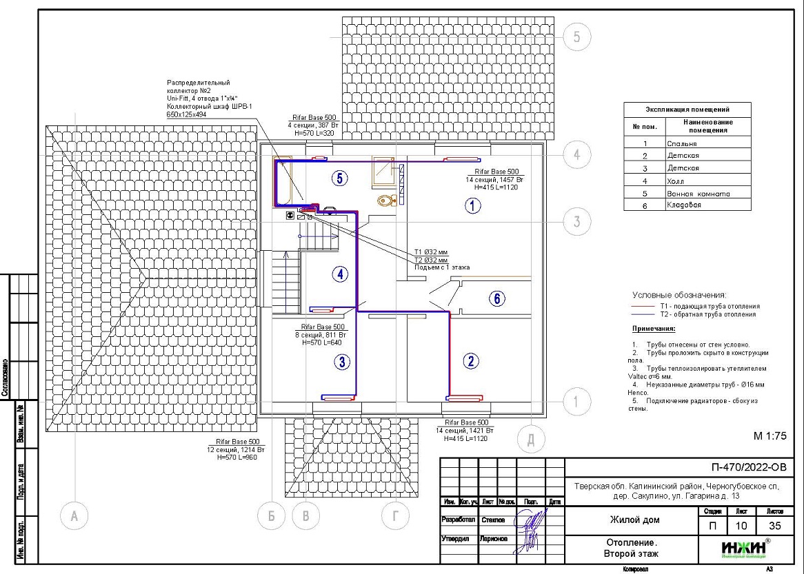
3. Комплект поэтажных чертежей радиаторного отопления дома в д. Сакулино Тверской области.
4. Комплект чертежей теплого пола на площади 59 м.кв.
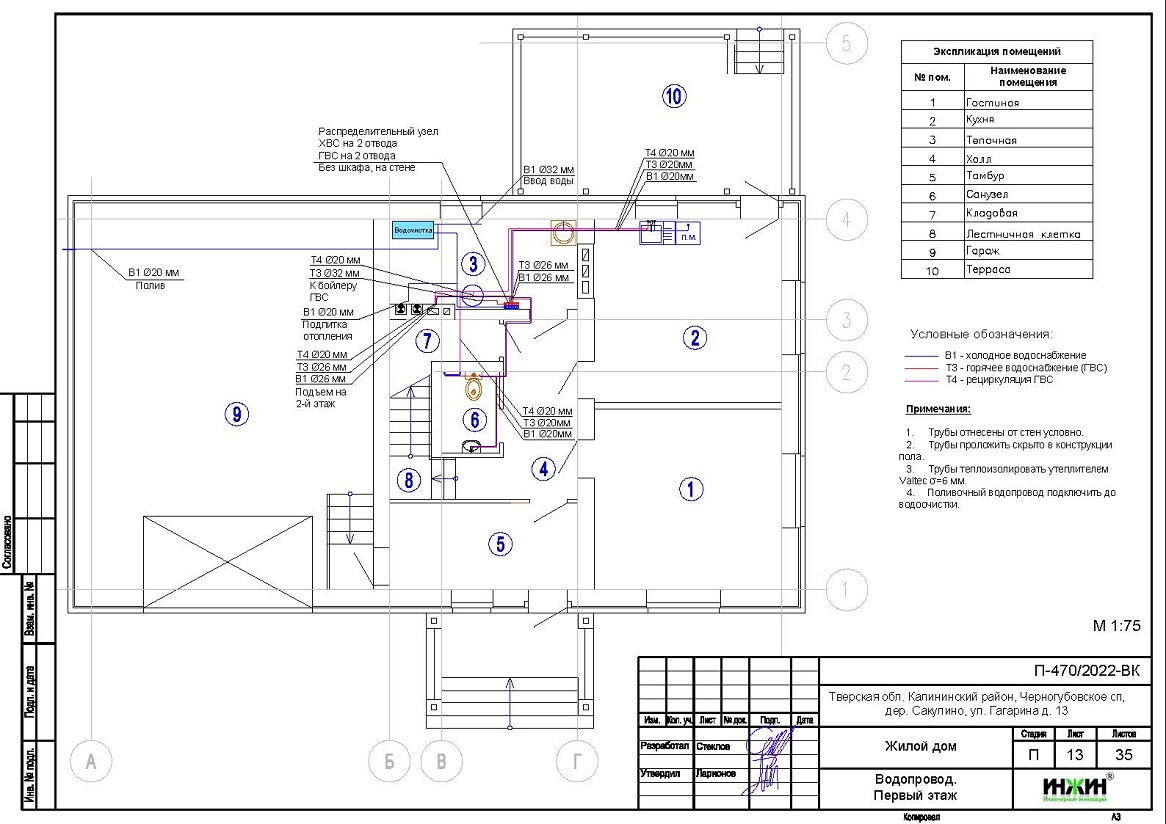
5. Комплект чертежей водоснабжения частного дома из пенобетона в д. Сакулино Тверской области.
6. Типовые схемы системы отопления и водоснабжения дома 144 м.кв.
7. Теплотехнический расчет отопления дома из пенобетона.
8. Спецификация материалов и оборудования по котельной, отоплению и водоснабжению дома в д. Сакулино Тверской области.
Объем проекта отопления и водоснабжения дома в г. Струнино Владимирской области: 35 листов.
Описание проекта отопления, котельной и водоснабжения частного дома 144 м.кв. в д. Сакулино Тверской области.
Котельная частного дома в д. Сакулино Тверской области(проект котельной бесплатно).
o Размещена в отдельном помещении дома 144 м.кв.;
o Теплогенератор - настенный газовый котел Baxi ECO Four, мощностью 24 кВт (в наличии);
o Контуры теплоснабжения котельной – радиаторное отопление дома, теплый пол (на контуре отопления) и горячее водоснабжение, для которого предусмотрен накопительный бойлер STOUT, объемом 150 литров (подключение к котлу);
o Расширительные баки отопления и бойлера Flamco, объемом 18 литров каждый;
o Дымоудаление принудительное, дымоход раздельный, вертикальный, диаметр 120 мм, размещение - в строительной шахте;
o Распределительный коллектор котельной не предусмотрен;
o Автоматика котельной – комнатный механический термостат Baxi.
Отопление дома в д. Сакулино Тверской области (проект отопления дома).
o Выполнен теплотехнический расчет отопления дома из пенобетона (утеплитель кровли - базальтовая вата 250мм, пол - пеноплекс 100мм) с учетом теплопотерь через ограждающие конструкции при наружной температуре -29°С для Тверской области (по СП 131.13330.2012), расчетный расход тепла на отопление дома составил 11,68 кВт, удельные теплопотери 80,8 Вт/м.кв.;
o Подобраны приборы для отопления дома: секционные радиаторы Rifar Base с боковым подключением;
o Схема радиаторного отопления дома двухтрубная, коллекторно-лучевая, с принудительной циркуляцией теплоносителя и температурным графиком 80/60°С;
o Трубы отопления из металлопластика Henco;
o Теплоизоляция трубопроводов отопления Valtec, толщиной 6мм;
o Теплоноситель в системе радиаторного отопления дома – подготовленная вода, предусмотрены средства защиты от образования накипи.
Водяной теплый пол дома в д. Сакулино Тверской области (проект теплого пола).
o Водяной теплый пол в доме предусмотрен на площади 59 м.кв., коллектор теплого пола Uni-Fit на 8 отводов;
o Предусмотрен насосно-смесительный узел для теплоснабжения водяного теплого пола дома на контуре отопления;
o Трубопроводы теплого пола – сшитый полиэтилен Henco;
o Регулирование температуры теплого пола - общее, регулятором на смесительном узле.
Внутренний водопровод дома в д. Сакулино Тверской области (проект водоснабжения).
o Схема внутреннего водоснабжения дома – тройниковая, с распределительным узлом и рециркуляцией горячей воды через водяные полотенцесушители, выполнен расчет 19-и точек водоснабжения;
o Трубопроводы системы водоснабжения – из металлопластика Henco;
o Теплоизоляция трубопроводов Valtec, толщиной 6мм.



















