Выполненные проекты
Проект отопления загородного дома площадью 481 м.кв.
Проект отопления, водоснабжения и канализации выполнен: 27.11.2013
Объект: загородный дом площадью 481 кв.м. в пос. Николо-Урюпино Московской области
Вариант отопления: «Комфортный»
Стоимость проекта отопления, водоснабжения и канализации: 82 550 руб. (проект котельной – бесплатно)
Состав проекта отопления, водоснабжения и канализации:
Пояснительная записка. Общие данные по системам отопления, водоснабжения и канализации.
Теплотехнический расчет отопления.
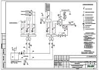
Тепломеханическая схема котельной с размещением оборудования.
Комплект чертежей радиаторного отопления жилого дома.
Комплект чертежей напольного отопления (теплого пола) жилого дома.
Комплект рабочих чертежей внутреннего водопровода и канализации жилого дома.
Схема системы канализации (аксонометрия).
Спецификация материалов и оборудования отопления, водоснабжения и канализации.
Объем проекта отопления, водоснабжения и канализации: 56 листов.
Основные проектные решения, в соответствии с заданием Заказчика.
Котельная (проект котельной бесплатно).
На базе напольного чугунного котла DeDietrich с панелью Diematic-m 3 мощностью 72 кВт с атмосферной газовой горелкой;
Контуры котельной – отопление дома, водяной теплый пол, теплоснабжение вентиляции, обогрев наружных поверхностей, и горячее водоснабжение;
Приготовление горячей воды при помощи бойлера DeDietrich объемом 200 литров;
Расширительные баки отопления и водоснабжения Reflex;
Насосное оборудование для водяного теплого пола и контура отопления Grundfos;
Трубы дымоходные из нержавеющей стали Rosinox;
Распределительный коллектор с насосно-смесительными узлами Meibes;
Автоматика котельной – DeDietrich Diematic.
Автоматизация (вариант «Комфортный»).
Автоматическое регулирование отопления по наружной температуре (погодное регулирование);
Автоматическое поддержание заданной температуры в контурах отопления, теплого пола и горячего водоснабжения.
Отопление частного дома (радиаторное).
Отопление дома радиаторное, использованы чугунные секционные радиаторы 2К60-П 300;
Схема радиаторного отопления коллекторная с принудительной циркуляцией теплоносителя;
Температурный график отопления 80/60°С;
Трубопроводы отопления – поперечно сшитый полиэтилен Rehau.
Водяной теплый пол (напольное отопление).
Теплые полы проектом предусмотрены на площади 135 м.кв.
Трубопроводы теплого пола - поперечно сшитый полиэтилен Rehau.
Управление теплым полом – общее, контуром котельной.
Система обогрева наружных поверхностей.
Обогрев наружных поверхностей (отмостка здания) спроектирован на площади 80 м.кв.
Трубопроводы - поперечно сшитый полиэтилен Rehau.
Теплоноситель контура обогрева наружных поверхностей - антифриз.
Водяные полотенцесушители.
Источником теплоснабжения полотенцесушителей принят контур рециркуляции бытовой горячей воды.
Внутренний водопровод.
Схема внутреннего водоснабжения – тройниковая, тупиковая;
Трубопроводы системы водоснабжения – армированный полипропилен Valtec;
В системе горячего водоснабжения предусмотрена рециркуляция горячей воды.
Внутренняя канализация.
Предусмотрен безнапорный отвод стоков от санитарно-технических приборов;
Трубопроводы канализации – полипропилен Синикон.



















