Выполненные проекты
Проект электрики дома 340 м.кв. во Владимирской области
Проект электрики (электроснабжения и освещения) выполнен: 05.12.2013
Объект: частный дом площадью 340 м.кв. во Владимирской области
Стоимость проекта электрики: 37 400 руб.
Состав проекта электрики:
Пояснительная записка. Общие данные по электроснабжению и освещению.
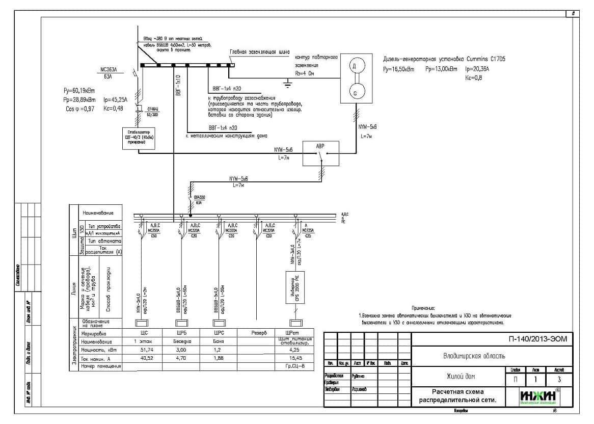
Однолинейные схемы вводного распределительного устройства и поэтажных распределительных щитов.
Поэтажные планы силовых электрических сетей.
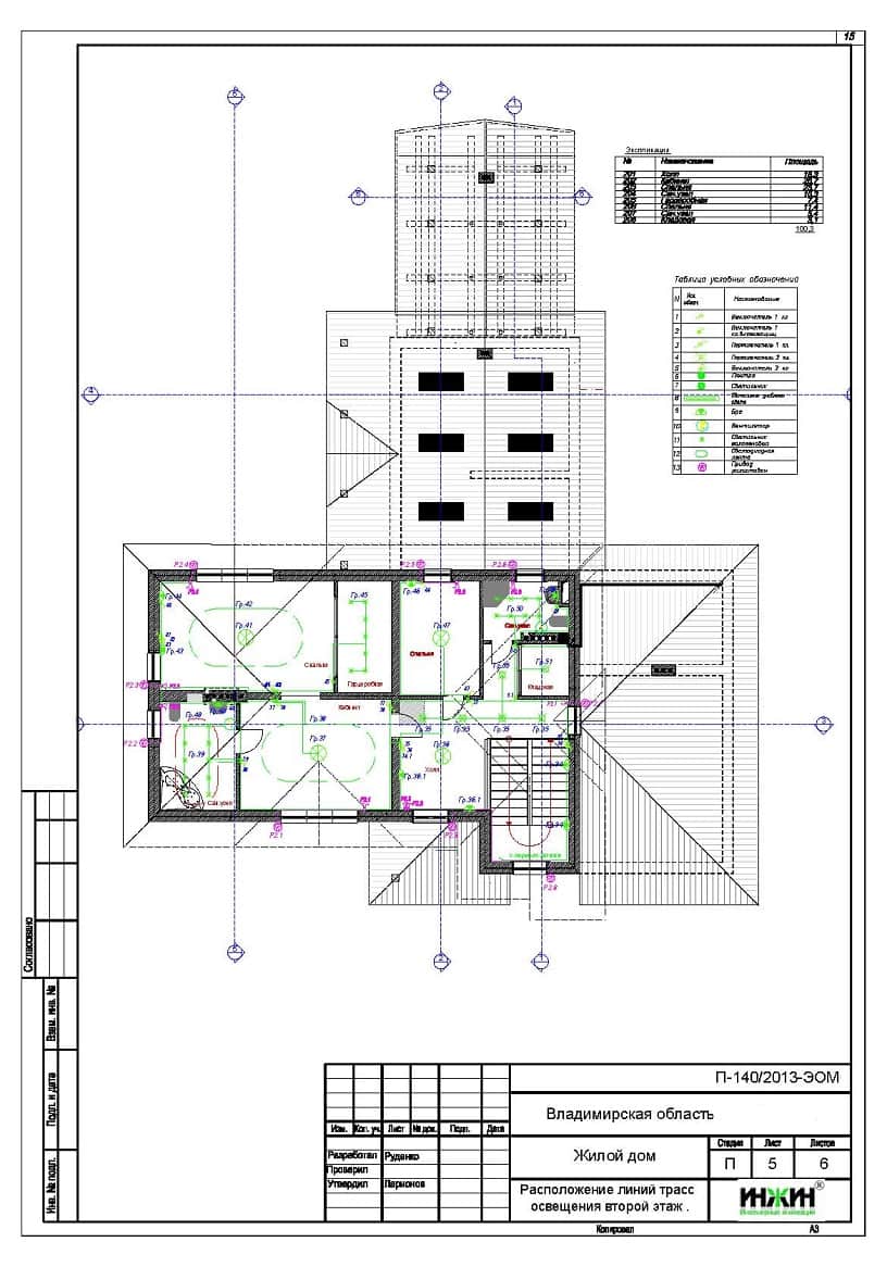
Поэтажные планы групповых осветительных сетей.
Схема системы уравнивания потенциалов.
Спецификация материалов и оборудования.
Объем проекта электрики: 19 листов.
Основные технические решения проекта электроснабжения и освещения (электрики), в соответствии с заданием Заказчика.
Распределительный электрический щит.
o Проектом предусмотрен 1 щит, оснащенный 56-ю автоматами;
o Автоматические выключатели, дифференциальные автоматы и УЗО в щите - Hager;
o Предусмотрен щит аварийного и стабилизированного электропитания с 9-ю автоматами;
o Корпус щита - ABB.
Электропроводка - проект кабельных линий.
o Проектом предусмотрено использование кабелей ВВГ нг -LS (Конкорд) с медными жилами в ПВХ-оболочке;
o Общая протяженность линий электроснабжения и освещения – 7 265 метров;
o Прокладка силовых линий предусмотрена скрытым способом, в пластиковой гофротрубе.
Заземление.
Для защиты людей от поражения электрическим током при повреждении изоляции проектом предусмотрена реализация контура заземления.
Стабилизированное электропитание.
Проектом предусмотрено стабилизированное электропитание, к которому подключены:
o Телефоны и спутниковое телевидение;
o Домофон;
o Аудио- и видеоаппаратура, телевизоры, домашний кинотеатр;
o Холодильник;
o Газовый котел.
Резервное электропитание.
Проектом предусмотрено использование дизель-генераторной установки Cummins C17 в кожухе. К источнику резервного электропитания подключены все основные потребители.
По этому проекту выполнен монтаж системы электроснабжения и освещения (монтаж электрики).
Заказать проект электрики дома.



















