Выполненные проекты
Проект электрики каркасного дома в республике Коми
Объект: одноэтажный каркасный дом, площадью 111 м.кв., расположенный в г. Ухта, республика Коми
Цена (стоимость) проекта электрики (электропроводки): 13 287 руб. со скидкой 10%, проект слаботочных кабельных линий - бесплатно.
Проект электрики выполнен: 13.01.2023
Состав проекта электрики дома в г. Ухта:
1. Пояснительная записка. Общие данные по электроснабжению и освещению частного дома в г. Ухта.
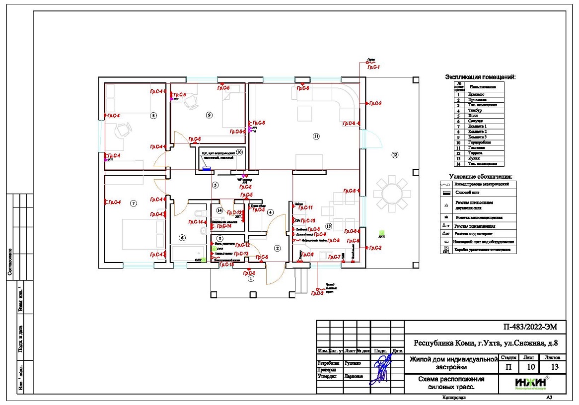
2. Однолинейные схемы вводного распределительного устройства и электрического распределительного щита дома 111 м.кв.
3. Чертежи электропроводки дома в г. Ухта.
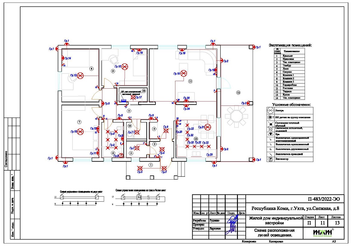
4. Чертежи групповых осветительных сетей дома в г. Ухта.
5. Спецификация материалов и оборудования по электрике и электропроводке дома в г. Ухта.
Объем проекта электрики дома 111 м.кв.: 13 листов.
Проект электрики дома площадью 111 м.кв. в г. Ухта- подробное описание.
Расчетные показатели по электроснабжению и освещению дома в г. Ухта.
o Расчетная электрическая мощность дома составила 15,56 кВт, с учетом коэффициента спроса 0,6, принятого согласно СП 256.1325800.2016;
o При расчете учтено силовое оборудование: кондиционеры, газовый котел, электрический котел, водоочистка, скважинный насос, приточно-вытяжная установка.
Распределительные электрические щиты дома площадью 111 м.кв.
o Проектом предусмотрен распределительный электрический щит, размещенный в гардеробной;
o Автоматические выключатели, дифференциальные автоматы, рубильники и УЗО в щите – ABB, в количестве 26 шт. размещены в навесном корпусе.
Силовая кабельная сеть (электропроводка) дома в г. Ухта.
o Электропроводка дома предусмотрена с использованием кабелей ВВГнг с медными жилами в ПВХ-оболочке (не поддерживает горение);
o Общая протяженность линий электроснабжения и освещения – 770 метров, вводные кабельные линии - бронированные кабели (ВБбШв) 50 метров;
o Электропроводка предусмотрена скрытым способом, в гофрированной ПВХ-трубе;
o Запроектировано 88 точек подключения розеток и выключателей освещения в доме;
o Предусмотрены слаботочные линии локальной вычислительной сети и телевидения, общей протяженностью 100 метров.


















