Выполненные проекты
Отопление таунхауса в КП "Футуро Парк" (240 м.кв.)
Объект: таунхаус из монолитного бетона, площадью 240 м.кв., расположенный в КП "Футуро Парк" Московской области
Вариант отопления: «Комфортный»
Цена проекта отопления, канализации и водоснабжения: 49 680 руб. со скидкой 10%, проект котельной - бесплатно.
Проект котельной, отопления, водоснабжения и канализации выполнен: 27.01.2023
Состав проекта котельной, отопления, канализации и водоснабжения таунхауса в КП "Футуро Парк":
1. Пояснительная записка проекта, общие данные по системам отопления, канализации и водоснабжения таунхауса 240 м.кв. в Московской области.
2. Тепломеханическая схема котельной с размещением оборудования в отдельном помещении таунхауса из монолитного бетона.
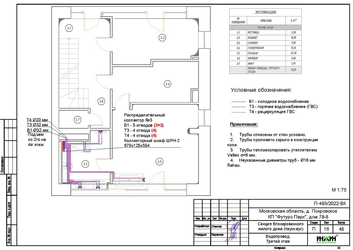
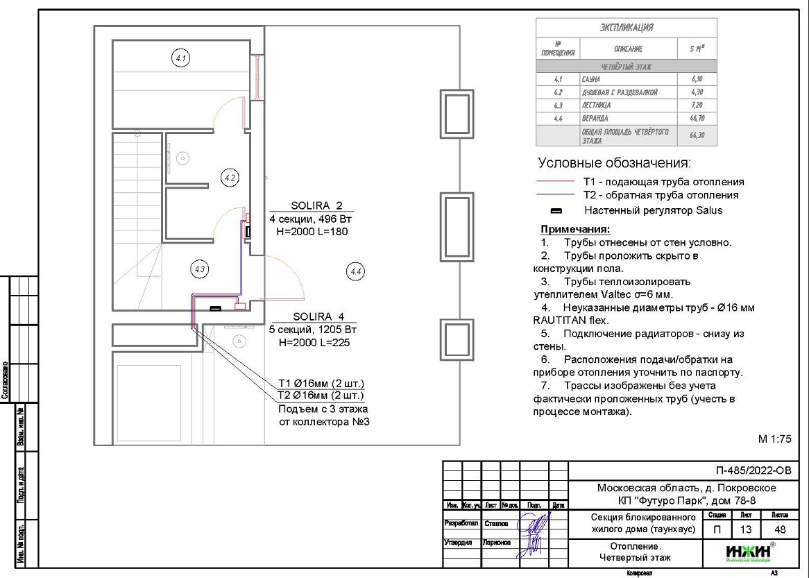
3. Комплект поэтажных чертежей радиаторного отопления таунхауса в КП "Футуро Парк".
4. Комплект чертежей водоснабжения и канализации таунхауса из монолитного бетона.
5. Типовые схемы системы отопления канализации и водоснабжения таунхауса 240 м.кв.
6. Теплотехнический расчет отопления таунхауса из монолитного бетона.
7. Спецификация материалов и оборудования по котельной, отоплению, канализации и водоснабжению таунхауса в КП "Футуро Парк".
Объем проекта отопления, канализации и водоснабжения таунхауса: 48 листов.
Описание проекта отопления, котельной, канализации и водоснабжения таунхауса 240 м.кв. в КП "Футуро Парк".
Котельная таунхауса в КП "Футуро Парк"(проект котельной бесплатно).
o Размещена в отдельном помещении бойлерной таунхауса 240 м.кв.;
o Теплогенератор - настенный газовый котел Viessmann Vitodens W100, мощностью 35 кВт (установлен на объекте);
o Контуры теплоснабжения котельной – радиаторное отопление, теплоснабжение вентиляции и горячее водоснабжение, для которого предусмотрен накопительный бойлер Drazice, объемом 200 литров (подключение к котлу);
o Расширительные баки отопления и бойлера Flamco, объемом 25 литров каждый;
o Циркуляционные насосы отопления и бойлера Grundfos в комплекте насосных групп;
o Дымоудаление выполнено на объекте;
o Распределительный коллектор STOUT с насосными группами (для контура вентиляции - с раздельным теплообменником);
o Автоматика котельной – контроллер ZONT Climatic 1.2 со встроенным GSM-модулем.
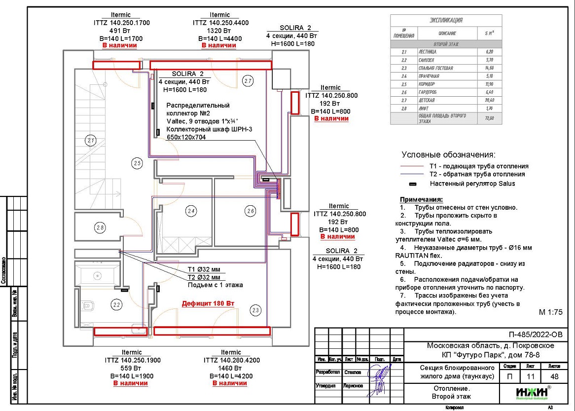
Отопление таунхауса в КП "Футуро Парк" (проект отопления дома).
o Выполнен теплотехнический расчет отопления таунхауса из монолитного бетона (утеплитель кровли - пеноплекс, 150мм, стен - минеральная вата 180мм) с учетом теплопотерь через ограждающие конструкции при наружной температуре -28°С для Московской области (по СП 131.13330.2012), расчетный расход тепла на отопление таунхауса составил 24,05 кВт, удельные теплопотери 110,2 Вт/м.кв.;
o Подобраны приборы для отопления таунхауса: стальные трубчатые радиаторы SOLIRA с нижним подключением и встроенные в пол конвекторы Varmann с естественной конвекцией (в наличии);
o Схема радиаторного отопления дома двухтрубная, коллекторно-лучевая, с принудительной циркуляцией теплоносителя и температурным графиком 80/60°С;
o Трубы отопления из сшитого полиэтилена Rehau;
o Теплоизоляция трубопроводов отопления Valtec, толщиной 6 мм;
o Теплоноситель в системе радиаторного отопления таунхауса – подготовленная вода, предусмотрены средства защиты от образования накипи в системе отопления.
Водяной теплый пол проектом не предусмотрен.
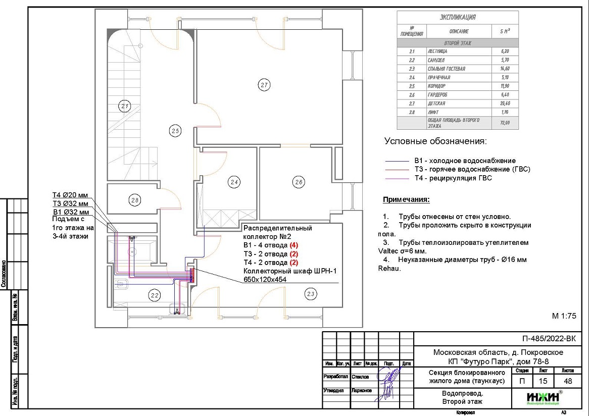
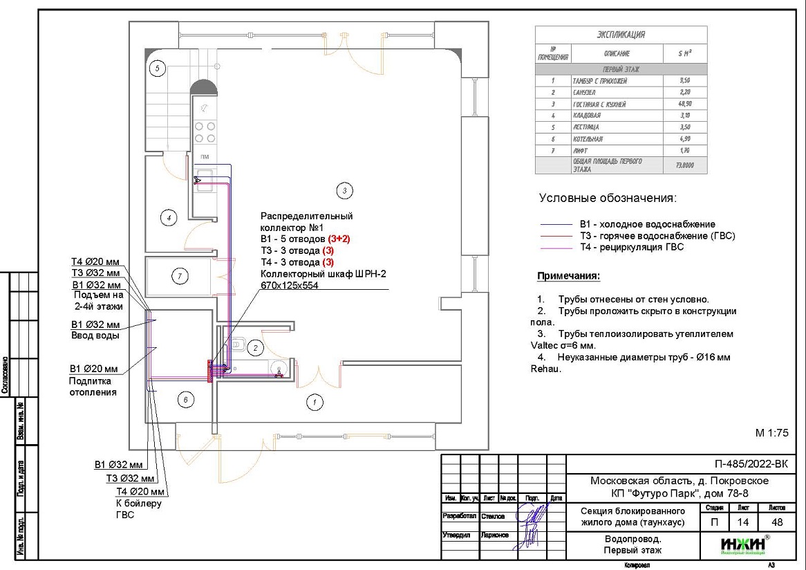
Внутренний водопровод таунхауса в КП "Футуро Парк" (проект водоснабжения).
o Схема внутреннего водоснабжения таунхауса – коллекторно-лучевая с рециркуляцией горячей воды через водяные полотенцесушители, выполнен расчет 31-й точки водоснабжения и полотенцесушителей;
o Трубопроводы системы водоснабжения – из сшитого полиэтилена Rehau;
o Теплоизоляция трубопроводов Valtec, толщиной 6 мм;
o Летний водопровод проектом не предусмотрен.
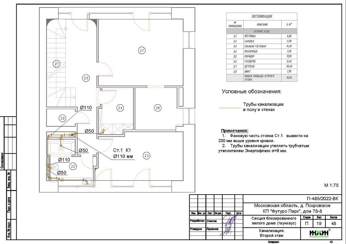
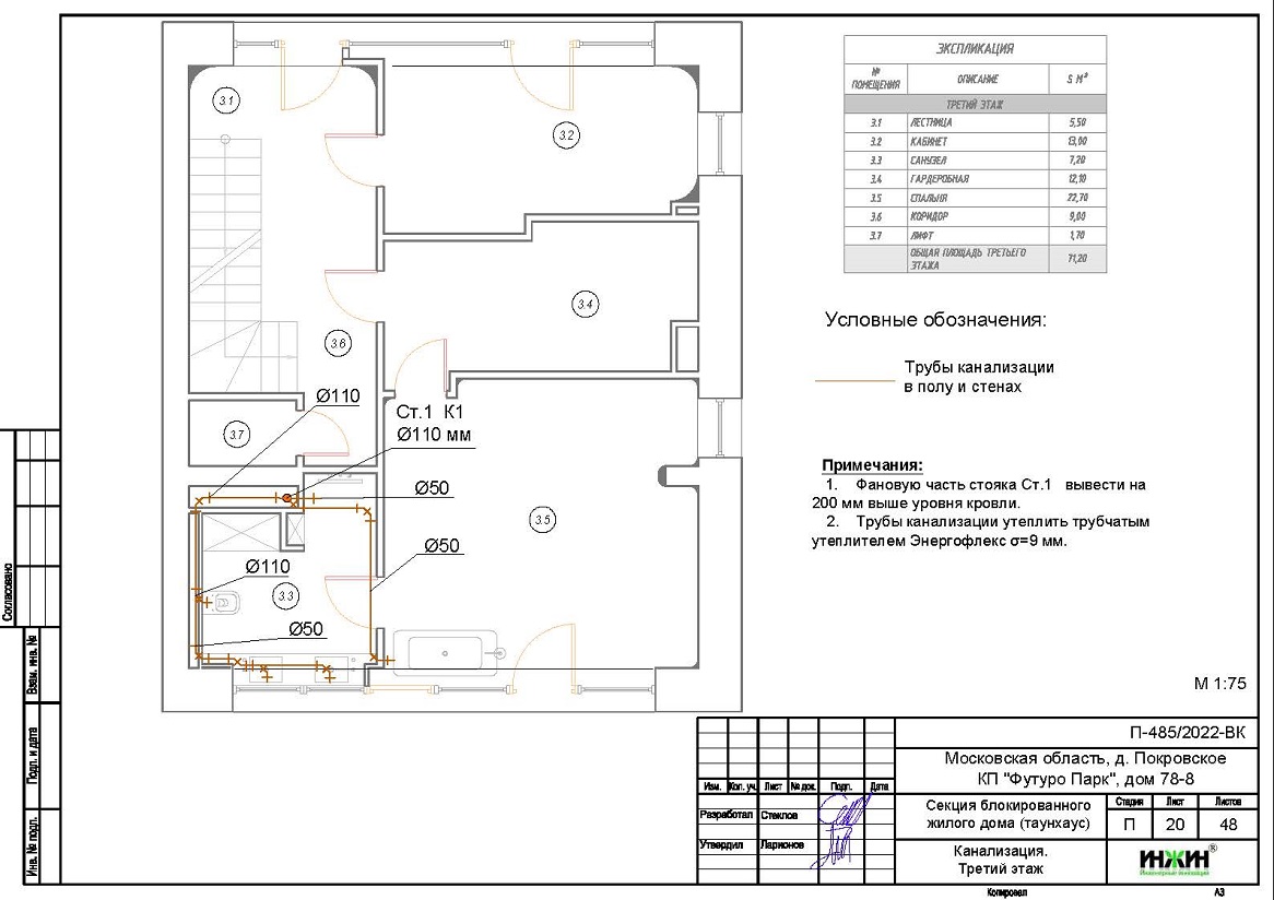
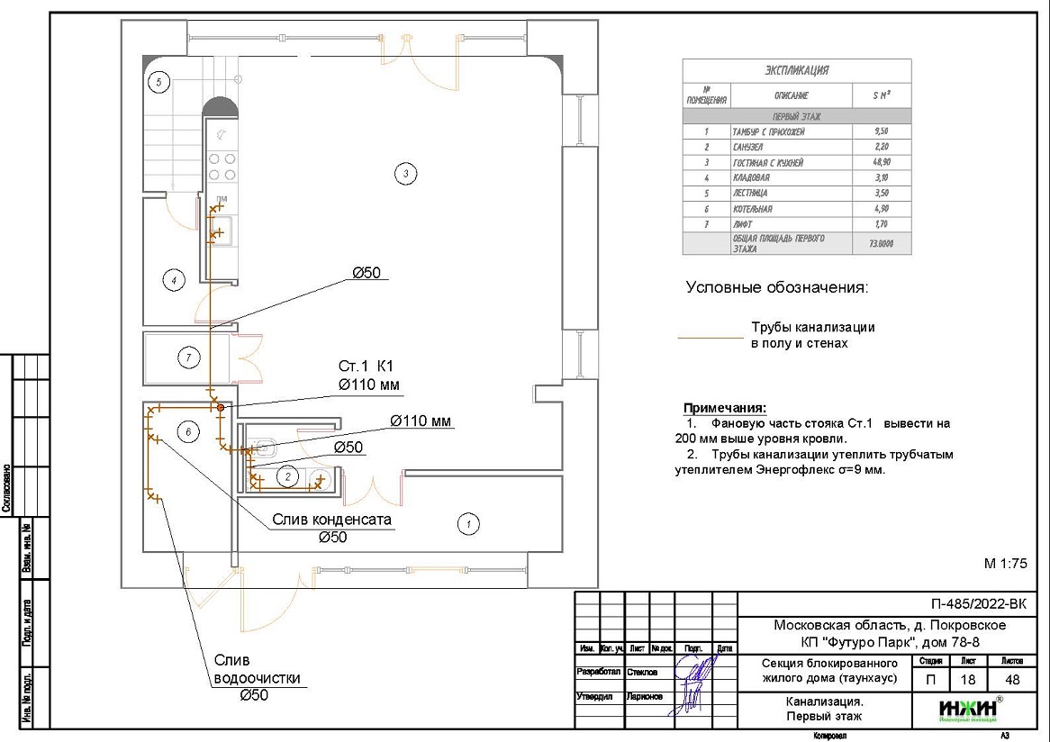
Внутренняя канализация (проект канализации) таунхауса в КП "Футуро Парк".
o Комбинированная - безнапорная, отвод стоков от санитарно-технических приборов предусмотрен в центральную сеть;
o Произведен расчет 20-ти точек бытовой канализации;
o Канализационные трубы Синикон, раструбные, из полипропилена.

























