Выполненные проекты
Отопление дома 144 м.кв. с баней в Луховицах, проект
Объект: частный дом с баней из газобетона, общей площадью 144 м.кв., расположенный в г. Луховицы Московской области
Вариант отопления: «Комфортный»
Цена проекта отопления, канализации и водоснабжения: 34 488 руб. со скидкой 10%, проект котельной - бесплатно.
Проект котельной, отопления, водоснабжения и канализации выполнен: 06.02.2023
Состав проекта котельной, отопления, канализации и водоснабжения дома в Луховицах:
1. Пояснительная записка проекта, общие данные по системам отопления, канализации и водоснабжения дома с баней 144 м.кв. в Луховицах.
2. Тепломеханическая схема котельной с размещением оборудования в отдельном помещении дома с баней из газобетона.
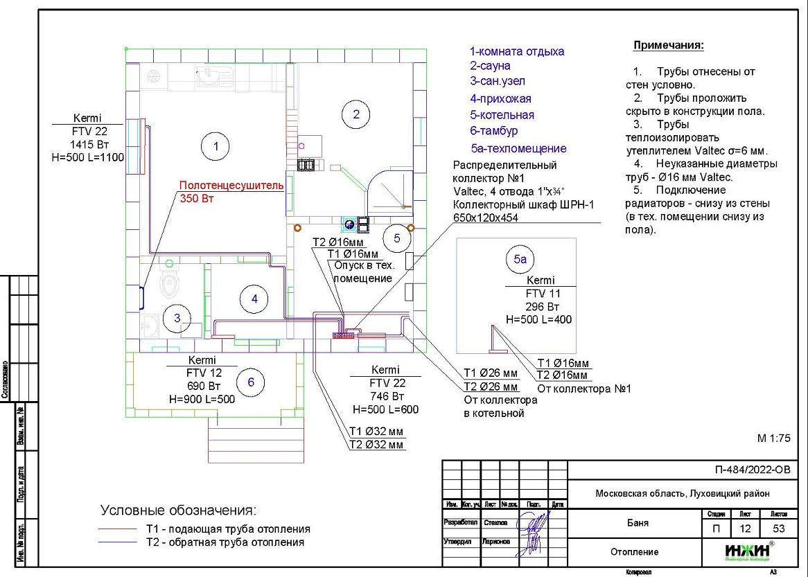
3. Комплект поэтажных чертежей радиаторного отопления дома с баней в Луховицах.
4. Комплект чертежей теплого пола на площади 65 м.кв.
5. Комплект чертежей водоснабжения и канализации частного дома с баней из газобетона в Луховицах.
6. Типовые схемы системы отопления канализации и водоснабжения дома с баней 144 м.кв.
7. Теплотехнический расчет отопления дома с баней из газобетона.
8. Спецификация материалов и оборудования по котельной, отоплению, канализации и водоснабжению дома с баней в Луховицах.
Объем проекта отопления, канализации и водоснабжения дома в Луховицах: 53 листа.
Описание проекта отопления, котельной, канализации и водоснабжения частного дома с баней 144 м.кв. в Луховицах.
Котельная частного дома в Луховицах(проект котельной бесплатно).
o Размещена в отдельном помещении бани;
o Теплогенераторы - два настенных котла - газовый Buderus Logamax U072, мощностью 28 кВт и электрический Protherm Скат, мощностью 9 кВт (оба в наличии);
o Контуры теплоснабжения котельной – радиаторное отопление дома и бани, теплый пол дома и горячее водоснабжение, для которого предусмотрен накопительный бойлер Stout, объемом 200 литров (подключение к коллектору);
o Расширительные баки отопления и бойлера Flamco, объемом 25 и 18 литров, соответственно;
o Дымоудаление принудительное, дымоход коаксиальный, диаметр 60/100 мм (выполнен на объекте);
o Распределительный коллектор - Meibes с насосными группами и гидравлическими разделителями;
o Автоматика котельной – контроллер ZONT Climatic 1.3 со встроенным GSM-модулем.
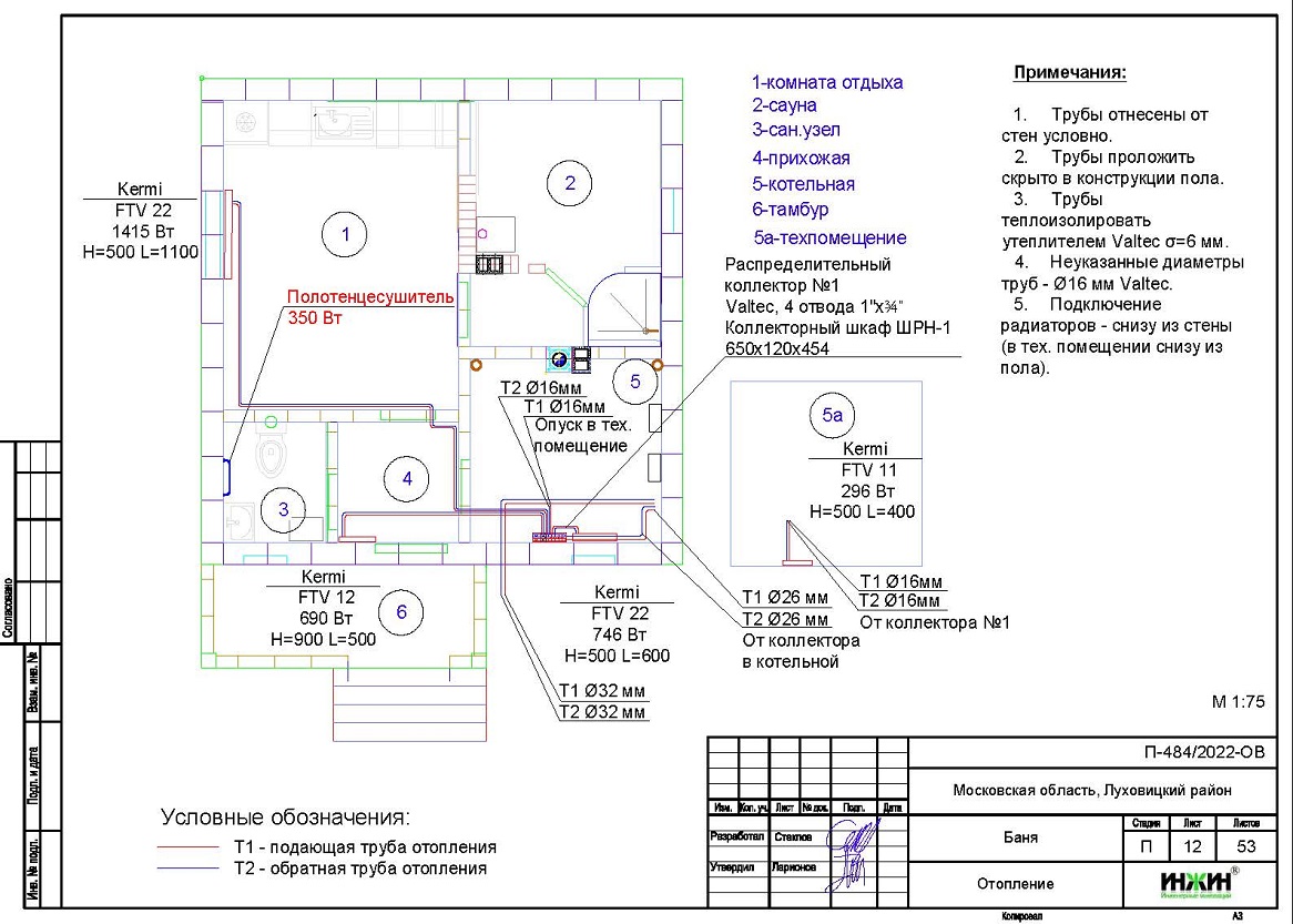
Отопление дома и бани в Луховицах (проект отопления дома).
o Выполнен теплотехнический расчет отопления комплекса строений (утеплитель кровли - минеральная вата 300 и 150мм, для дома и бани, соответственно) с учетом теплопотерь через ограждающие конструкции при наружной температуре -28°С для Московской области (по СП 131.13330.2012), расчетный расход тепла на отопление основного дома составил 10,84 кВт, удельные теплопотери 104,4 Вт/м.кв., бани - 4,43 кВт, удельные теплопотери 100,3 Вт/м.кв.;
o Подобраны приборы для отопления дома и бани: стальные панельные радиаторы Kermiс нижним подключением, в вентильном исполнении;
o Схема радиаторного отопления обоих строений двухтрубная, коллекторно-лучевая, с принудительной циркуляцией теплоносителя и температурным графиком 80/60°С;
o Трубы отопления из металлопластика Valtec;
o Теплоизоляция трубопроводов отопления Valtec, толщиной 6мм;
o Теплоноситель в системе радиаторного отопления дома – подготовленная вода, предусмотрены средства защиты от образования накипи.
Водяной теплый пол дома и бани в Луховицах (проект теплого пола).
o Водяной теплый пол в доме и бане предусмотрен на площади 65 м.кв., коллекторы теплого пола Valtec на 7 (для дома) и 3 (для бани) отводов;
o Предусмотрено два насосно-смесительных узла для теплоснабжения водяного теплого пола (для бани - на отоплении);
o Трубопроводы теплого пола – сшитый полиэтилен Rehau (в наличии);
o Регулирование температуры теплого пола - общее, регулятором на смесительных группах и зональное (по помещениям).
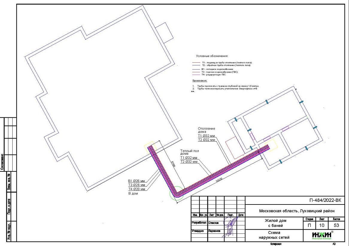
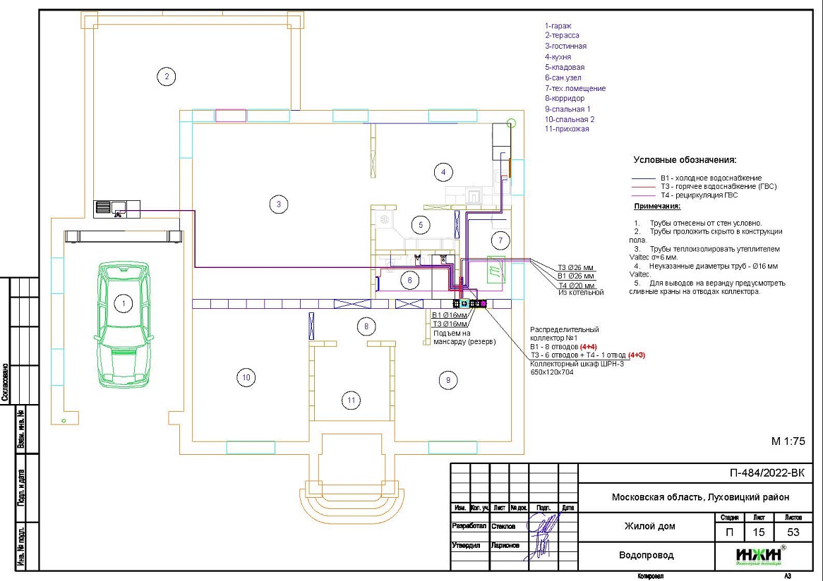
Внутренний водопровод дома с баней в Луховицах (проект водоснабжения).
o Схема внутреннего водоснабжения дома и бани – коллекторно-лучевая с рециркуляцией горячей воды через водяные полотенцесушители, выполнен расчет 22-х точек водоснабжения и полотенцесушителей (для обоих строений);
o Трубопроводы системы водоснабжения – из металлопластика Valtec;
o Теплоизоляция трубопроводов Valtec, толщиной 6мм.
Внутренняя канализация (проект канализации) дома с баней в Луховицах.
o Безнапорная, отвод стоков от санитарно-технических приборов предусмотрен в поселковую канализацию;
o Произведен расчет 15-и точек бытовой канализации;
o Канализационные трубы Синикон, раструбные.

























