Выполненные проекты
Проект электрики дома площадью 160 м.кв. в Карелии
Объект: частный каркасный дом, площадью 160 м.кв., расположенный в поселке Райвио, республика Карелия
Цена (стоимость) проекта электрики (электропроводки): 19 152 руб. со скидкой 10%, проект слаботочных кабельных линий - бесплатно.
Проект электрики выполнен: 22.02.2023
Состав проекта электрики дома в Карелии:
1. Пояснительная записка. Общие данные по электроснабжению и освещению частного дома в Карелии.
2. Однолинейные схемы вводного распределительного устройства и электрического распределительного щита дома 160 м.кв.
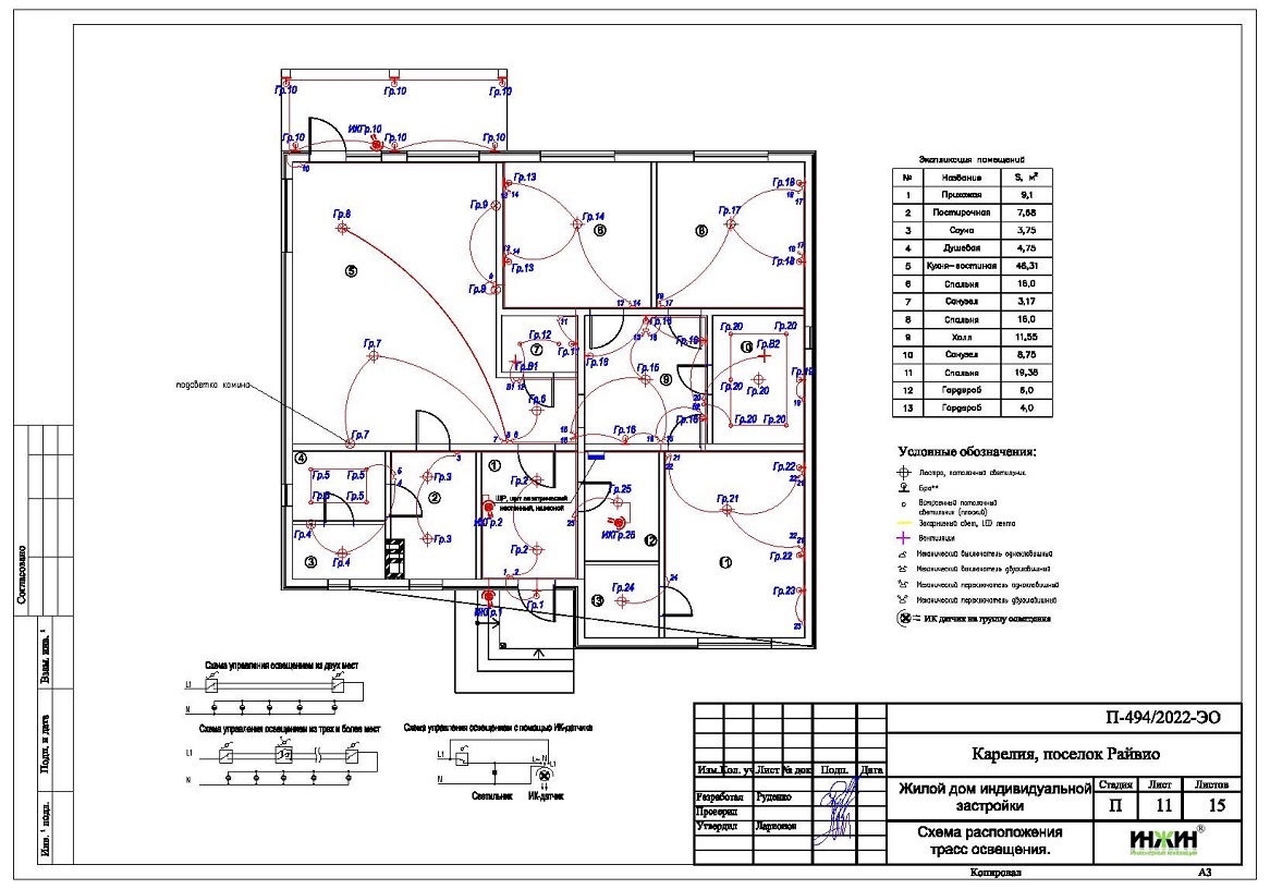
3. Чертежи электропроводки дома в Карелии.
4. Чертежи групповых осветительных сетей дома в Карелии.
5. Спецификация материалов и оборудования по электрике и электропроводке дома в Карелии.
Объем проекта электрики дома 160 м.кв.: 15 листов.
Проект электрики дома площадью 160 м.кв. в Карелии- подробное описание.
Расчетные показатели по электроснабжению и освещению дома в Карелии.
o Расчетная электрическая мощность дома составила 27,09 кВт, с учетом коэффициента спроса 0,5, принятого согласно СП 256.1325800.2016;
o При расчете учтено силовое оборудование: сауна, кондиционеры, электрический котел, приводы карнизов, водоочистка, электрические полотенцесушители.
Распределительные электрические щиты дома площадью 160 м.кв.
o Проектом предусмотрен распределительный электрический щит, размещенный в помещении гардеробной;
o Автоматические выключатели, дифференциальные автоматы, рубильники и УЗО в щите – ABB, в количестве 38 шт. размещены в навесном корпусе.
Силовая кабельная сеть (электропроводка) дома в Карелии.
o Электропроводка дома предусмотрена с использованием кабелей ВВГнг с медными жилами в ПВХ-оболочке (не поддерживает горение);
o Общая протяженность линий электроснабжения и освещения – 990 метров, вводные кабельные линии - бронированные кабели (ВБбШв) 60 метров;
o Электропроводка предусмотрена скрытым способом, в гофрированной ПВХ-трубе;
o Запроектировано 154 точки подключения розеток и выключателей освещения в доме;
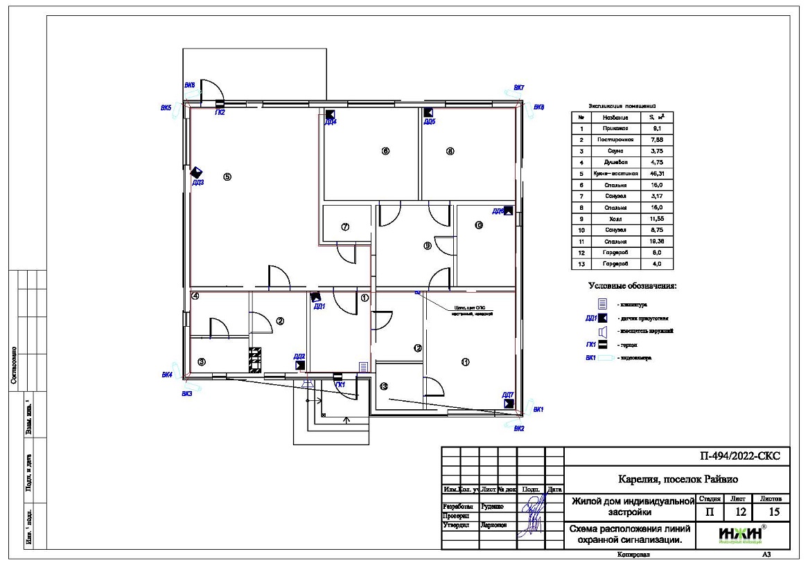
o Предусмотрены слаботочные линии локальной вычислительной сети, телевидения и видеонаблюдения протяженностью 685 метров.
Система резервного электропитания не предусмотрена.



















