Выполненные проекты
Электрика таунхауса 170 м.кв. в ЖК «Орлов»
Объект: таунхаус общей площадью 170 м.кв., расположенный в ЖК «Орлов», Ленинского района Московской области
Цена (стоимость) проекта электрики (электропроводки): 20 349 руб. со скидкой 10%, проект слаботочных кабельных линий - бесплатно.
Проект электрики таунхауса в пос. Первомайское выполнен: 07.03.2023
Состав проекта электрики таунхаус в ЖК «Орлов»:
1. Пояснительная записка. Общие данные по электроснабжению и освещению таунхауса в ЖК «Орлов».
2. Однолинейные схемы вводного распределительного устройства и электрического распределительного щита таунхауса 170 м.кв.
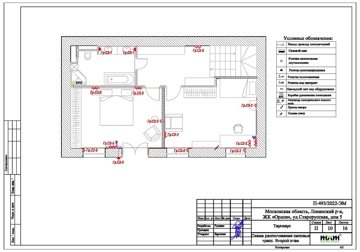
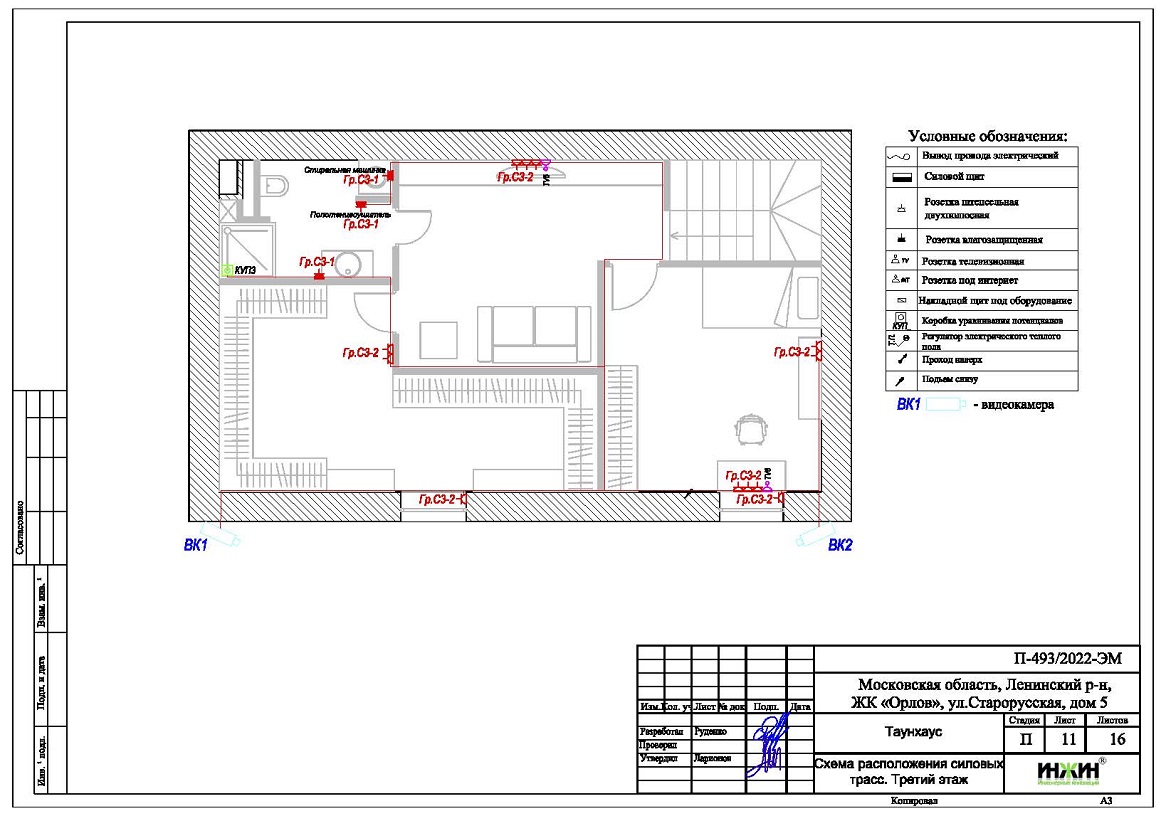
3. Чертежи электропроводки таунхауса в ЖК «Орлов».
4. Чертежи групповых осветительных сетей таунхауса в ЖК «Орлов».
5. Спецификация материалов и оборудования по электрике и электропроводке таунхауса в ЖК «Орлов».
Объем проекта электрики таунхауса 170 м.кв.: 16 листов.
Проект электрики таунхауса площадью 170 м.кв. в ЖК «Орлов»- подробное описание.
Расчетные показатели по электроснабжению и освещению таунхауса в ЖК «Орлов».
o Расчетная электрическая мощность дома составила 10,7 кВт, с учетом коэффициента спроса 0,45, принятого согласно СП 256.1325800.2016;
o При расчете учтено силовое оборудование: газовый котел, циркуляционные насосы, электрические полотенцесушители, обогрев крыльца.
Распределительные электрические щиты таунхауса площадью 170 м.кв.
o Проектом предусмотрен распределительный электрический щит, размещенный в прихожей;
o Автоматические выключатели, дифференциальные автоматы, рубильники и УЗО в щите – ABB, в количестве 28 шт. размещены во встраиваемом корпусе.
Силовая кабельная сеть (электропроводка) таунхауса в ЖК «Орлов».
o Электропроводка таунхауса предусмотрена с использованием кабелей ВВГ нг -LS с медными жилами в ПВХ-оболочке (не поддерживает горение);
o Общая протяженность линий электроснабжения и освещения – 970 метров;
o Электропроводка предусмотрена скрытым способом, в защитной гофрированной ПВХ-трубе (усиленной конструкции) и металлорукаве в виниловой оболочке (в стропильной системе кровли);
o Запроектировано 126 точек подключения розеток и выключателей освещения в доме;
o Предусмотрены слаботочные телевидения, общая протяженность - 60 метров.
Предусмотрено резервное электропитание однофазный бензиновый генератор мощностью 5 кВт (по выбору Заказчика).



















