Выполненные проекты
Проект электрики дома с вентиляцией в Щелковском районе
Объект: двухэтажный частный дом из керамоблоков Porotherm, площадью 280 м.кв., расположенный в дер. Оболдино Щелковского района Московской области
Цена (стоимость) проекта электрики (электропроводки): 33 516 руб. со скидкой 10%, проект слаботочных кабельных линий - бесплатно.
Проект электрики выполнен: 22.03.2023
Состав проекта электрики дома в дер. Оболдино:
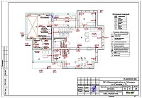
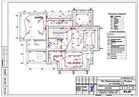
1. Пояснительная записка. Общие данные по электроснабжению и освещению частного дома в дер. Оболдино.
2. Однолинейные схемы вводного распределительного устройства и электрического распределительного щита дома 280 м.кв.
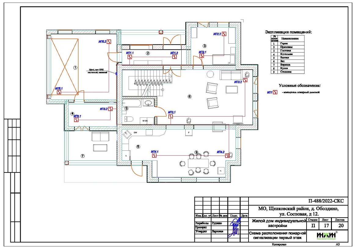
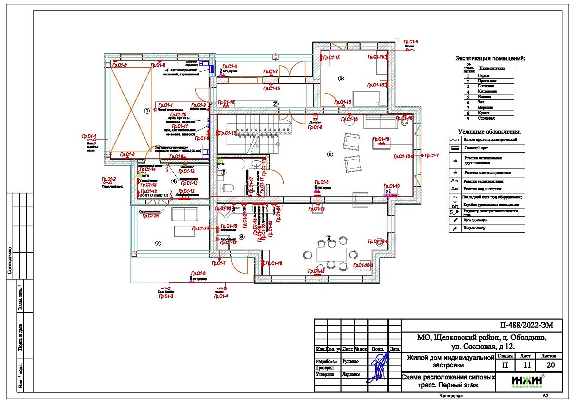
3. Чертежи электропроводки дома в дер. Оболдино.
4. Чертежи групповых осветительных сетей дома в дер. Оболдино.
5. Спецификация материалов и оборудования по электрике и электропроводке дома в дер. Оболдино.
Объем проекта электрики дома 280 м.кв.: 20 листов.
Проект электрики дома площадью 280 м.кв. в дер. Оболдино - подробное описание.
Расчетные показатели по электроснабжению и освещению дома в дер. Оболдино.
o Расчетная электрическая мощность дома составила 26,95 кВт, с учетом коэффициента спроса 0,5, принятого согласно СП 256.1325800.2016;
o При расчете учтено силовое оборудование: кондиционеры, газовый и электрический котлы, привод ворот, водоочистка, скважинный насос, электроплита.
Распределительные электрические щиты дома площадью 280 м.кв.
o Проектом предусмотрен распределительный электрический щит, размещенный в помещении котельной;
o Автоматические выключатели, дифференциальные автоматы, рубильники и УЗО в щите – ABB, в количестве 48 шт. размещены во встраиваемом корпусе.
Силовая кабельная сеть (электропроводка) дома в дер. Оболдино.
o Электропроводка дома предусмотрена с использованием кабелей ВВГнг с медными жилами в ПВХ-оболочке (не поддерживает горение);
o Общая протяженность линий электроснабжения и освещения – 2 135 метров, вводные кабельные линии - бронированные кабели (ВБбШв) 60 метров;
o Электропроводка предусмотрена скрытым способом, в гофрированной ПВХ-трубе;
o Запроектировано 131 точка подключения розеток и выключателей освещения в доме;
o Предусмотрены слаботочные линии телевидения, локальной вычислительной сети и системы "умный дом" протяженностью 2 880 метров.
Предусмотрена система резервного электропитания с использованием инвертора CyberPower CPS 3500 PRO с АКБ.
Заказать проект электрики дома дистанционно.
Для этого дома выполнен проект отопления и теплого пола.






















