Выполненные проекты
Проект отопления дома 280 м.кв. в дер. Оболдино
Объект: двухэтажный частный дом из керамоблоков Porotherm, площадью 280 м.кв., расположенный в дер. Оболдино Щелковского района Московской области
Вариант отопления: «Комфортный»
Цена проекта отопления: 42 480 руб. со скидкой 10%, проект котельной - бесплатно.
Проект котельной и отопления выполнен: 21.03.2023
Состав проекта котельной, отопления и теплого пола дома в дер. Оболдино:
1. Пояснительная записка проекта, общие данные по системе отопления дома 280 м.кв. в дер. Оболдино
2. Тепломеханическая схема котельной с размещением оборудования в отдельном помещении дома из керамоблоков Porotherm.
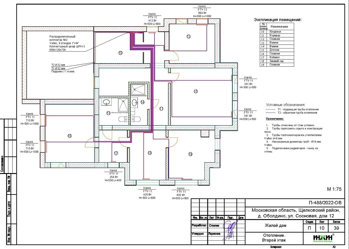
3. Комплект поэтажных чертежей радиаторного отопления дома в дер. Оболдино.
4. Комплект чертежей теплого пола на площади 205 м.кв.
5. Типовые схемы системы отопления и водоснабжения дома 280 м.кв.
6. Теплотехнический расчет отопления дома из керамоблоков Porotherm.
7. Спецификация материалов и оборудования по котельной и отоплению дома в дер. Оболдино.
Объем проекта отопления дома в дер. Оболдино: 39 листов.
Описание проекта отопления, котельной, водоснабжения, канализации и теплого пола частного дома 280 м.кв. в дер. Оболдино.
Котельная частного дома в дер. Оболдино(проект котельной бесплатно).
o Размещена в отдельном помещении дома 280 м.кв.;
o Теплогенераторы - основной настенный газовый котел MIZUDO M40ТH, мощностью 40 кВт, резервный - электрический котел ZOTA MK, мощностью 9 кВт;
o Контуры теплоснабжения котельной – радиаторное отопление дома, теплый пол (2 контура), теплоснабжение приточной вентиляции и горячее водоснабжение, для которого предусмотрен накопительный бойлер STOUT, объемом 200 литров (подключение к коллектору);
o Расширительные баки отопления и бойлера Flamco, объемом 35 и 18 литров;
o Дымоудаление принудительное, дымоход раздельный, диаметр 80/80 мм, размещение - в строительной шахте;
o Распределительный коллектор - в котельной STOUT, с насосными группами и гидравлическим разделителем;
o Автоматика котельной – контроллер ZONT Climatic 1.3 со встроенным GSM-модулем и блоком расширения ЕХ-77.
Отопление дома в дер. Оболдино (проект отопления дома).
o Выполнен теплотехнический расчет отопления дома из керамоблоков Porotherm (утеплитель кровли - стекловата 200мм) с учетом теплопотерь через ограждающие конструкции при наружной температуре -28°С для Московской области (по СП 131.13330.2012), расчетный расход тепла на отопление дома составил 23,15 кВт, удельные теплопотери 79,7 Вт/м.кв.;
o Подобраны приборы для отопления дома: биметаллические радиаторы Rifar Monolit Ventil с нижним подключением;
o Схема радиаторного отопления дома двухтрубная, коллекторно-лучевая, с принудительной циркуляцией теплоносителя и температурным графиком 80/60°С;
o Трубы отопления из металлопластика Valtec;
o Теплоизоляция трубопроводов отопления Valtec, толщиной 6мм;
o Теплоноситель в системе радиаторного отопления дома – подготовленная вода, предусмотрены средства защиты от образования накипи.
Водяной теплый пол дома в дер. Оболдино (проект теплого пола).
o Водяной теплый пол в доме предусмотрен на площади 205 м.кв., коллекторы теплого пола Valtec на 6, 9 и 12 отводов;
o Предусмотрены две насосные группы (со смесителями) для теплоснабжения водяного теплого пола дома (отдельно на каждый этаж);
o Трубопроводы теплого пола – сшитый полиэтилен Valtec;
o Регулирование температуры теплого пола - общее, контурами котельной, а также локальное (по помещениям), при помощи электронных термостатов Valtec.
Заказать в нашей компании проект отопления, водоснабжения и канализации загородного дома дистанционно со скидкой.
Для этого дома выполнен проект электроснабжения и освещения (электрики).



















