Выполненные проекты
Проект отопления дома 120 м.кв. в Воронеже
Объект: одноэтажный частный дом из пенобетона, площадью 120 м.кв., расположенный в г. Воронеж
Вариант отопления: «Комфортный»
Цена проекта отопления и водоснабжения: 15 480 руб. со скидкой 10%, проект котельной - бесплатно.
Проект котельной, отопления и водоснабжения выполнен: 12.04.2023
Состав проекта котельной, отопления дома в Воронеже:
1. Пояснительная записка проекта, общие данные по систем отопления дома 120 м.кв. в Воронеже.
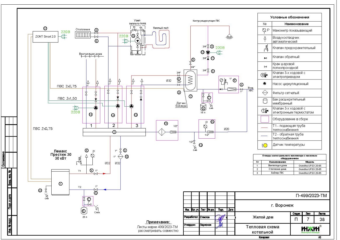
2. Тепломеханическая схема котельной с размещением оборудования в отдельном помещении дома из пенобетона.
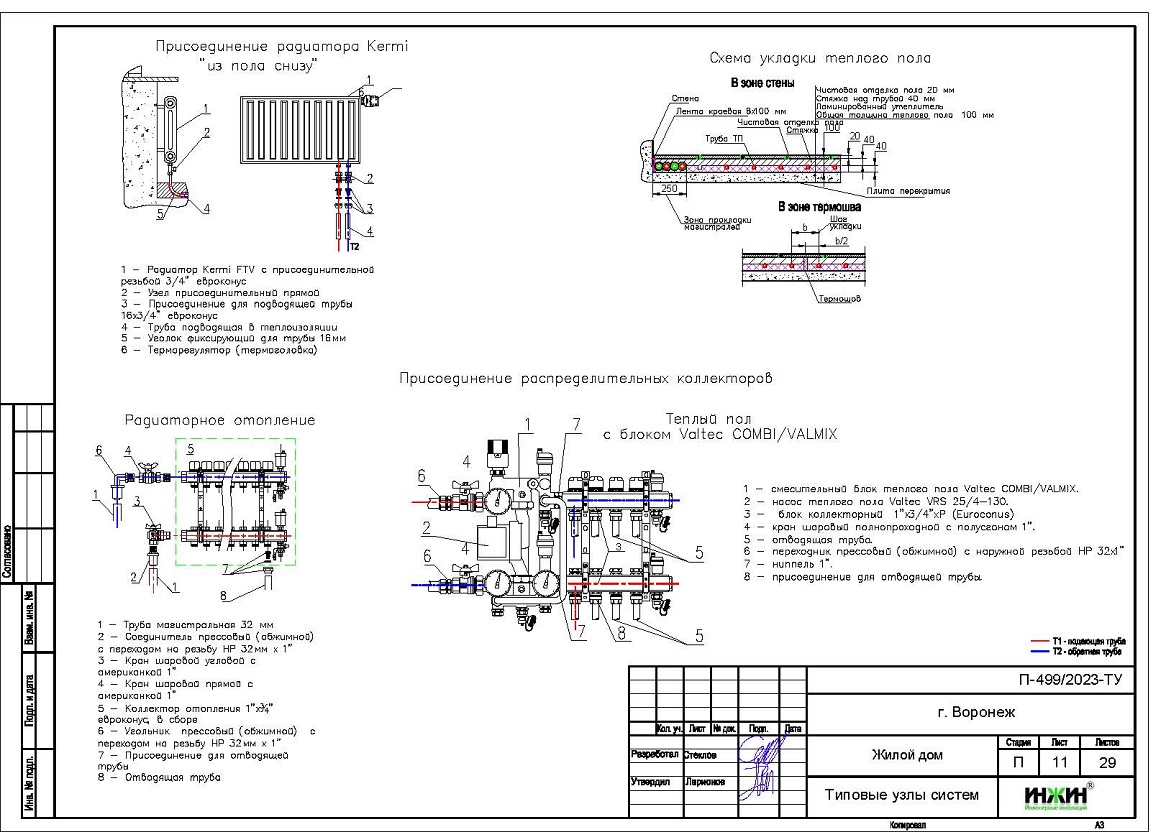
3. Комплект поэтажных чертежей радиаторного отопления дома в Воронеже.
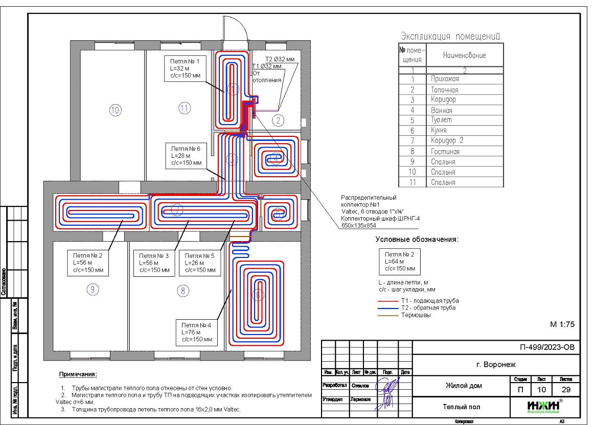
4. Комплект чертежей теплого пола на площади 50 м.кв.
5. Типовые схемы системы отопления дома 120 м.кв.
6. Теплотехнический расчет отопления дома из пенобетона.
7. Спецификация материалов и оборудования по котельной, отоплению и теплому полу дома в Воронеже.
Объем проекта отопления и водоснабжения дома в г. Струнино Владимирской области: 38 листов.
Описание проекта отопления, котельной и теплого пола частного дома 120 м.кв. в Воронеже.
Котельная частного дома в Воронеже(проект котельной бесплатно).
o Размещена в отдельном помещении дома 120 м.кв.;
o Теплогенератор - напольный газовый котел Лемакс Престиж, мощностью 30 кВт (в наличии);
o Контуры теплоснабжения котельной – радиаторное отопление дома, теплый пол (на контуре отопления) и горячее водоснабжение, для которого предусмотрен накопительный бойлер Termica AMET, объемом 150 литров (подключение к коллектору);
o Расширительные баки отопления и бойлера Flamco, объемом 25 и 18 литров, соответственно;
o Дымоудаление принудительное, дымоход, вертикальный, диаметр 130 мм, размещение - в строительной шахте;
o Распределительный коллектор котельной не предусмотрен;
o Автоматика котельной – контроллер ZONT SMART 2.0.
Отопление дома в Воронеже (проект отопления дома).
o Выполнен теплотехнический расчет отопления дома из пенобетона (утеплитель кровли - ЭППС 100мм, стены - пенопласт 100мм) с учетом теплопотерь через ограждающие конструкции при наружной температуре -26°С для Воронежской области (по СП 131.13330.2012), расчетный расход тепла на отопление дома составил 9,48 кВт, удельные теплопотери 87,6 Вт/м.кв.;
o Подобраны приборы для отопления дома: панельные радиаторы Kermi с нижним подключением;
o Схема радиаторного отопления дома двухтрубная, коллекторно-лучевая, с принудительной циркуляцией теплоносителя и температурным графиком 80/60°С;
o Трубы отопления из металлопластика Valtec;
o Теплоизоляция трубопроводов отопления Valtec, толщиной 6мм;
o Теплоноситель в системе радиаторного отопления дома – подготовленная вода, предусмотрены средства защиты от образования накипи.
Водяной теплый пол дома в Воронеже (проект теплого пола).
o Водяной теплый пол в доме предусмотрен на площади 50 м.кв., коллектор теплого пола Valtec на 6 отводов;
o Предусмотрен насосно-смесительный узел для теплоснабжения водяного теплого пола дома на контуре отопления;
o Трубопроводы теплого пола – сшитый полиэтилен Valtec;
o Регулирование температуры теплого пола - общее, регулятором на смесительном узле.



















