Выполненные проекты
Проект электрики дома в дер. Благовещенское
Объект: частный каркасный дом, площадью 110 м.кв., расположенный в дер. Благовещенское, Дмитровского района Московской области
Цена (стоимость) проекта электрики (электропроводки): 13 167 руб. со скидкой 10%, проект слаботочных кабельных линий - бесплатно.
Проект электрики выполнен: 19.04.2023
Состав проекта электрики дома в дер. Благовещенское:
1. Пояснительная записка. Общие данные по электроснабжению и освещению частного дома в дер. Благовещенское.
2. Однолинейные схемы вводного распределительного устройства и электрического распределительного щита дома 110 м.кв.
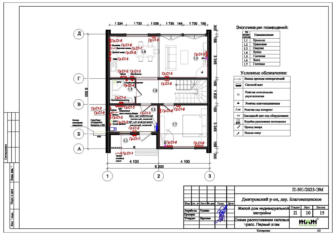
3. Чертежи электропроводки дома в дер. Благовещенское.
4. Чертежи групповых осветительных сетей дома в дер. Благовещенское.
5. Спецификация материалов и оборудования по электрике и электропроводке дома в дер. Благовещенское.
Объем проекта электрики дома 110 м.кв.: 15 листов.
Проект электрики дома площадью 110 м.кв. в дер. Благовещенское- подробное описание.
Расчетные показатели по электроснабжению и освещению дома в дер. Благовещенское.
o Расчетная электрическая мощность дома составила 14,69 кВт, с учетом коэффициента спроса 0,65, принятого согласно СП 256.1325800.2016;
o При расчете учтено силовое оборудование: скважинный насос, газовый котел, приводы ворот, водоочистка, электрические полотенцесушители.
Распределительные электрические щиты дома площадью 110 м.кв.
o Проектом предусмотрен распределительный электрический щит, размещенный в помещении гардеробной;
o Автоматические выключатели, дифференциальные автоматы, рубильники и УЗО в щите – ABB, в количестве 19 шт. размещены в навесном корпусе.
Силовая кабельная сеть (электропроводка) дома в дер. Благовещенское.
o Электропроводка дома предусмотрена с использованием кабелей ВВГнг с медными жилами в ПВХ-оболочке (не поддерживает горение);
o Общая протяженность линий электроснабжения и освещения – 560 метров, вводные кабельные линии - бронированные кабели (ВБбШв) 40 метров;
o Электропроводка предусмотрена скрытым способом, в гофрированной ПВХ-трубе;
o Запроектировано 88 точек подключения розеток и выключателей освещения в доме;
o Предусмотрены слаботочные линии локальной вычислительной сети протяженностью 40 метров.
Предусмотрена система резервного электропитания с использованием инвертора CyberPower CPS 3000 PRO с АКБ.



















