Выполненные проекты
Проект отопления дома 305 м.кв. в г. Дубна
Объект: двухэтажный дом из газобетона, площадью 305 м.кв., расположенный в г. Дубна Московской области
Вариант отопления: «Комфортный»
Цена проекта отопления, канализации и водоснабжения: 74 655 руб. со скидкой 10%, проект котельной - бесплатно.
Проект котельной, отопления, водоснабжения и канализации выполнен: 27.04.2023
Состав проекта котельной, отопления, канализации и водоснабжения дома в г. Дубна:
1. Пояснительная записка проекта, общие данные по системам отопления, канализации и водоснабжения дома 305 м.кв. в г. Дубна.
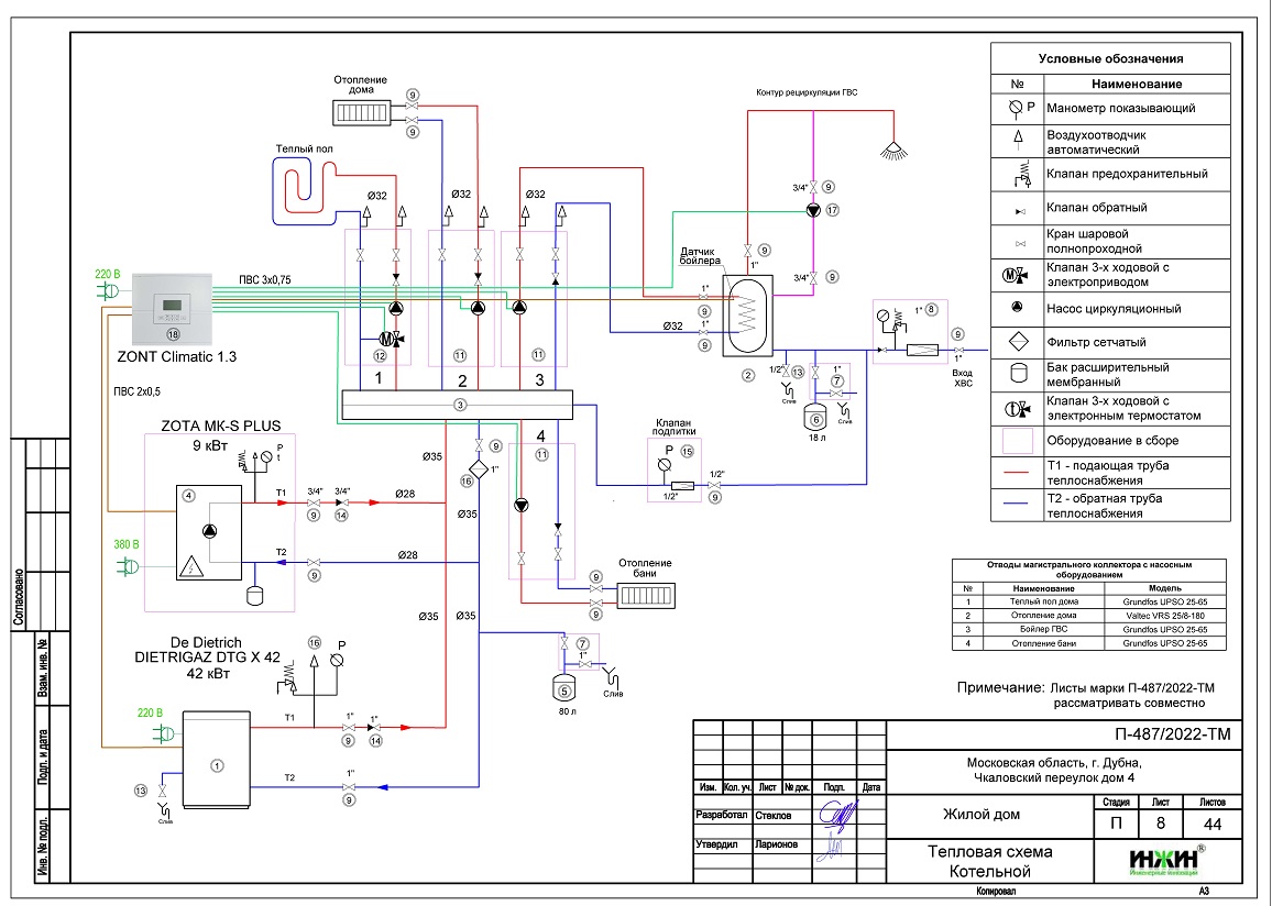
2. Тепломеханическая схема котельной с размещением оборудования в отдельном помещении дома из газобетона.
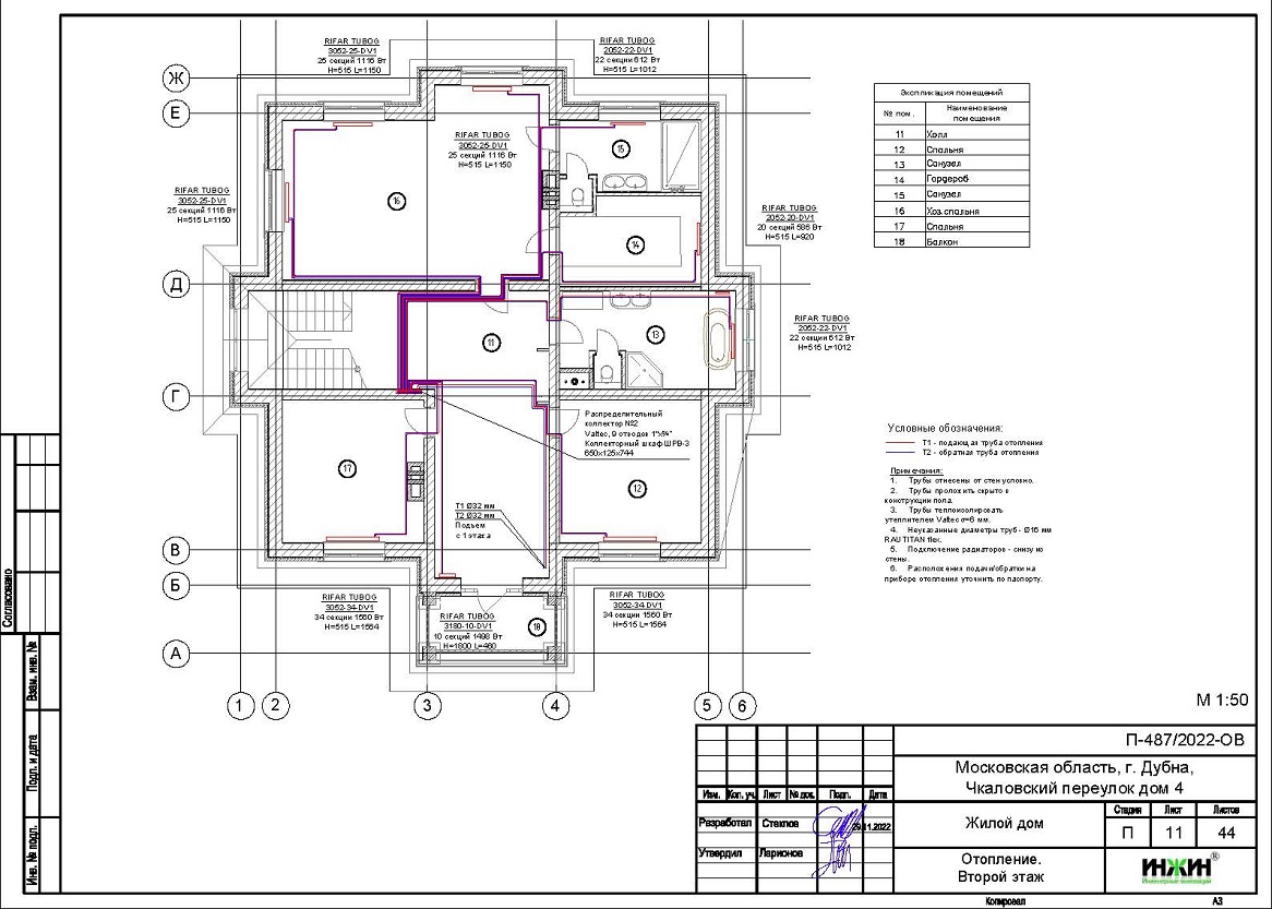
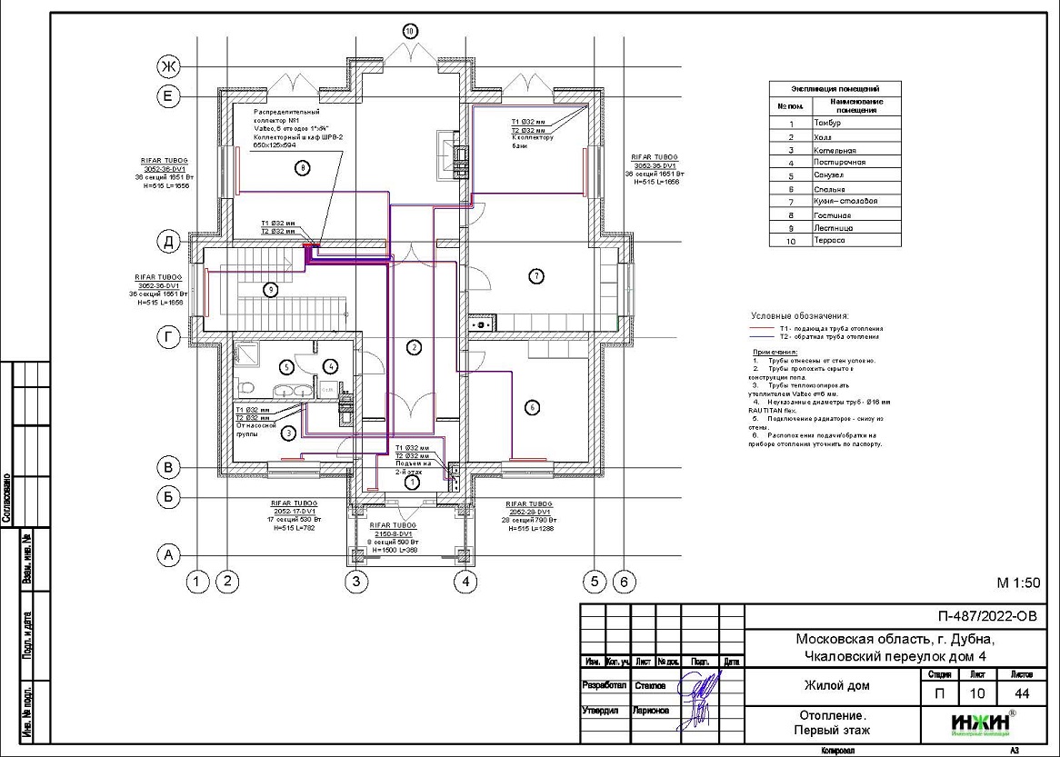
3. Комплект поэтажных чертежей радиаторного отопления дома в г. Дубна.
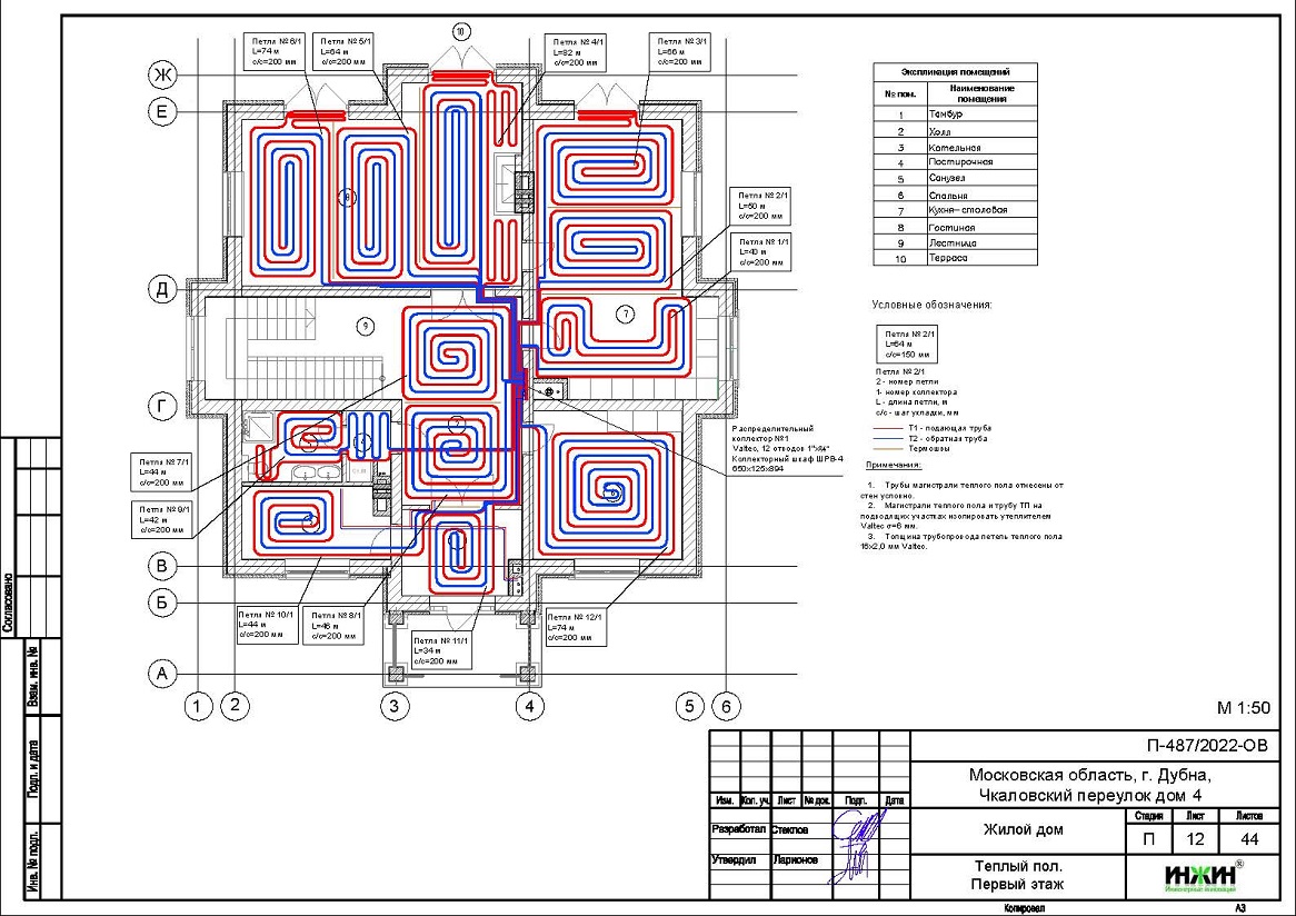
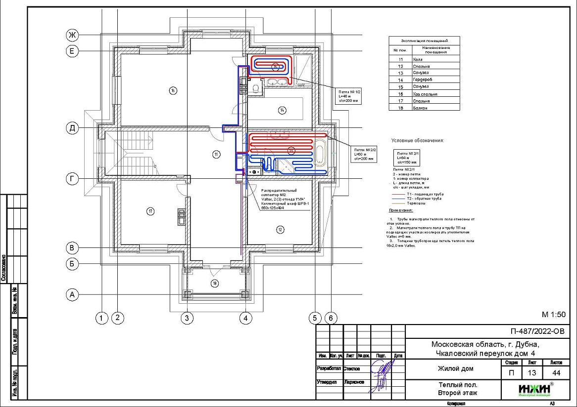
4. Комплект чертежей теплого пола на площади 160 м.кв.
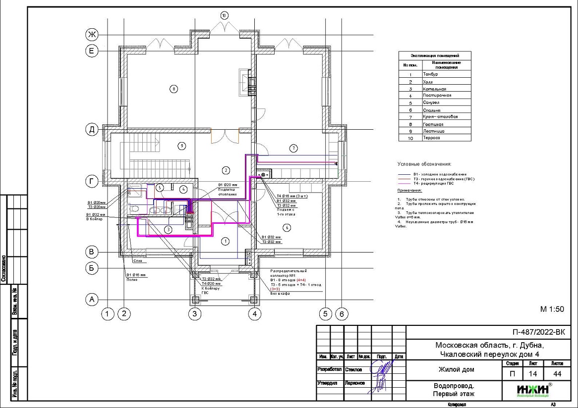
5. Комплект чертежей водоснабжения и канализации частного дома из полистиролбетона в г. Дубна.
6. Типовые схемы системы отопления канализации и водоснабжения дома 305 м.кв.
7. Теплотехнический расчет отопления дома из газобетона.
8. Спецификация материалов и оборудования по котельной, отоплению, канализации и водоснабжению дома в г. Дубна.
Объем проекта отопления, канализации и водоснабжения дома в г. Дубна: 44 листа.
Описание проекта отопления, котельной, канализации и водоснабжения частного дома 305 м.кв. в г. Дубна.
Котельная частного дома в г. Дубна(проект котельной бесплатно).
o Размещена в отдельном помещении дома 305 м.кв.;
o Теплогенераторы - основной напольный газовый котел De Dietrich DIETRIGAZ DTG, мощностью 42 кВт, резервный - электрический котел ZOTA MK, мощностью 9 кВт;
o Контуры теплоснабжения котельной – радиаторное отопление дома, теплый пол, отопление бани и горячее водоснабжение, для которого предусмотрен накопительный бойлер De Dietrich, объемом 200 литров (в наличии);
o Расширительные баки отопления и бойлера Flamco, объемом 25 и 18 литров, соответственно;
o Дымоудаление естественное, дымоход выполнен на объекте;
o Распределительный коллектор - STOUT с насосными группами;
o Автоматика котельной – контроллер ZONT Climatic 1.3 со встроенным GSM-модулем.
Отопление дома в г. Дубна (проект отопления дома).
o Выполнен теплотехнический расчет отопления дома из газобетона (утеплитель кровли - ЭППС 200мм, плиты основания - керамзит 190мм) с учетом теплопотерь через ограждающие конструкции при наружной температуре -28°С для Московской области (по СП 131.13330.2012), расчетный расход тепла на отопление дома составил 23,07 кВт, удельные теплопотери 76,0 Вт/м.кв.;
o Подобраны приборы для отопления дома: стальные трубчатые радиаторы RIFAR TUBOG с нижним подключением, в вентильном исполнении;
o Схема радиаторного отопления дома двухтрубная, коллекторно-лучевая, с принудительной циркуляцией теплоносителя и температурным графиком 80/60°С;
o Трубы отопления из металлопластика Valtec;
o Теплоизоляция трубопроводов отопления Valtec, толщиной 6мм;
o Теплоноситель в системе радиаторного отопления дома – подготовленная вода, предусмотрены средства защиты от образования накипи.
Водяной теплый пол дома в г. Дубна (проект теплого пола).
o Водяной теплый пол в доме предусмотрен на площади 160 м.кв., коллекторы теплого пола Valtec на 3 и 12 отводов;
o Предусмотрен насосно-смесительный узел для теплоснабжения водяного теплого пола дома - в составе насосной группы;
o Трубопроводы теплого пола – сшитый полиэтилен Valtec;
o Регулирование температуры теплого пола - общее, регулятором на смесительной группе.
Внутренний водопровод дома в г. Дубна (проект водоснабжения).
o Схема внутреннего водоснабжения дома – коллекторно-лучевая с рециркуляцией горячей воды через водяные полотенцесушители, выполнен расчет 30-ти точек водоснабжения и полотенцесушителей;
o Трубопроводы системы водоснабжения – из металлопластика Valtec;
o Теплоизоляция трубопроводов Valtec, толщиной 6мм.
Внутренняя канализация (проект канализации) дома в г. Дубна.
o Безнапорная, отвод стоков от санитарно-технических приборов предусмотрен в септик;
o Произведен расчет 18-ти точек бытовой канализации, предусмотрен противовакуумный клапан;
o Канализационные трубы Синикон, раструбные, из полипропилена.






















