Выполненные проекты
Проект электрики кирпичного дома 153 м.кв.
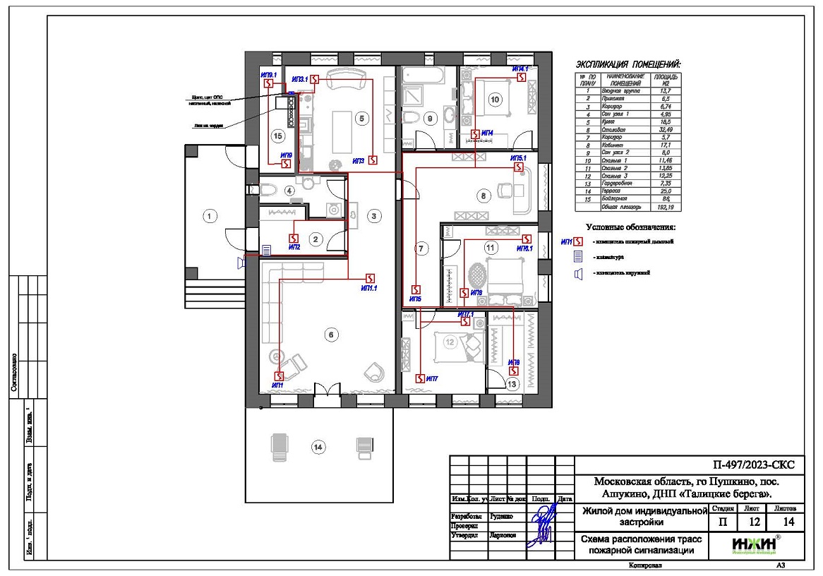
Объект: одноэтажный частный дом из кирпича, площадью 153 м.кв., расположенный в ДНП "Талицкие берега", Пушкинского района Московской области
Цена (стоимость) проекта электрики (электропроводки): 18 395 руб. со скидкой 10%, проект слаботочных кабельных линий - бесплатно.
Проект электрики выполнен: 22.05.2023
Состав проекта электрики дома в ДНП "Талицкие берега":
1. Пояснительная записка. Общие данные по электроснабжению и освещению частного дома в ДНП "Талицкие берега".
2. Однолинейные схемы вводного распределительного устройства и электрического распределительного щита дома 153 м.кв.
3. Чертежи электропроводки дома в ДНП "Талицкие берега".
4. Чертежи групповых осветительных сетей дома в ДНП "Талицкие берега".
5. Спецификация материалов и оборудования по электрике и электропроводке дома в ДНП "Талицкие берега".
Объем проекта электрики дома 153 м.кв.: 14 листов.
Проект электрики дома площадью 153 м.кв. в ДНП "Талицкие берега"- подробное описание.
Расчетные показатели по электроснабжению и освещению дома в ДНП "Талицкие берега".
o Расчетная электрическая мощность дома составила 22,06 кВт, с учетом коэффициента спроса 0,5, принятого согласно СП 256.1325800.2016;
o При расчете учтено силовое оборудование: рольставни, газовый и электрический котлы, привод ворот, водоочистка, скважинный насос, электроплита.
Распределительные электрические щиты дома площадью 153 м.кв.
o Проектом предусмотрен распределительный электрический щит, размещенный в помещении котельной;
o Автоматические выключатели, дифференциальные автоматы, рубильники и УЗО в щите – ABB, в количестве 28 шт. размещены во встраиваемом корпусе.
Силовая кабельная сеть (электропроводка) дома в ДНП "Талицкие берега".
o Электропроводка дома предусмотрена с использованием кабелей ВВГнг с медными жилами в ПВХ-оболочке (не поддерживает горение);
o Общая протяженность линий электроснабжения и освещения – 1 155 метров, вводные кабельные линии - бронированные кабели (ВБбШв) 55 метров;
o Электропроводка предусмотрена скрытым способом, в гофрированной ПВХ-трубе;
o Запроектировано 153 точки подключения розеток и выключателей освещения в доме;
o Предусмотрены слаботочные линии телевидения и локальной вычислительной сети протяженностью 355 метров.
Предусмотрена система резервного электропитания с использованием инвертора ШТИЛЬ IS 5000 с АКБ.
Заказать проект электрики дома дистанционно.
Для этого дома выполнен проект отопления и теплого пола.



















