Выполненные проекты
Проект электрики дома 380 м.кв. в Хабаровске
Объект: трехэтажный частный дом из керамоблоков Porotherm, площадью 380 м.кв., расположенный в Хабаровске.
Цена (стоимость) проекта электрики (электропроводки): 45 486 руб. со скидкой 10%, проект слаботочных кабельных линий - бесплатно.
Проект электрики выполнен: 27.06.2023
Состав проекта электрики дома в Хабаровске:
1. Пояснительная записка. Общие данные по электроснабжению и освещению частного дома в Хабаровске.
2. Однолинейные схемы вводного распределительного устройства и электрического распределительного щита дома 380 м.кв.
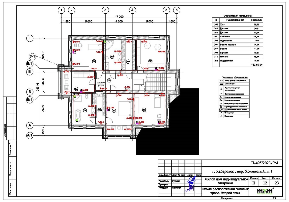
3. Чертежи электропроводки дома в Хабаровске.
4. Чертежи групповых осветительных сетей дома в Хабаровске.
5. Спецификация материалов и оборудования по электрике и электропроводке дома в Хабаровске.
Объем проекта электрики дома 380 м.кв.: 23 листа.
Проект электрики дома площадью 380 м.кв. в Хабаровске- подробное описание.
Расчетные показатели по электроснабжению и освещению дома в Хабаровске.
o Расчетная электрическая мощность дома составила 36,79 кВт, с учетом коэффициента спроса 0,45, принятого согласно СП 256.1325800.2016;
o При расчете учтено силовое оборудование: кондиционеры, газовый и электрический котлы, привод ворот, вентустановка Blauberg KOMFORT, приводы рольставен, водоочистка, обогрев крыльца и террасы, электроплита.
Распределительные электрические щиты дома площадью 380 м.кв.
o Проектом предусмотрен распределительный электрический щит, размещенный в помещении прихожей;
o Автоматические выключатели, дифференциальные автоматы, рубильники и УЗО в щите – ABB, в количестве 42 шт. размещены во встраиваемом корпусе.
Силовая кабельная сеть (электропроводка) дома в Хабаровске.
o Электропроводка дома предусмотрена с использованием кабелей ВВГнг с медными жилами в ПВХ-оболочке (не поддерживает горение);
o Общая протяженность линий электроснабжения и освещения – 1 600 метров, вводные кабельные линии выполнены на объекте;
o Электропроводка предусмотрена скрытым способом, в гофрированной ПВХ-трубе;
o Запроектировано 193 точки подключения розеток и выключателей освещения в доме;
o Предусмотрены слаботочные линии телевидения, локальной вычислительной сети и системы "умный дом" протяженностью 1 825 метров.
Предусмотрена система резервного электропитания с использованием инвертора CyberPower CPS 7500 PRO с АКБ.

























