Выполненные проекты
Проект отопления дома 160 м.кв.
Объект: одноэтажный частный дом из кирпича, площадью 160 м.кв., расположенный в пос. Северный, Истринского района Московской области
Вариант отопления: «Комфортный+»
Цена проекта отопления: 33 228 руб. со скидкой 10%, проект котельной - бесплатно.
Проект котельной и отопления выполнен: 10.07.2023
Состав проекта котельной, отопления и теплого пола дома в пос. Северный:
1. Пояснительная записка проекта, общие данные по системе отопления дома 160 м.кв. в пос. Северный.
2. Тепломеханическая схема котельной с размещением оборудования в отдельном помещении дома из кирпича.
3. Комплект поэтажных чертежей радиаторного отопления дома в пос. Северный.
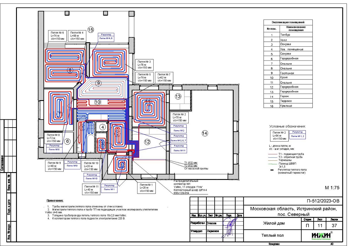
4. Комплект чертежей теплого пола на площади 120 м.кв.
5. Типовые схемы системы отопления и водоснабжения дома 160 м.кв.
6. Теплотехнический расчет отопления дома из кирпича.
7. Спецификация материалов и оборудования по котельной и отоплению дома в пос. Северный.
Объем проекта отопления дома в пос. Северный: 37 листов.
Описание проекта отопления, котельной, водоснабжения, канализации и теплого пола частного дома 160 м.кв. в пос. Северный.
Котельная частного дома в пос. Северный(проект котельной бесплатно).
o Размещена в помещении гардеробной дома 160 м.кв.;
o Теплогенераторы - основной настенный газовый котел BAXI ECO Life 1.24F, мощностью 24 кВт, резервный - электрический котел ZOTA MK, мощностью 9 кВт;
o Контуры теплоснабжения котельной – радиаторное отопление дома, теплый пол и горячее водоснабжение, для которого предусмотрен накопительный бойлер STOUT, объемом 200 литров (подключение к коллектору);
o Расширительные баки отопления и бойлера Flamco, объемом 18 каждый;
o Дымоудаление принудительное, дымоход коаксиальный, диаметр 60/120 мм, размещение - через кровлю;
o Распределительный коллектор - в котельной STOUT, с насосными группами и гидравлическим разделителем;
o Автоматика котельной – контроллер ZONT Climatic 1.2.
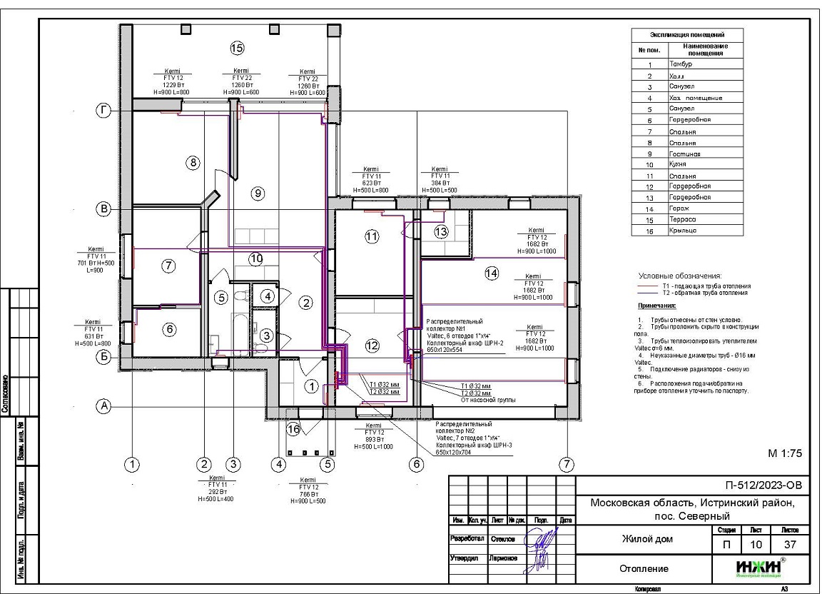
Отопление дома в пос. Северный (проект отопления дома).
o Выполнен теплотехнический расчет отопления дома из кирпича (утеплитель стен и кровли - минвата 100 и 200мм, соответственно) с учетом теплопотерь через ограждающие конструкции при наружной температуре -28°С для Московской области (по СП 131.13330.2012), расчетный расход тепла на отопление дома составил 15,66 кВт, удельные теплопотери 102,66 Вт/м.кв.;
o Подобраны приборы для отопления дома - стальные панельные радиаторы KERMI с нижним подключением;
o Схема радиаторного отопления дома двухтрубная, коллекторно-лучевая, с принудительной циркуляцией теплоносителя и температурным графиком 80/60°С;
o Трубы отопления из сшитого полиэтилена Valtec;
o Теплоизоляция трубопроводов отопления Valtec, толщиной 6мм;
o Теплоноситель в системе радиаторного отопления дома – подготовленная вода, предусмотрены средства защиты от образования накипи.
Водяной теплый пол дома в пос. Северный (проект теплого пола).
o Водяной теплый пол в доме предусмотрен на площади 120 м.кв., коллектор теплого пола Valtec на 11 отводов;
o Предусмотрена насосная группа (со смесителем) для теплоснабжения водяного теплого пола дома;
o Трубопроводы теплого пола – сшитый полиэтилен Valtec;
o Регулирование температуры теплого пола - общее, контурами котельной, а также локальное (по помещениям), при помощи электронных термостатов Valtec.
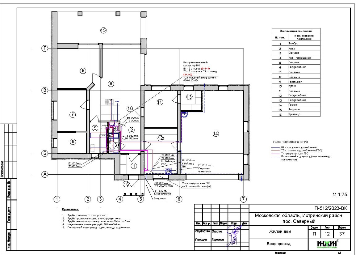
Внутренний водопровод дома в пос. Северный (проект водоснабжения).
o Схема внутреннего водоснабжения дома – коллекторно-лучевая с рециркуляцией горячей воды через полотенцесушители, выполнен расчет 20-и точек водоснабжения и полотенцесушителей;
o Трубопроводы системы водоснабжения – из сшитого полиэтилена Valtec;
o Теплоизоляция трубопроводов Valtec, толщиной 6мм.
Внутренняя канализация (проект канализации) дома в пос. Северный.
o Безнапорная, отвод стоков от санитарно-технических приборов предусмотрен в септик;
o Произведен расчет 12-и точек бытовой канализации;
o Канализационные трубы Синикон, раструбные, из полипропилена, утепленные трубчатым утеплителем Энергофлекс Супер, 9мм.



















