Выполненные проекты
Электропроводка газоблочного дома 155 м.кв., проект
Объект: газобетонный общей площадью 155 м.кв., расположенный в с. Софьино Раменского района Московской области
Цена (стоимость) проекта электрики (электропроводки): 18 554 руб. со скидкой 10%, проект слаботочных кабельных линий - бесплатно.
Проект электрики выполнен: 13.10.2023
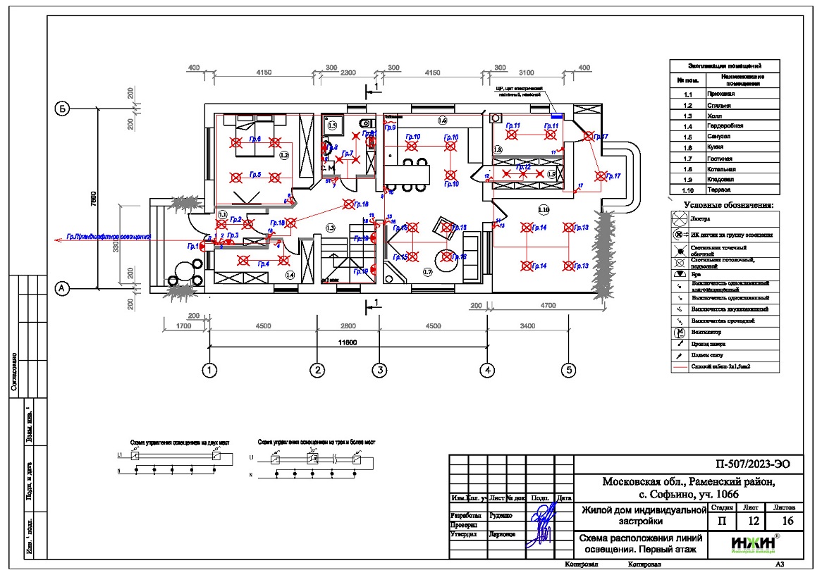
Состав проекта электрики дома в с. Софьино:
1. Пояснительная записка. Общие данные по электроснабжению и освещению частного дома в с. Софьино.
2. Однолинейные схемы вводного распределительного устройства и электрического распределительного щита дома 155 м.кв.
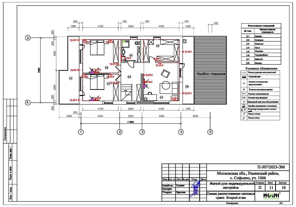
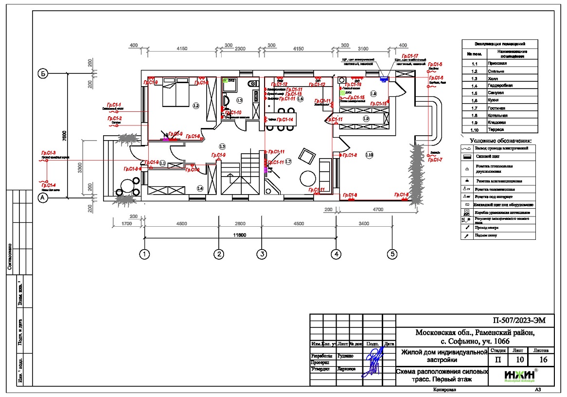
3. Чертежи электропроводки дома в с. Софьино.
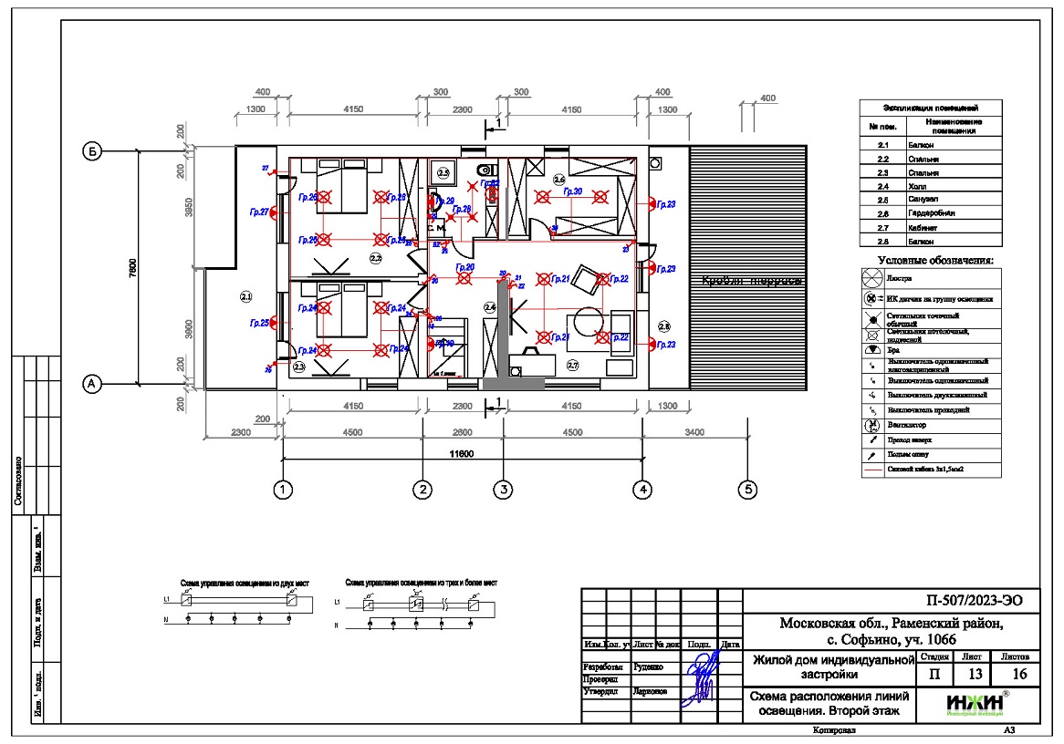
4. Чертежи групповых осветительных сетей дома в с. Софьино.
5. Спецификация материалов и оборудования по электрике и электропроводке дома в с. Софьино.
Объем проекта электрики дома 155 м.кв.: 15 листов.
Проект электрики дома площадью 155 м.кв. в с. Софьино- подробное описание.
Расчетные показатели по электроснабжению и освещению дома в с. Софьино.
o Расчетная электрическая мощность дома составила 19,35 кВт, с учетом коэффициента спроса 0,6, принятого согласно СП 256.1325800.2016;
o При расчете учтено силовое оборудование: септик, газовый котел, скважинный насос, электрический котел.
Распределительные электрические щиты дома площадью 155 м.кв.
o Проектом предусмотрен один распределительный электрический щит, расположенный в техническом помещении;
o Автоматические выключатели, дифференциальные автоматы, рубильники и УЗО в щитах – ABB, в количестве 26 шт. размещены в пристраиваемом корпусе.
Силовая кабельная сеть (электропроводка) дома в с. Софьино.
o Электропроводка дома предусмотрена с использованием кабелей ВВГ нг -LS с медными жилами в ПВХ-оболочке (не поддерживает горение);
o Общая протяженность линий электроснабжения и освещения – 1280 метров, вводная кабельная линия - бронированный кабель 185 метров;
o Электропроводка предусмотрена скрытым способом, в конструкции пола и стен помещений;
o Запроектировано 110 точек подключения розеток и выключателей освещения в доме;
o Предусмотрены слаботочные линии телевидения, общая протяженность - 300 метров.
Система резервного электропитания не предусмотрена.
Запроектировано применения технологии удобства - дистанционного открывания въездных ворот, калитки и включения освещения входной группы при помощи одного радиобрелка.
Заказать проект электрики частного дома дистанционно.
Для этого дома в с. Софьиновыполнен проект отопления.



















