Выполненные проекты
Проект отопления дома 180 м.кв. в г. Пушкино
Объект: трехэтажный дом из кирпича, площадью 180 м.кв., расположенный в г. Пушкино (мкр Мамонтовка) Московской области
Вариант отопления: «Комфортный»
Цена проекта отопления, канализации и водоснабжения: 28 988 руб. со скидкой 10%, проект котельной - бесплатно.
Проект котельной, отопления, водоснабжения и канализации выполнен: 08.09.2023
Состав проекта котельной, отопления, канализации и водоснабжения дома в г. Пушкино:
1. Пояснительная записка проекта, общие данные по системам отопления, канализации и водоснабжения дома 180 м.кв. в г. Пушкино
2. Тепломеханическая схема котельной с размещением оборудования (котла) в помещении кухни дома из кирпича.
3. Комплект поэтажных чертежей радиаторного отопления дома в г. Пушкино.
4. Комплект чертежей водоснабжения и канализации частного дома из кирпича в г. Пушкино.
5. Типовые схемы системы отопления канализации и водоснабжения дома 180 м.кв.
6. Теплотехнический расчет отопления дома из кирпича.
7. Спецификация материалов и оборудования по котельной, отоплению, канализации и водоснабжению дома в г. Пушкино.
Объем проекта отопления, канализации и водоснабжения дома в г. Пушкино: 38 листов.
Описание проекта отопления, котельной, канализации и водоснабжения частного дома 180 м.кв. в г. Пушкино.
Котельная частного дома в г. Пушкино(проект котельной бесплатно).
o Размещена в помещении кухни дома 180 м.кв.;
o Теплогенератор - настенный газовый котел BAXI ECO Life 1.24F, мощностью 24 кВт;
o Контуры теплоснабжения котельной – радиаторное отопление дома и горячее водоснабжение, для которого предусмотрен накопительный бойлер STOUT, объемом 100 литров (настенный);
o Расширительные баки отопления и бойлера Flamco, объемом 18 и 12 литров, соответственно;
o Дымоудаление принудительное, дымоход коаксиальный, в исполнении "через стену";
o Распределительный коллектор не предусмотрен;
o Автоматика котельной – контроллер ZONT CONNECT со встроенным GSM-модулем.
Отопление дома в г. Пушкино (проект отопления дома).
o Выполнен теплотехнический расчет отопления дома из кирпича (утеплитель кровли - минвата 100мм, стен - пенопласт 50мм) с учетом теплопотерь через ограждающие конструкции при наружной температуре -26°С для Московской области (по СП 131.13330.2020), расчетный расход тепла на отопление дома составил 16,11 кВт, удельные теплопотери 87,2 Вт/м.кв.;
o Подобраны приборы для отопления дома: стальные панельные радиаторы Kermiс нижним подключением, в вентильном исполнении;
o Схема радиаторного отопления дома двухтрубная, коллекторно-лучевая, с принудительной циркуляцией теплоносителя и температурным графиком 80/60°С;
o Трубы отопления из металлопластика Valtec;
o Теплоизоляция трубопроводов отопления Valtec, толщиной 6мм;
o Теплоноситель в системе радиаторного отопления дома – подготовленная вода, предусмотрены средства защиты от образования накипи.
Водяной теплый пол в доме проектом не предусмотрен.
Внутренний водопровод дома в г. Пушкино (проект водоснабжения).
o Схема внутреннего водоснабжения дома – тройниковая тупиковая с рециркуляцией горячей воды через тройники, выполнен расчет 10-ти точек водоснабжения и полотенцесушителей;
o Трубопроводы системы водоснабжения – из металлопластика Valtec;
o Теплоизоляция трубопроводов Valtec, толщиной 6мм.
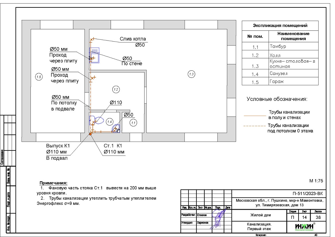
Внутренняя канализация (проект канализации) дома в г. Пушкино.
o Безнапорная, отвод стоков от санитарно-технических приборов предусмотрен в центральную сеть;
o Произведен расчет 8-ми точек бытовой канализации;
o Канализационные трубы Синикон, раструбные, из полипропилена.
По этому проекту выполнен монтаж отопления, водоснабжения и канализации дома в г. Пушкино (мкр Мамонтовка).






















