Выполненные проекты
Электроснабжение газобетонного дома 200 м.кв., проект
Объект: газобетонный общей площадью 200 м.кв., расположенный в ТСН «Русский лес» Истринского района Московской области
Цена (стоимость) проекта электрики (электропроводки): 23 940 руб. со скидкой 10%, проект слаботочных кабельных линий - бесплатно.
Проект электрики выполнен: 18.07.2023
Состав проекта электрики дома в ТСН «Русский лес»:
1. Пояснительная записка. Общие данные по электроснабжению и освещению частного дома в ТСН «Русский лес».
2. Однолинейные схемы вводного распределительного устройства и электрического распределительного щита дома 200 м.кв.
3. Чертежи электропроводки дома в ТСН «Русский лес».
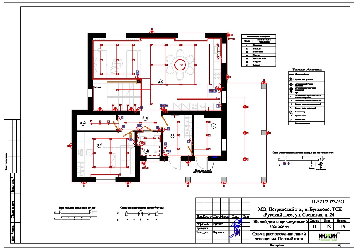
4. Чертежи групповых осветительных сетей дома в ТСН «Русский лес».
5. Спецификация материалов и оборудования по электрике и электропроводке дома в ТСН «Русский лес»
Объем проекта электрики дома 200 м.кв.: 19 листов.
Проект электрики дома площадью 200 м.кв. в ТСН «Русский лес»- подробное описание.
Расчетные показатели по электроснабжению и освещению дома в ТСН «Русский лес».
o Расчетная электрическая мощность дома составила 14,79 кВт, с учетом коэффициента спроса 0,5, принятого согласно СП 256.1325800.2016;
o При расчете учтено силовое оборудование: септик, газовый котел, скважинный насос, электрический котел.
Распределительные электрические щиты дома площадью 200 м.кв.
o Проектом предусмотрен один распределительный электрический щит, расположенный в техническом помещении;
o Автоматические выключатели, дифференциальные автоматы, рубильники и УЗО в щитах – ABB, в количестве 29 шт. размещены в пристраиваемом корпусе.
Силовая кабельная сеть (электропроводка) дома в ТСН «Русский лес».
o Электропроводка дома предусмотрена с использованием кабелей ВВГ нг -LS с медными жилами в ПВХ-оболочке (не поддерживает горение);
o Общая протяженность линий электроснабжения и освещения – 1050 метров, вводная кабельная линия - бронированный кабель 70 метров;
o Электропроводка предусмотрена скрытым способом, в конструкции пола и стен помещений;
o Запроектировано 140 точек подключения розеток и выключателей освещения в доме;
o Предусмотрены слаботочные линии телевидения, общая протяженность - 690 метров.
Система резервного электропитания - бензиновый однофазный генератор по выбору Заказчика.
Запроектировано применения технологии удобства - дистанционного открывания въездных ворот, калитки и включения освещения входной группы при помощи одного радиобрелка.
Заказать проект электрики частного дома дистанционно.
Для этого дома в ТСН «Русский лес»выполнен проект отопления.



















